Bildegalleri

Eiendommen ble totalrenovert i 2018 av Byggmester Grønvold, og byr på gjennomgående høy standard, moderne fasiliteter.
Fantastisk oppgradert enebolig m/spektakulær utsikt over Oslo - 4 soverom - 2 bad - 2 terrasser - Takterrasse - Solrikt
Nøkkelinfo
- Boligtype
- Enebolig
- Eieform
- Eier (Selveier)
- Soverom
- 4
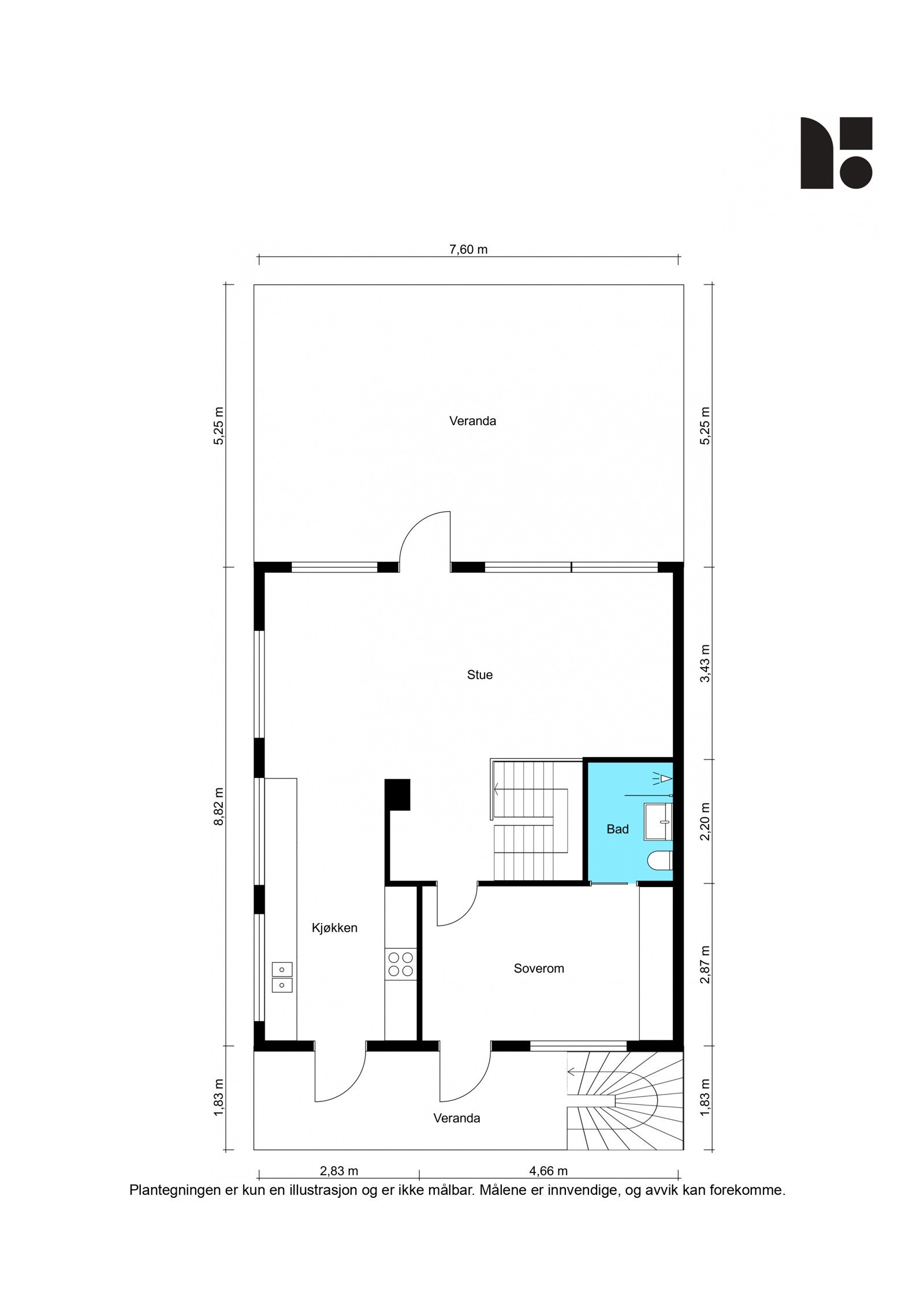
- Internt bruksareal
- 169 m² (BRA-i)
- Bruksareal
- 169 m²
- Balkong/Terrasse
- 118 m² (TBA)
- Byggeår
- 1977
- Energimerking
- C - Rød
- Rom
- 5
- Tomteareal
- 632 m² (eiet)
- Boligselgerforsikring
- Ja
Fasiliteter
Visning
Om boligen
Priavtmegleren Park v/Thor Vegard Bjørnerud har gleden av å presentere Liaveien 27B!
Velkommen til en sjelden mulighet, en oppgradert og innholdsrik enebolig med panoramautsikt over byen. Attraktivt, barnevennlig og veletablert boligområde. Eiendommen ble smakfullt oppusset i 2018 av Byggmester Grønvold, og byr på gjennomgående høy standard, moderne fasiliteter og unike uteplasser med sol fra morgen til kveld, til ca. kl. 22:30 på sommeren. Boligen har to verandaer og en stor takterrasse. Takterrassene er utstyrt med pergola med strøm, varme, vann, utedusj. Utgang fra kjøkkenet til veranda med luksuriøs jacuzzi med plass til 6 personer. Her kan du nyte sol, bad og utsikt i fullkommen ro. Eiendommen har også tilgang til privat bryggeanlegg med badstue, og mulighet for båtplass og badehus.
Salgsoppgaven beskriver vesentlig og lovpålagt informasjon om eiendommen
Se komplett salgsoppgaveNyttige lenker
Nærområdet

PrivatMegleren Park
Annonsene kan være mangelfulle i forhold til lovpålagt opplysningsplikt. Før bindende avtale inngås oppfordres interessenter til å innhente komplett informasjon fra meglerforetaket, selger eller utleier.
































































