Bildegalleri

Eiendommen har en pen og lettstelt tomt som passer perfekt for både barnefamilier og de som ønsker en oversiktlig uteplass med lite vedlikehold. Tomten er flat og praktisk, noe som gjør den enkel å utnytte til både lek, opphold og sosiale sammenkomster.
Hasle / Nær sentrum
Romslig, innholdsrik og velholdt familiebolig på solrik hjørnetomt. 5 sov - Skjermet og pent uteområde - Dobbel garasje.
Prisantydning6 200 000 kr
Nøkkelinfo
- Boligtype
- Enebolig
- Eieform
- Eier (Selveier)
- Soverom
- 5
- Internt bruksareal
- 188 m² (BRA-i)
- Bruksareal
- 234 m²
- Eksternt bruksareal
- 46 m² (BRA-e)
- Balkong/Terrasse
- 45 m² (TBA)
- Etasje
- 2
- Byggeår
- 1926
- Energimerking
- G - Gul
- Tomteareal
- 418 m² (eiet)
Fasiliteter
Balkong/Terrasse
Barnevennlig
Bredbåndstilknytning
Garasje/P-plass
Hage
Ingen gjenboere
Offentlig vann/kloakk
Peis/Ildsted
Rolig
Sentralt
Utsikt
Turterreng
Lademulighet
Om boligen
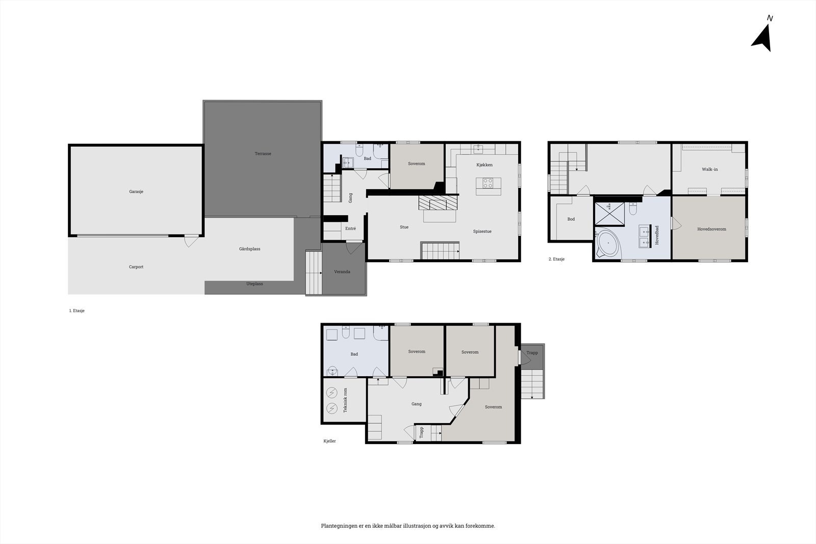
Lindeveien 1 er en romslig, tiltalende og velholdt enebolig som strekker seg over to plan pluss innredet kjeller med egen inngang. Boligen byr på en innholdsrik planløsning med fleksible romløsninger og god standard, noe som gjør den til en perfekt familiebolig med plass til alle.
Her får du en eiendom som fremstår moderne og tidsriktig i både farge- og materialvalg, samtidig som den gir en følelse av kvalitet både utvendig og innvendig.
Ute kan solen nytes på en stor og solrik inngjerdet terrasse. Tomten er opparbeidet med gode parkeringsmuligheter på asfaltert gårdsplass samt i en romslig dobbelgarasje. Ettersom kjelleren har god takhøyde, opplegg for kjøkken(ligger klart i veggen) og egen inngang, kan man med relativt enkle grep gjøre om dette til en utleieenhet/hybel.
Her får du en eiendom som fremstår moderne og tidsriktig i både farge- og materialvalg, samtidig som den gir en følelse av kvalitet både utvendig og innvendig.
Ute kan solen nytes på en stor og solrik inngjerdet terrasse. Tomten er opparbeidet med gode parkeringsmuligheter på asfaltert gårdsplass samt i en romslig dobbelgarasje. Ettersom kjelleren har god takhøyde, opplegg for kjøkken(ligger klart i veggen) og egen inngang, kan man med relativt enkle grep gjøre om dette til en utleieenhet/hybel.
NB: Knappen for å vise hele beskrivelsen har kun en visuell effekt.
NB: Knappen for å vise hele beskrivelsen har kun en visuell effekt.
Salgsoppgaven beskriver vesentlig og lovpålagt informasjon om eiendommen
Se komplett salgsoppgaveNyttige lenker
Nærområdet
EiendomsMegler 1 Sandefjord
et foretak i SpareBank 1 Sør-Norge konsernet
Annonseinformasjon
| FINN-kode | 426721199 |
|---|---|
| Sist endret | 15. des. 2025 12:44 |
| Referanse | 2865250073 |
Annonsene kan være mangelfulle i forhold til lovpålagt opplysningsplikt. Før bindende avtale inngås oppfordres interessenter til å innhente komplett informasjon fra meglerforetaket, selger eller utleier.






























































