Bildegalleri

NY PRIS - Stor enebolig med renoveringsbehov på kremtomt med 4 soverom og 2 bad!
Prisantydning2 500 000 kr
Nøkkelinfo
- Boligtype
- Enebolig
- Eieform
- Eier (Selveier)
- Soverom
- 4
- Internt bruksareal
- 202 m² (BRA-i)
- Bruksareal
- 225 m²
- Eksternt bruksareal
- 23 m² (BRA-e)
- Balkong/Terrasse
- 23 m² (TBA)
- Etasje
- 3
- Byggeår
- 1970
- Energimerking
- F - Oransje
- Tomteareal
- 1 954 m² (eiet)
Fasiliteter
Balkong/Terrasse
Hage
Kjæledyr tillatt
Sentralt
Utsikt
Om boligen
Ser du etter et flott renoveringsprosjekt med fantastisk beliggenhet på Finnsnes, bør du ta en titt her!
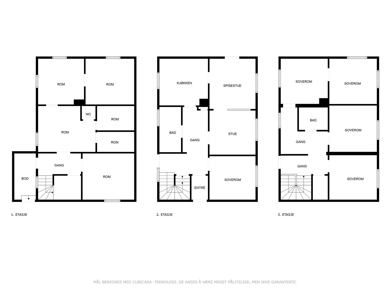
Hjemmet går over tre etasjer og byr på blant annet stue, kjøkken, to bad og fire soverom fordelt på hoved- og loftetasje. Kjelleretasjen har egen adkomst samt tilknytning til hovedplan. Kjeller har godt med oppbevaringsplass. Hjemmet har behov for en del renoveringer for å få det til dagens standard, noe som byr på flott mulighet til å gjøre eiendommen til din egen! Beliggende kun 5 minutter fra Finnsnes med skjermet beliggenhet og nydelig sjøutsikt, fin solgang og barnevennlige omgivelser. Tomten er opparbeidet med plen, trær og bær- og prydbusker og har frittstående utebod.
Kontakt megler for visning.
Hjemmet går over tre etasjer og byr på blant annet stue, kjøkken, to bad og fire soverom fordelt på hoved- og loftetasje. Kjelleretasjen har egen adkomst samt tilknytning til hovedplan. Kjeller har godt med oppbevaringsplass. Hjemmet har behov for en del renoveringer for å få det til dagens standard, noe som byr på flott mulighet til å gjøre eiendommen til din egen! Beliggende kun 5 minutter fra Finnsnes med skjermet beliggenhet og nydelig sjøutsikt, fin solgang og barnevennlige omgivelser. Tomten er opparbeidet med plen, trær og bær- og prydbusker og har frittstående utebod.
Kontakt megler for visning.
NB: Knappen for å vise hele beskrivelsen har kun en visuell effekt.
NB: Knappen for å vise hele beskrivelsen har kun en visuell effekt.
Salgsoppgaven beskriver vesentlig og lovpålagt informasjon om eiendommen
Se komplett salgsoppgaveNyttige lenker
Nærområdet
Nordvik Finnsnes
Annonseinformasjon
| FINN-kode | 426711616 |
|---|---|
| Sist endret | 27. jan. 2026 12:20 |
| Referanse | 28-0052/25 |
Annonsene kan være mangelfulle i forhold til lovpålagt opplysningsplikt. Før bindende avtale inngås oppfordres interessenter til å innhente komplett informasjon fra meglerforetaket, selger eller utleier.































