Bildegalleri

Velkommen til Bakkegata 21 - en stor og innholdsrik bolig i meget sentrale og attraktive omgivelser. Nå har du muligheten til å bosette deg i et av Sandefjords mest etablerte og sjarmerende villaområder. - Foto: Fotograf Magik
Nær sentrum
Meget innholdsrik enebolig fra 2012 i sentrale omgivelser - godkjent hybel - 3 bad - flere stuer og eget vaskerom
Prisantydning8 690 000 kr
Nøkkelinfo
- Boligtype
- Enebolig
- Eieform
- Eier (Selveier)
- Soverom
- 6
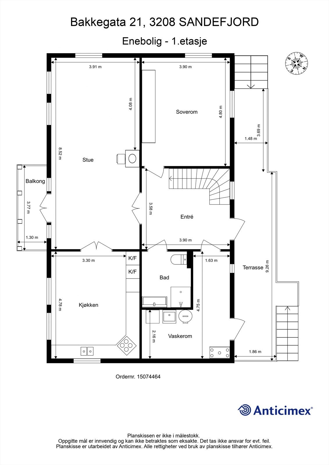
- Internt bruksareal
- 296 m² (BRA-i)
- Bruksareal
- 296 m²
- Balkong/Terrasse
- 34 m² (TBA)
- Etasje
- 2
- Byggeår
- 2012
- Energimerking
- C - Rød
- Tomteareal
- 421 m² (eiet)
Fasiliteter
Balkong/Terrasse
Barnevennlig
Bredbåndstilknytning
Hage
Kabel-TV
Offentlig vann/kloakk
Peis/Ildsted
Sentralt
Utsikt
Turterreng
Balansert ventilasjon
Visning
Ta kontakt med megler for avtale om privatvisning.
Ønsker du kun å bli holdt orientert, kan du fra eiendommens hjemmeside få varsel om solgtpris, eller kontakte megler.
VisningspåmeldingOm boligen
Velkommen til Bakkegata 21 - en stor og innholdsrik bolig i meget sentrale og attraktive omgivelser. Boligen har en klassisk og tidløs stil, og ligger bare et "steinkast" fra sentrum. Her bor du tilbaketrukket, samtidig som du har gangavstand til byens pulserende liv. Boligen ble oppført i 2012 og kombinerer moderne komfort med klassisk villapreg og en gjennomgående god standard. Planløsningen er gjennomtenkt og praktisk med sine romslige oppholdsrom, flere stuer og rikelig med soverom er dette en perfekt bolig for storfamilien. Underetasjen er innredet med egen leilighet/hybel bestående av blant annet kjøkken, bad, romslig stue og soverom. Boligen har gjennomgående lyse og tidsriktige fargevalg. Gode parkeringsmuligheter på egen lettstelt tomt.
NB: Knappen for å vise hele beskrivelsen har kun en visuell effekt.
NB: Knappen for å vise hele beskrivelsen har kun en visuell effekt.
Salgsoppgaven beskriver vesentlig og lovpålagt informasjon om eiendommen
Se komplett salgsoppgaveNyttige lenker
Nærområdet
Krogsveen Sandefjord
Verdien av en god megler.
Annonseinformasjon
| FINN-kode | 426671922 |
|---|---|
| Sist endret | 14. jan. 2026 11:47 |
| Referanse | KR22.25248 |
Annonsene kan være mangelfulle i forhold til lovpålagt opplysningsplikt. Før bindende avtale inngås oppfordres interessenter til å innhente komplett informasjon fra meglerforetaket, selger eller utleier.




















































