Bildegalleri

En nyere, lekker og innholdsrik leilighet beliggende i populært boligområde!
Sjuestokk
Lekker gjennomgående leilighet med god standard! 2 soverom - stor solfylt balkong mot vest - populært område - carport
Prisantydning3 990 000 kr
Nøkkelinfo
- Boligtype
- Leilighet
- Eieform
- Eier (Selveier)
- Soverom
- 2
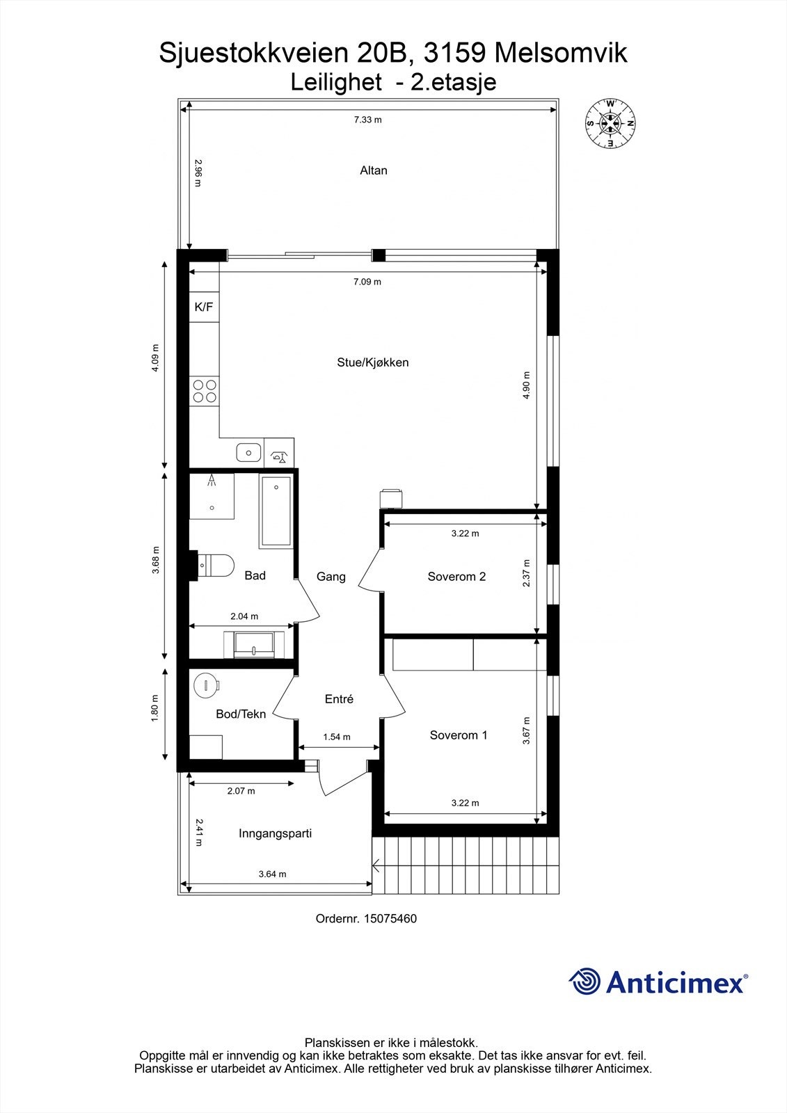
- Internt bruksareal
- 71 m² (BRA-i)
- Bruksareal
- 76 m²
- Innglasset balkong
- 5 m² (BRA-b)
- Balkong/Terrasse
- 31 m² (TBA)
- Etasje
- 2
- Byggeår
- 2022
- Energimerking
- B - Oransje
- Rom
- 3
- Tomteareal
- 1 856 m² (eiet)
Fasiliteter
Balkong/Terrasse
Barnevennlig
Bredbåndstilknytning
Garasje/P-plass
Golfbane
Kjæledyr tillatt
Ingen gjenboere
Kabel-TV
Offentlig vann/kloakk
Parkett
Peis/Ildsted
Rolig
Sentralt
Turterreng
Lademulighet
Balansert ventilasjon
Visning
For å delta på visning, ber vi om at du melder deg på. Da sikrer vi at du får nødvendig informasjon og at det er satt av tilstrekkelig med tid. Kontakt megler dersom annet tidspunkt ønskes. Husk å lese salgsoppgaven før visningen, så du stiller forberedt. NB. Visning utgår dersom det ikke er noen påmeldte.
Ønsker du kun å bli holdt orientert, kan du fra eiendommens hjemmeside få varsel om solgtpris, eller kontakte megler.
VisningspåmeldingOm boligen
Krogsveen v/Eirik Varmo presenterer en lun og attraktiv leilighet med god takhøyde, gode lysforhold og en romslig planløsning. Denne leiligheten byr på godt med ettermiddags/kveldssol, som kan nytes fra en romslig balkong med plass til flere sittegrupper og utsikt til omkringliggende og rolige omgivelser. Morgensol får du også på uteplassen ved inngangspartiet
Leiligheten har to gode soverom, en romslig åpen stue/kjøkkenløsning med moderne kjøkkeninnredning fra Ballingsløv, et pent flislagt bad, samt en gang med god plass for å henge av seg yttertøyet. Leiligheten er oppmalt i en lun og moderne farge og har gode møbleringsmuligheter med plass til både spisestue og sittegruppe.
Egen parkeringsplass utenfor døren i carport som også har montert el-bil lader
Velkommen hjem!
Leiligheten har to gode soverom, en romslig åpen stue/kjøkkenløsning med moderne kjøkkeninnredning fra Ballingsløv, et pent flislagt bad, samt en gang med god plass for å henge av seg yttertøyet. Leiligheten er oppmalt i en lun og moderne farge og har gode møbleringsmuligheter med plass til både spisestue og sittegruppe.
Egen parkeringsplass utenfor døren i carport som også har montert el-bil lader
Velkommen hjem!
NB: Knappen for å vise hele beskrivelsen har kun en visuell effekt.
NB: Knappen for å vise hele beskrivelsen har kun en visuell effekt.
Salgsoppgaven beskriver vesentlig og lovpålagt informasjon om eiendommen
Se komplett salgsoppgaveNyttige lenker
Nærområdet
Krogsveen Sandefjord
Verdien av en god megler.
Annonseinformasjon
| FINN-kode | 426666960 |
|---|---|
| Sist endret | 12. feb. 2026 12:11 |
| Referanse | KR22.25341 |
Annonsene kan være mangelfulle i forhold til lovpålagt opplysningsplikt. Før bindende avtale inngås oppfordres interessenter til å innhente komplett informasjon fra meglerforetaket, selger eller utleier.



















































