Bildegalleri

Velkommen til Lavhallen 1! Foto: Moments Of North AS

GRØNØY

Innholdsrik, moderne enebolig med garasje, uthus og lysthus. Stor tomt med flotte uteområder og strålende solforhold!

Prisantydning3 490 000 kr
Totalpris
3 578 340 kr
Omkostninger
88 340 kr
Kommunale avg.
14 513 kr per år
Formuesverdi
857 445 kr

Nøkkelinfo

Boligtype
Enebolig
Eieform
Eier (Selveier)
Soverom
3
Internt bruksareal
140 m² (BRA-i)
Bruksareal
191 m²
Eksternt bruksareal
23 m² (BRA-e)
Balkong/Terrasse
40 m² (TBA)
Byggeår
2006
Energimerking
C - Gul
Rom
6
Tomteareal
4 126 m² (eiet)

Les mer om bruksareal her

Fasiliteter

Barnevennlig
Balkong/Terrasse
Garasje/P-plass
Fiskemulighet
Offentlig vann/kloakk
Ingen gjenboere
Peis/Ildsted
Turterreng
Sentralt
Bredbåndstilknytning
Moderne
Rolig
Lademulighet

Visning

lørdag, 28. februar
12:00 – 13:00
Alle våre visninger har påmelding. Dette for at vi kan planlegge visningene best mulig, og ha god tid til de som kommer. Det er enkelt å melde seg på, og du kan like enkelt melde deg av. Visninger uten påmeldte deltakere kan bli avlyst.
Visningspåmelding

Om boligen

Velkommen til Lavhallen 1!

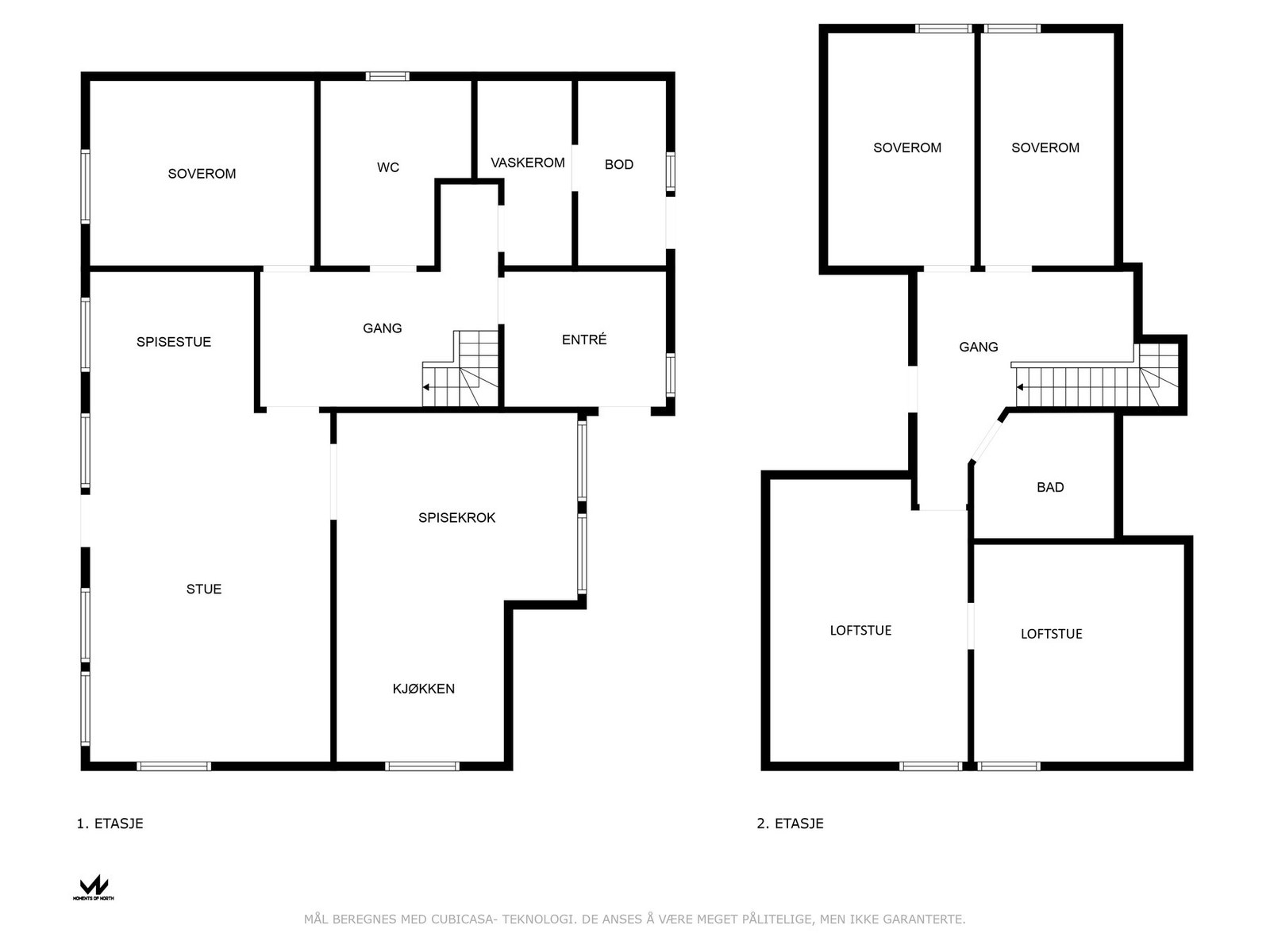
Svært innholdsrik enebolig oppført i 2006 med stor, pent opparbeidet tomt og svært gode solforhold. Eneboligen er innredet med 3 godkjente soverom, to loftstuer, to bad, romslig stue/spisestue og kjøkken i eget rom. Videre er det etablert koselig lysthus/hagestue, flotte uteområder med strålende solforhold, garasje og praktisk uthus/utebod.

Huset er oppført i 2006, med gjennomgående god standard og planløsning. Boligen fremstår velholdt, med fin beliggenhet på en romslig, forhøyet tomt sentralt på Grønøya. I 2012 ble inngangspartiet tilbygget, og i 2016 ble badet i 1. etasje pusset opp, gang/entré flislagt med varmekabler - og det ble lagt nye laminatgulv i stue, kjøkken og entré.

Her kan du flytte rett inn i en moderne enebolig med flotte, solrike uteområder. Velkommen til visning!

Salgsoppgaven beskriver vesentlig og lovpålagt informasjon om eiendommen

Se komplett salgsoppgave

Nærområdet

Annonseinformasjon

FINN-kode426659283
Sist endret11. feb. 2026 15:06
Referanse2250286

Rapporter annonse

Annonsene kan være mangelfulle i forhold til lovpålagt opplysningsplikt. Før bindende avtale inngås oppfordres interessenter til å innhente komplett informasjon fra meglerforetaket, selger eller utleier.