Bildegalleri

Røros sentrum
Pen og innholdsrik enebolig med attraktiv endebeliggenhet på Hagaen. Pent opparbeidet tomt. Dobbelgarasje.
Prisantydning5 990 000 kr
Nøkkelinfo
- Boligtype
- Enebolig
- Eieform
- Eier (Selveier)
- Soverom
- 6
- Internt bruksareal
- 256 m² (BRA-i)
- Bruksareal
- 256 m²
- Eksternt bruksareal
- 48 m² (BRA-e)
- Balkong/Terrasse
- 56 m² (TBA)
- Byggeår
- 1997
- Energimerking
- D - Gul
- Rom
- 9
- Tomteareal
- 639 m² (eiet)
Fasiliteter
Barnevennlig
Balkong/Terrasse
Garasje/P-plass
Offentlig vann/kloakk
Peis/Ildsted
Turterreng
Utsikt
Sentralt
Rolig
Om boligen
Velkommen til et flott hjem på Hagaen!
I rolige omgivelser i enden av Hagaveien finner du denne innholdsrike eneboligen. Eiendommen grenser til dyrket mark og tilbyr både fred og frihet, samt nærhet til alt Røros har å by på.
Gjennom året kan du nyte fantastiske turmuligheter rett utenfor døra og om vinteren går skiløypa rett forbi huset - perfekt for de som elsker et aktivt friluftsliv.
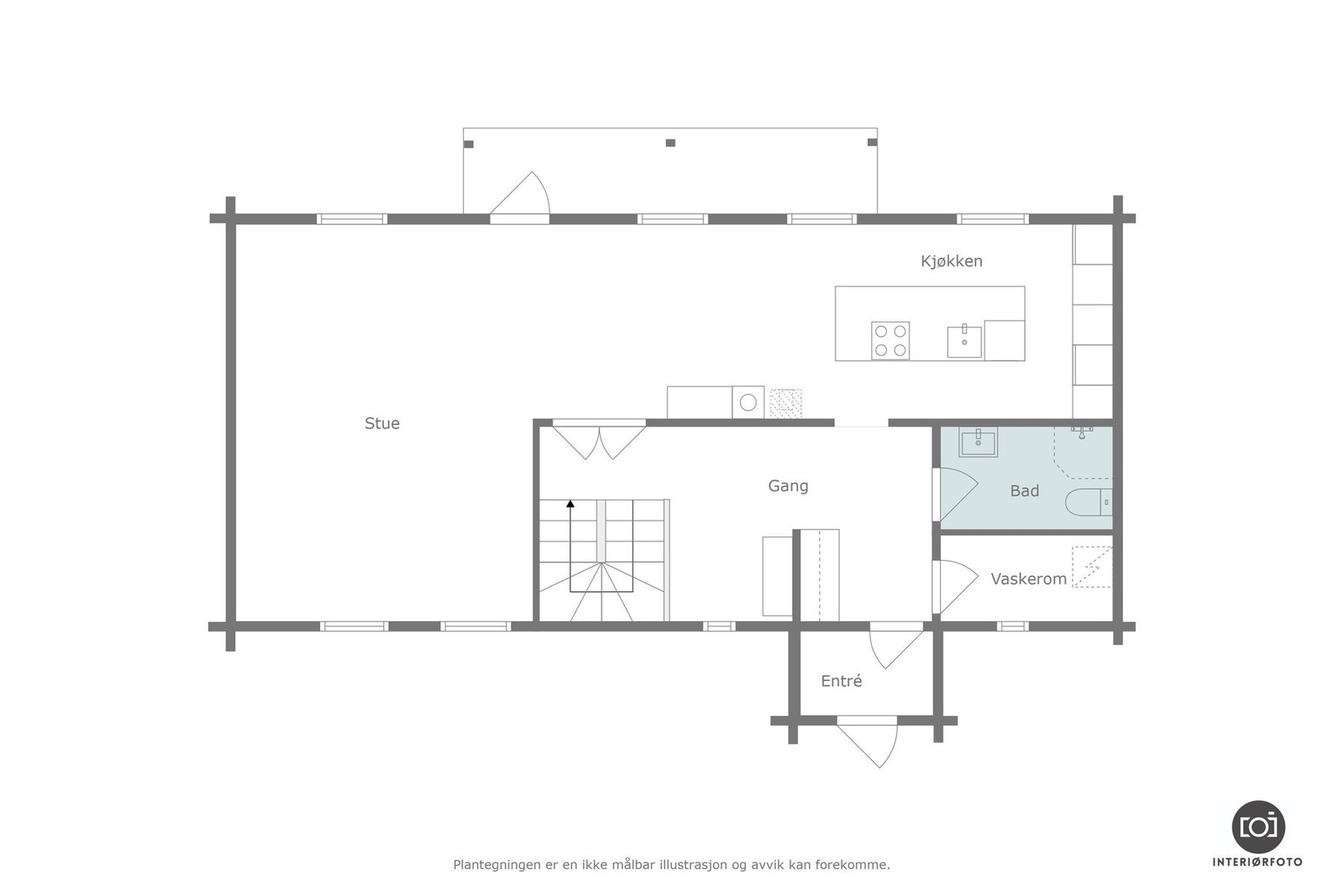
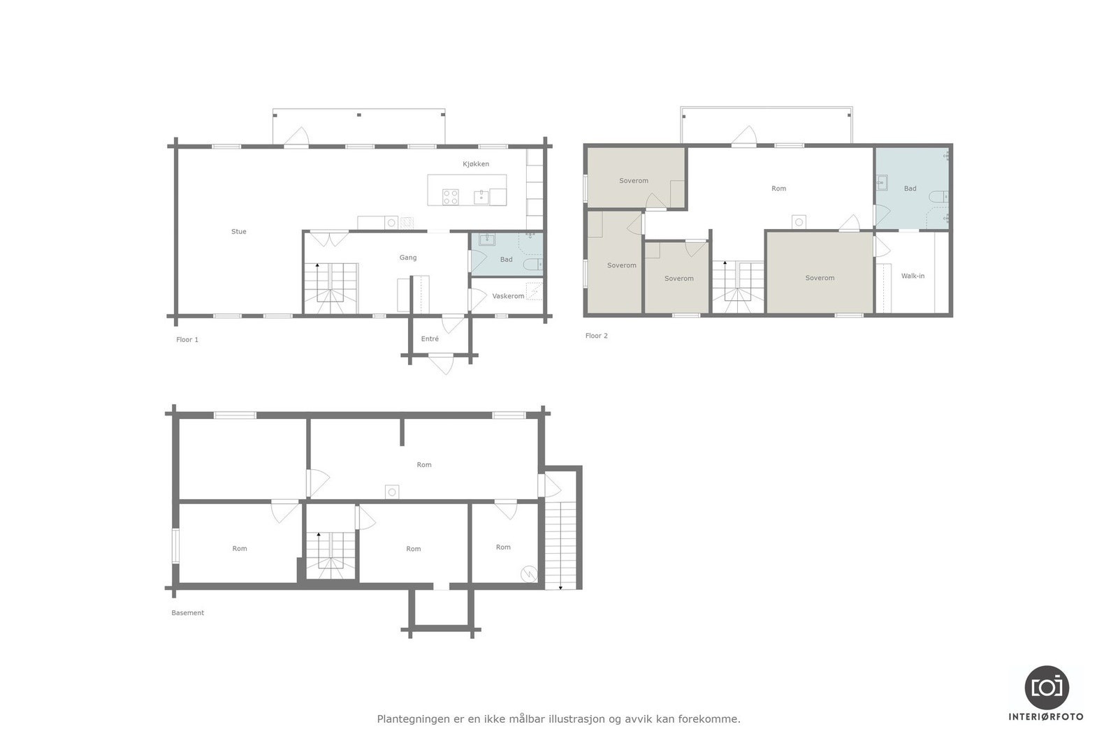
Innvendig venter et romslig og innholdsrikt hjem. Med fire soverom, to bad og en separat hybelleilighet med to soverom og ett bad, er dette et ypperlig familiehjem med gode inntekts- eller gjestemuligheter.
Boligen tilbyr:
Utsøkt beliggenhet med frihet og nærhet til sentrum
Nydelig turområder og skiløyper rett utenfor døra
Hybelleilighet - perfekt for utleie, gjester eller tenåring
Varmepumpe for behagelig klima hele året
Romslig og praktisk planløsning over tre etasjer, inkludert flere boder
I rolige omgivelser i enden av Hagaveien finner du denne innholdsrike eneboligen. Eiendommen grenser til dyrket mark og tilbyr både fred og frihet, samt nærhet til alt Røros har å by på.
Gjennom året kan du nyte fantastiske turmuligheter rett utenfor døra og om vinteren går skiløypa rett forbi huset - perfekt for de som elsker et aktivt friluftsliv.
Innvendig venter et romslig og innholdsrikt hjem. Med fire soverom, to bad og en separat hybelleilighet med to soverom og ett bad, er dette et ypperlig familiehjem med gode inntekts- eller gjestemuligheter.
Boligen tilbyr:
Utsøkt beliggenhet med frihet og nærhet til sentrum
Nydelig turområder og skiløyper rett utenfor døra
Hybelleilighet - perfekt for utleie, gjester eller tenåring
Varmepumpe for behagelig klima hele året
Romslig og praktisk planløsning over tre etasjer, inkludert flere boder
NB: Knappen for å vise hele beskrivelsen har kun en visuell effekt.
NB: Knappen for å vise hele beskrivelsen har kun en visuell effekt.
Salgsoppgaven beskriver vesentlig og lovpålagt informasjon om eiendommen
Se komplett salgsoppgaveNærområdet
Nylander &Partners, Røros
Verdien av lokalkunnskap
Annonseinformasjon
| FINN-kode | 426596125 |
|---|---|
| Sist endret | 21. okt. 2025 04:02 |
| Referanse | 13250063 |
Annonsene kan være mangelfulle i forhold til lovpålagt opplysningsplikt. Før bindende avtale inngås oppfordres interessenter til å innhente komplett informasjon fra meglerforetaket, selger eller utleier.








































