Bildegalleri

Velkommen til Ekebergveien 239C! - En ny og moderne 3-roms hjørneleilighet med stor markterrasse på 21 m²
Poppelhagen på Sæter
Ny & moderne 3-roms hjørneleilighet | Stor markterrasse på 21 m² | V.vann & fyring ink. | Lave omk. | Parkering*
Prisantydning9 150 000 kr
Nøkkelinfo
- Boligtype
- Leilighet
- Eieform
- Eier (Selveier)
- Soverom
- 2
- Internt bruksareal
- 81 m² (BRA-i)
- Bruksareal
- 86 m²
- Eksternt bruksareal
- 5 m² (BRA-e)
- Balkong/Terrasse
- 21 m² (TBA)
- Etasje
- 2
- Byggeår
- 2024
- Energimerking
- A - Gul
- Rom
- 3
- Tomteareal
- 7 643 m² (eiet)
Fasiliteter
Balkong/Terrasse
Barnevennlig
Bredbåndstilknytning
Garasje/P-plass
Heis
Kjæledyr tillatt
Offentlig vann/kloakk
Parkett
Sentralt
Vaktmester-/vektertjeneste
Turterreng
Balansert ventilasjon
Visning
Oppmøte i den hvite villaen i bakgården. Skiltet med Nordvik visningsskilt. Husk påmelding, visning blir ikke gjennomført dersom det ikke er påmeldinger.
VisningspåmeldingOm boligen
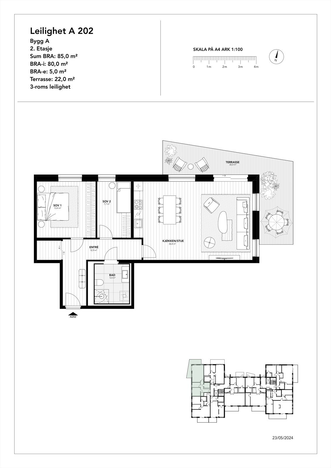
Velkommen til leilighet A202 i idylliske Poppelhagen på Sæter. Dette er en lekker 3-roms selveierleilighet med stor markterrasse på 21 m² med plass til flere sittegrupper. Dette er leiligheten for deg som ønsker et nytt og innflyttingsklart hjem med alt av fasiliteter.
- Flott 3-roms hjørneleilighet på 81 m²
- Gjennomgående ny og moderne standard
- Markterrasse på 21 m²
- Stilren kjøkkeninnredning fra HTH med hvitevarer fra Siemens
- Mulighet for leie av garasjeplass*
- Vannbåren gulvvarme og balansert ventilasjon
- Store, pent opparbeidede fellesarealer med beplantning, internstier og sitteplasser
- Attraktiv beliggenhet på Sæter med et rikelig utvalg fasiliteter i umiddelbar nærhet
- Se prosjektets hjemmeside: poppelhagen.no
NB: Knappen for å vise hele beskrivelsen har kun en visuell effekt.
NB: Knappen for å vise hele beskrivelsen har kun en visuell effekt.
Salgsoppgaven beskriver vesentlig og lovpålagt informasjon om eiendommen
Se komplett salgsoppgaveNyttige lenker
Nærområdet
Nordvik Frogner
Annonseinformasjon
| FINN-kode | 426555585 |
|---|---|
| Sist endret | 02. jan. 2026 16:20 |
| Referanse | 14-0569/25 |
Annonsene kan være mangelfulle i forhold til lovpålagt opplysningsplikt. Før bindende avtale inngås oppfordres interessenter til å innhente komplett informasjon fra meglerforetaket, selger eller utleier.





































