Bildegalleri

Velkommen til Strondavegen 2645.

SKÅNEVIK / Skålnes

Moderne enebolig med sjøutsikt og familievennlig beliggenhet

Prisantydning3 990 000 kr
Totalpris
4 106 740 kr
Omkostninger
116 740 kr
Kommunale avg.
14 500 kr per år

Nøkkelinfo

Boligtype
Enebolig
Eieform
Eier (Selveier)
Soverom
3
Internt bruksareal
135 m² (BRA-i)
Bruksareal
140 m²
Eksternt bruksareal
5 m² (BRA-e)
Byggeår
2023
Tomteareal
568 m² (eiet)

Les mer om bruksareal her

Fasiliteter

Peis/Ildsted
Barnevennlig
Garasje/P-plass
Sentralt
Aircondition
Bredbåndstilknytning
Utsikt
Offentlig vann/kloakk
Turterreng
Balkong/Terrasse
Balansert ventilasjon

Visning

Ta kontakt for å avtale visning.
Visningspåmelding

Om boligen

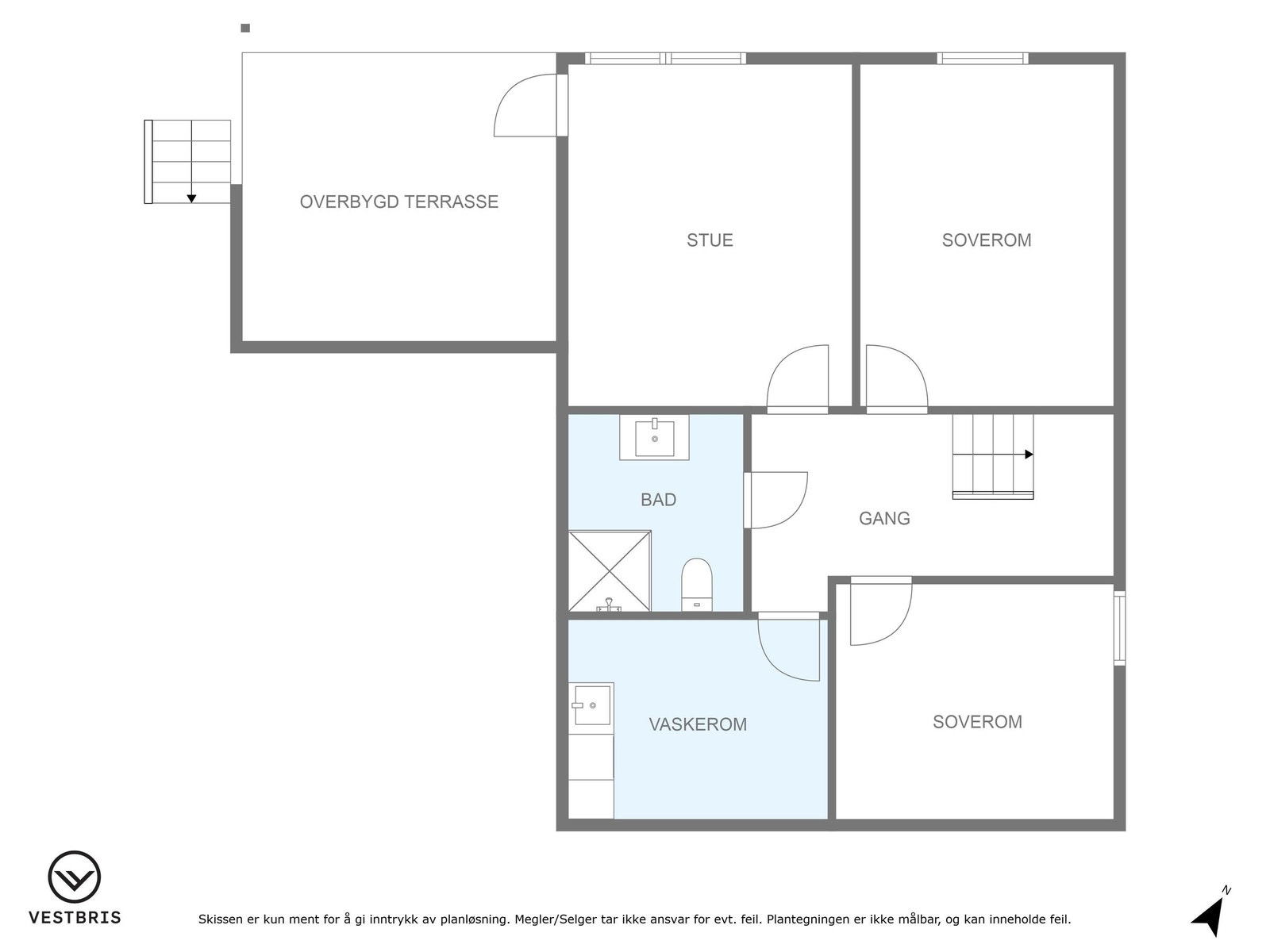
Moderne enebolig fra 2023 med høy standard og attraktiv beliggenhet. Boligen har 3 soverom, 2 bad, eget vaskerom, stilrent HTH-kjøkken og romslig kjellerstue. Store vindusflater gir flott lysinnslipp og nydelig sjøutsikt. Eiendommen byr på gode parkeringsmuligheter og et godt potensial for å opparbeide en trivelig hage.

Beliggenhet

Boligen ligger i et rolig og familievennlig nabolag med kort gangavstand til skole, barnehage, idrettsanlegg, dagligvare og topp moderne utebasseng. Her får du et trygt bomiljø kombinert med gode transportmuligheter – både hurtigbåt til Bergen og bussforbindelse ligger i nærheten. I tillegg er området omgitt av fine turområder og bademuligheter.

Annet

Har du lyst til å se boligen? Ring meg eller send melding til 45485744 for en hyggelig prat eller for å avtale visning.

Omkostninger

15 900 kr (HELP boligkjøperforsikring (valgfritt))
99 750 kr (Dokumentavgift)
545 kr (Tinglysing av pantedokument)
545 kr (Tinglysing av skjøte)

---

116 740 kr (Omkostninger totalt)

---

4 106 740 kr (Totalpris inkl. omkostninger)

NB: Regnestykket forutsetter at det kun tinglyses én låneobligasjon og at eiendommen selges til prisantydning.

Det tas forbehold om endringer i offentlige og private gebyrer.

Selger er selv ansvarlig for følgende gebyr:

545 kr (Panterett med urådighet)

Salgsoppgaven beskriver vesentlig og lovpålagt informasjon om eiendommen

Se komplett salgsoppgave

Nærområdet

Annonseinformasjon

FINN-kode426457386
Sist endret08. feb. 2026 08:56

Rapporter annonse

Annonsene kan være mangelfulle i forhold til lovpålagt opplysningsplikt. Før bindende avtale inngås oppfordres interessenter til å innhente komplett informasjon fra meglerforetaket, selger eller utleier.