Bildegalleri

Velkommen til Lilleveien 43!
Koselig enebolig rett ved sentrum av Ørje! Betydelige oppgraderinger fra 2020-2025 | Pent opparbeidet tomt /Ny drenering
Prisantydning3 290 000 kr
Nøkkelinfo
- Boligtype
- Enebolig
- Eieform
- Eier (Selveier)
- Soverom
- 3
- Internt bruksareal
- 162 m² (BRA-i)
- Bruksareal
- 168 m²
- Eksternt bruksareal
- 6 m² (BRA-e)
- Balkong/Terrasse
- 16 m² (TBA)
- Etasje
- 3
- Byggeår
- 1931
- Energimerking
- G - Gul
- Tomteareal
- 973 m² (eiet)
Fasiliteter
Barnevennlig
Balkong/Terrasse
Garasje/P-plass
Offentlig vann/kloakk
Peis/Ildsted
Turterreng
Utsikt
Sentralt
Rolig
Om boligen
Velkommen til Lilleveien 43 i Ørje sentrum!
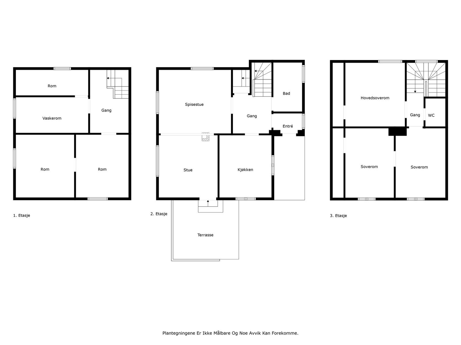
Lilleveien 43 er en koselig og oppgradert enebolig med en flott beliggenhet i Ørje sentrum. Her har man gangavstand til alle fasiliteter. Det er romslig tomt over flere plan med mange muligheter. Stor gressplen for lek og moro i trygge omgivelser. Tomten rundt boligen er oppgradert med ny drenering, plen og nye terrasser i 2023. Stuen er av det tiltalende slaget og med flere gode soner. Innvendig har boligen blitt modernisert og det er nyere elektrisk anlegg. Fra stuen har man utgang til terrasse med flott utsikt samt skjermet hage. Meget gode solforhold på tomten. Boligen har blitt vesentlig oppgradert fra 2020-2025
I stuen er det spiseplass, tv-krok og en lesekrok. Videre har boligen romslig bad, pent kjøkken, et vaskerom og tre soverom.
Lilleveien 43 er en koselig og oppgradert enebolig med en flott beliggenhet i Ørje sentrum. Her har man gangavstand til alle fasiliteter. Det er romslig tomt over flere plan med mange muligheter. Stor gressplen for lek og moro i trygge omgivelser. Tomten rundt boligen er oppgradert med ny drenering, plen og nye terrasser i 2023. Stuen er av det tiltalende slaget og med flere gode soner. Innvendig har boligen blitt modernisert og det er nyere elektrisk anlegg. Fra stuen har man utgang til terrasse med flott utsikt samt skjermet hage. Meget gode solforhold på tomten. Boligen har blitt vesentlig oppgradert fra 2020-2025
I stuen er det spiseplass, tv-krok og en lesekrok. Videre har boligen romslig bad, pent kjøkken, et vaskerom og tre soverom.
NB: Knappen for å vise hele beskrivelsen har kun en visuell effekt.
NB: Knappen for å vise hele beskrivelsen har kun en visuell effekt.
Salgsoppgaven beskriver vesentlig og lovpålagt informasjon om eiendommen
Se komplett salgsoppgaveNyttige lenker
Nærområdet
PrivatMegleren Indre Østfold
Kun det beste på dine vegne
Annonseinformasjon
| FINN-kode | 426368452 |
|---|---|
| Sist endret | 26. jan. 2026 05:02 |
| Referanse | 292250125 |
Annonsene kan være mangelfulle i forhold til lovpålagt opplysningsplikt. Før bindende avtale inngås oppfordres interessenter til å innhente komplett informasjon fra meglerforetaket, selger eller utleier.









































