Bildegalleri

Verandaen er målt til 60 kvm og har rikelig med plass til utemøbler og grill.
Brunåsen
Moderne leilighet med 60 m² uteplass, skjermet beliggenhet, carport og gangavstand til sentrum!
Prisantydning2 950 000 kr
Nøkkelinfo
- Boligtype
- Leilighet
- Eieform
- Eier (Selveier)
- Soverom
- 2
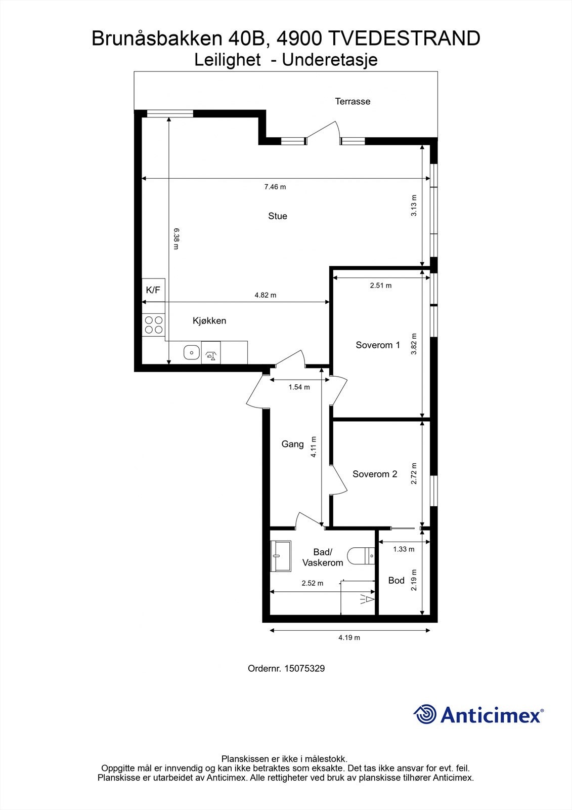
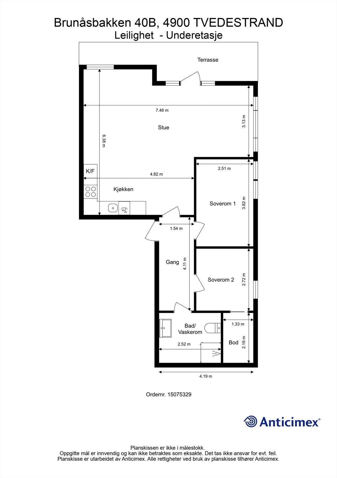
- Internt bruksareal
- 73 m² (BRA-i)
- Bruksareal
- 78 m²
- Eksternt bruksareal
- 5 m² (BRA-e)
- Balkong/Terrasse
- 60 m² (TBA)
- Etasje
- -1
- Byggeår
- 2020
- Energimerking
- B - Rød
- Rom
- 3
- Tomteareal
- 4 093 m² (eiet)
Fasiliteter
Balkong/Terrasse
Barnevennlig
Bredbåndstilknytning
Garasje/P-plass
Golfbane
Kjæledyr tillatt
Offentlig vann/kloakk
Rolig
Sentralt
Utsikt
Bademulighet
Turterreng
Lademulighet
Balansert ventilasjon
Visning
For å delta på visning, ber vi om at du melder deg på. Da sikrer vi at du får nødvendig informasjon og at det er satt av tilstrekkelig med tid. Kontakt megler dersom annet tidspunkt ønskes. Husk å lese salgsoppgaven før visningen, så du stiller forberedt. NB. Visning utgår dersom det ikke er noen påmeldte.
Ønsker du kun å bli holdt orientert, kan du fra eiendommens hjemmeside få varsel om solgtpris, eller kontakte megler.
VisningspåmeldingOm boligen
Elegant og moderne leilighet fra 2020 med tidløse farger, gjennomtenkte løsninger og alt samlet på ett plan. Her bor du i et stille og attraktivt område på Brunåsen med kort vei til sjø, natur og sentrum. Boligen består av entré, to soverom, bad, bod/teknisk rom og en åpen stue- og kjøkkenløsning med utgang til en solrik veranda på hele 60 m². Leiligheten nås via en trapp ned som gir en mer privat og skjermet beliggenhet, samtidig som du kommer ned til et uteområde med vakker utsikt over Tjennaparken og sentrum. Det følger med innendørs sportsbod, carport og gjesteparkeringsmuligheter.
Mulighet for tredje soverom etter godkjent tegning.
Mulighet for tredje soverom etter godkjent tegning.
NB: Knappen for å vise hele beskrivelsen har kun en visuell effekt.
NB: Knappen for å vise hele beskrivelsen har kun en visuell effekt.
Salgsoppgaven beskriver vesentlig og lovpålagt informasjon om eiendommen
Se komplett salgsoppgaveNyttige lenker
Nærområdet
Krogsveen Arendal
Verdien av en god megler.
Annonseinformasjon
| FINN-kode | 426307844 |
|---|---|
| Sist endret | 11. feb. 2026 21:37 |
| Referanse | KR47.25157 |
Annonsene kan være mangelfulle i forhold til lovpålagt opplysningsplikt. Før bindende avtale inngås oppfordres interessenter til å innhente komplett informasjon fra meglerforetaket, selger eller utleier.





























