Bildegalleri

Sentrumshagene hus A! Leilighet A402 markert med rød pil.Kun ment som illustrasjon.
Sentrumshagene
Ås sentrum - Ny og innflyttingsklar 2-roms selveier i 4. etg. med 10 kvm sydvendt balkong. Heis. God standard.
Prisantydning3 990 000 kr
Nøkkelinfo
- Boligtype
- Leilighet
- Eieform
- Eier (Selveier)
- Soverom
- 1
- Internt bruksareal
- 37 m² (BRA-i)
- Bruksareal
- 39 m²
- Eksternt bruksareal
- 3 m² (BRA-e)
- Balkong/Terrasse
- 10 m² (TBA)
- Etasje
- 4
- Byggeår
- 2025
- Energimerking
- B - Mørkegrønn
- Rom
- 2
- Tomteareal
- 4 993 m² (eiet)
Fasiliteter
Balkong/Terrasse
Barnevennlig
Garasje/P-plass
Heis
Kjæledyr tillatt
Offentlig vann/kloakk
Parkett
Rolig
Sentralt
Turterreng
Balansert ventilasjon
Om boligen
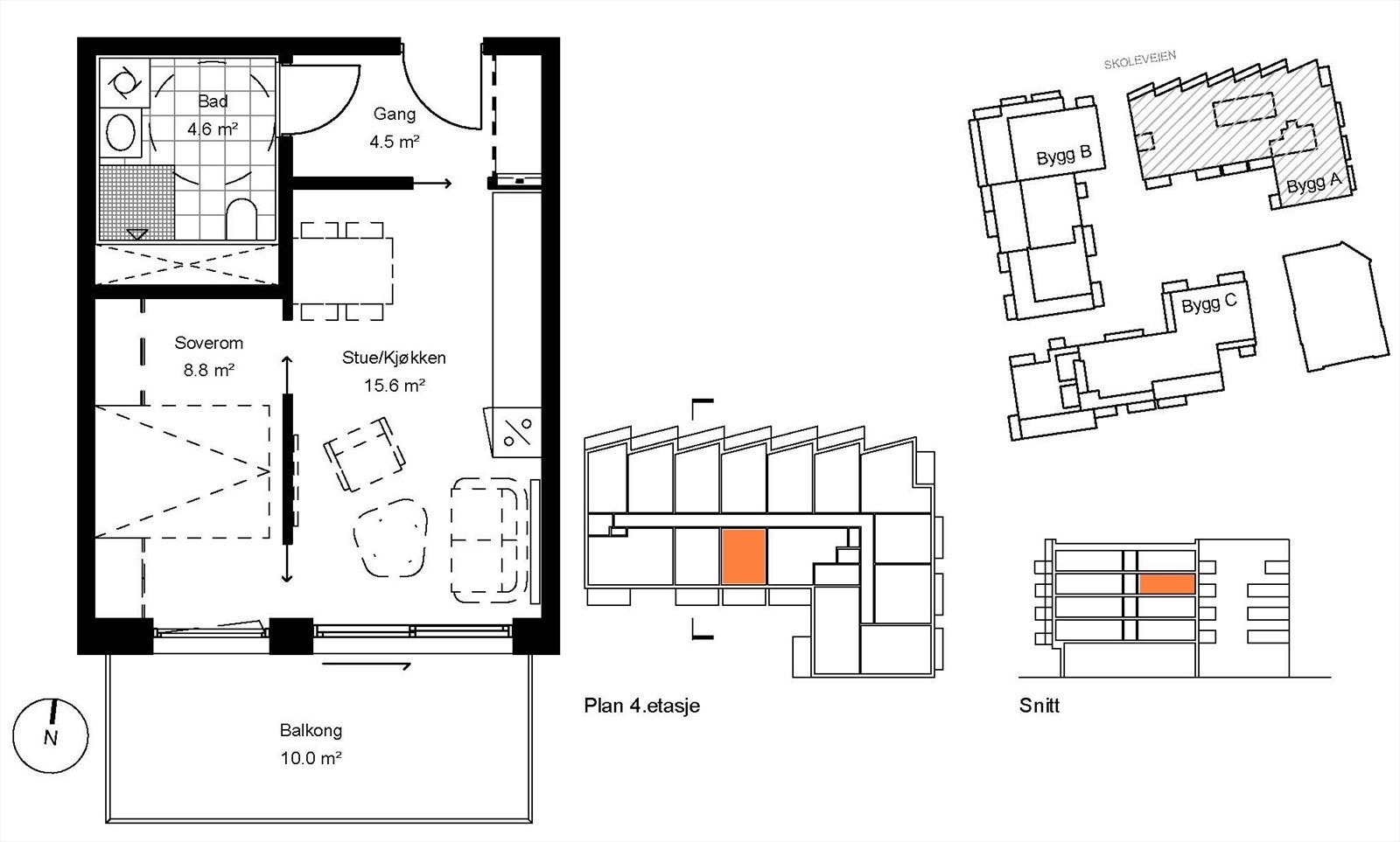
Flott og arealeffektiv 2-roms selveierleilighet beliggende i 4. etasje.
Boligen har en god planløsning som inneholder entré/gang, pent flislagt baderom, soverom, kjøkken og stue i åpen løsning med utgang til sydvendt balkong på ca. 10 kvm. Det medfølger 1 sportsbod i felles anlegg med heis til leilighetsplan. På toppen av bygget er det en stor felles takterrasse på ca. 800 kvm.
Boligen har en god planløsning som inneholder entré/gang, pent flislagt baderom, soverom, kjøkken og stue i åpen løsning med utgang til sydvendt balkong på ca. 10 kvm. Det medfølger 1 sportsbod i felles anlegg med heis til leilighetsplan. På toppen av bygget er det en stor felles takterrasse på ca. 800 kvm.
- Gjennomgående god standard
- Kjøkken fra HTH med integrerte hvitevarer fra Siemens
- En-stavs hvitlasert eikeparkett på gulv
- Lekre fliser på bad og moderne vvs-utstyr
- Energieffektiv bolig med balansert ventilasjon og fjernvarme
- Felles sykkelverksted og sykkeparkering
- 19 min fra Ås til Oslo med Follobanen
- Kort vei til flotte turområder
- Nybyggaranti til juli 2030
Velkommen!
NB: Knappen for å vise hele beskrivelsen har kun en visuell effekt.
NB: Knappen for å vise hele beskrivelsen har kun en visuell effekt.
Salgsoppgaven beskriver vesentlig og lovpålagt informasjon om eiendommen
Se komplett salgsoppgaveNærområdet
Sem & Johnsen
Boliger utenom det vanlige
Annonseinformasjon
| FINN-kode | 426219014 |
|---|---|
| Sist endret | 04. des. 2025 10:21 |
| Referanse | 20-25-1246 |
Annonsene kan være mangelfulle i forhold til lovpålagt opplysningsplikt. Før bindende avtale inngås oppfordres interessenter til å innhente komplett informasjon fra meglerforetaket, selger eller utleier.










