Bildegalleri

Velkommen til Hansteens gate 25! Leiligheten har privat takterrasse med glasstak på ca. 7 kvm. Her er det god plass til utemøbler og det er tilgang til egen utebod.
Inaktiv
Lys og attraktiv 3-roms toppleilighet med nordvestvendt takterrasse - Meget generøs takhøyde - Teglsteinsvegg - Peis
Prisantydning8 850 000 kr
Nøkkelinfo
- Boligtype
- Leilighet
- Eieform
- Eier (Selveier)
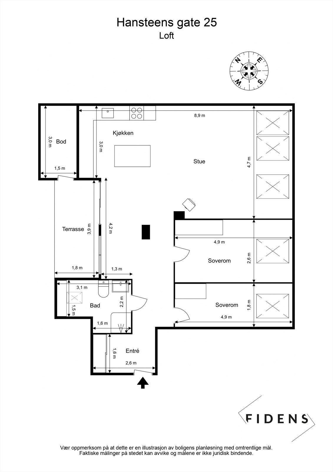
- Soverom
- 2
- Internt bruksareal
- 81 m² (BRA-i)
- Bruksareal
- 96 m²
- Eksternt bruksareal
- 8 m² (BRA-e)
- Innglasset balkong
- 7 m² (BRA-b)
- Etasje
- 5
- Byggeår
- 1895
- Energimerking
- G - Oransje
- Rom
- 3
- Tomteareal
- 431 m² (eiet)
Fasiliteter
Takterrasse
Balkong/Terrasse
Offentlig vann/kloakk
Parkett
Peis/Ildsted
Rolig
Sentralt
Utsikt
Turterreng
Om boligen
Velkommen til Hansteens gate 25 en svært attraktiv og gjennomført 3-roms selveier i Vika.
Leiligheten kombinerer sentral, men skjermet beliggenhet med moderne standard, ca. 4 m takhøyde og peis. Store vinduer kan åpnes helt og gir luftig romfølelse. Fra stuen er det utgang til nordvestvendt takterrasse/vinterhage med åpningsbart glasstak og ettermiddagssol til ca. 20.30 om sommeren. Planløsningen er effektiv med romslig entré med skyvedørsgarderobe, flislagt bad, åpen stue/kjøkken fra KVIK (2018) og to gode soverom.
Høydepunkter:
- Vestvendt takterrasse/vinterhage
- Store vinduer som kan åpnes helt
- Peis og takhøyde på litt over 4 meter på det høyeste
- KVIK-kjøkken fra 2018
- To soverom
- Nye takvinduer 2025 i hele boligen
- Praktisk, gjennomtenkt planløsnig
- Kjellerbod og loftsbod
Leiligheten kombinerer sentral, men skjermet beliggenhet med moderne standard, ca. 4 m takhøyde og peis. Store vinduer kan åpnes helt og gir luftig romfølelse. Fra stuen er det utgang til nordvestvendt takterrasse/vinterhage med åpningsbart glasstak og ettermiddagssol til ca. 20.30 om sommeren. Planløsningen er effektiv med romslig entré med skyvedørsgarderobe, flislagt bad, åpen stue/kjøkken fra KVIK (2018) og to gode soverom.
Høydepunkter:
- Vestvendt takterrasse/vinterhage
- Store vinduer som kan åpnes helt
- Peis og takhøyde på litt over 4 meter på det høyeste
- KVIK-kjøkken fra 2018
- To soverom
- Nye takvinduer 2025 i hele boligen
- Praktisk, gjennomtenkt planløsnig
- Kjellerbod og loftsbod
NB: Knappen for å vise hele beskrivelsen har kun en visuell effekt.
NB: Knappen for å vise hele beskrivelsen har kun en visuell effekt.
Salgsoppgaven beskriver vesentlig og lovpålagt informasjon om eiendommen
Se komplett salgsoppgaveNyttige lenker
Nærområdet
Nordvik St.Hanshaugen
Annonseinformasjon
| FINN-kode | 426122862 |
|---|---|
| Sist endret | 21. jan. 2026 13:16 |
| Referanse | 5-0393/25 |
Annonsene kan være mangelfulle i forhold til lovpålagt opplysningsplikt. Før bindende avtale inngås oppfordres interessenter til å innhente komplett informasjon fra meglerforetaket, selger eller utleier.




































