Bildegalleri

Velkommen til Østbakken 6 - Innholdsrik enebolig over to plan med fin utsikt mot Visterflo
Rolvsøy
Romslig enebolig over 2 plan i et attraktivt område. Boligen er innredet i underetasjen. Flott utsikt
Prisantydning5 650 000 kr
Nøkkelinfo
- Boligtype
- Enebolig
- Eieform
- Eier (Selveier)
- Soverom
- 3
- Internt bruksareal
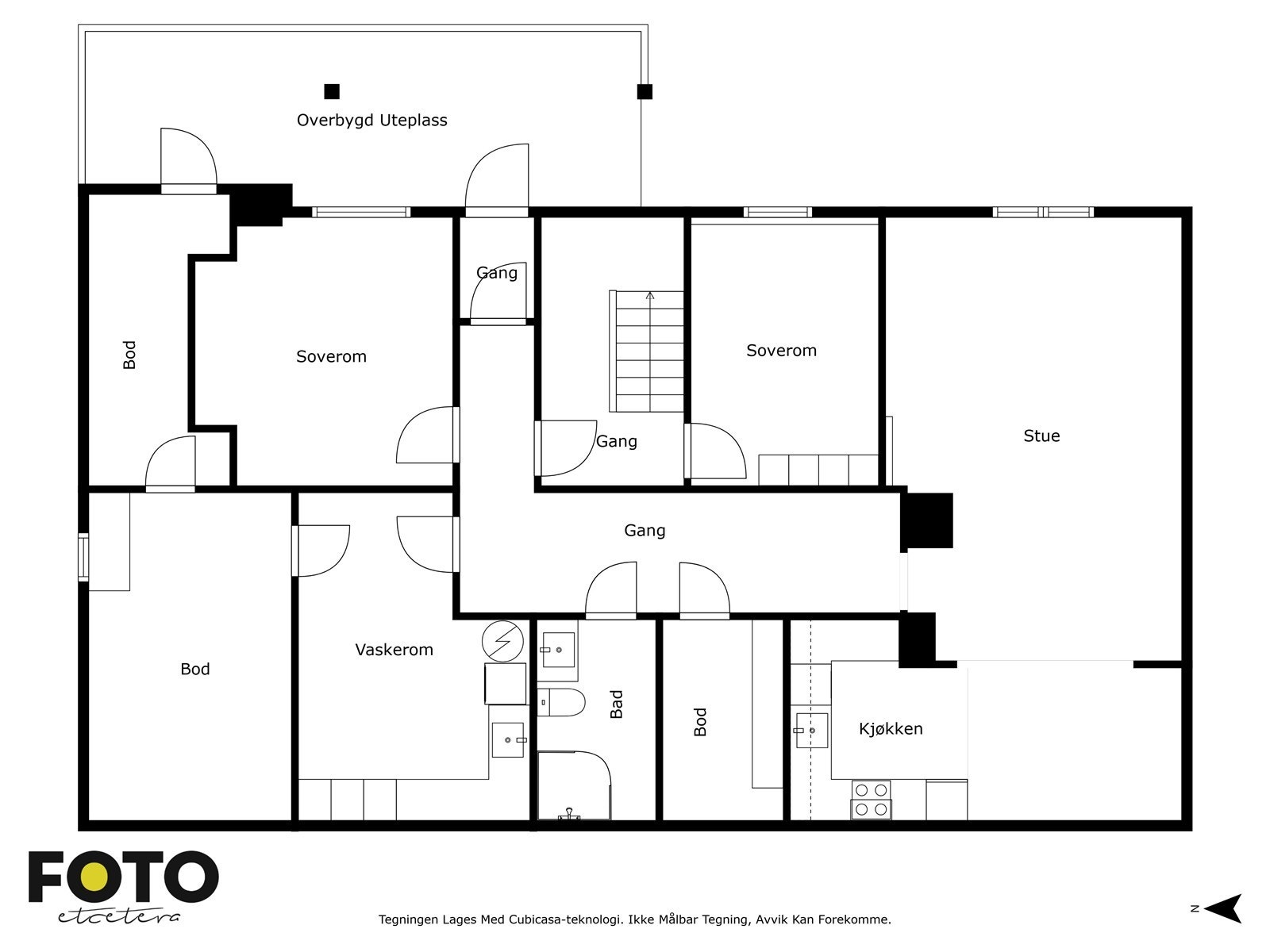
- 290 m² (BRA-i)
- Bruksareal
- 318 m²
- Eksternt bruksareal
- 28 m² (BRA-e)
- Etasje
- 2
- Byggeår
- 1986
- Rom
- 4
- Tomteareal
- 886 m² (eiet)
Fasiliteter
Balkong/Terrasse
Barnevennlig
Bredbåndstilknytning
Garasje/P-plass
Hage
Kjæledyr tillatt
Kabel-TV
Offentlig vann/kloakk
Parkett
Peis/Ildsted
Rolig
Sentralt
Utsikt
Turterreng
Visning
Ønsker du å delta på visningen ber vi om at du melder deg på slik at vi vet at du kommer. På den måten kan vi bistå alle best mulig, og gi deg tid på visningen. Visningen avholdes bare dersom det er påmeldte 2 timer innen oppsatt visningstidspunkt. Ta gjerne kontakt med megler på telefon 979 78 119 før visningen, hvis du har noen spørsmål. Velkommen!
VisningspåmeldingOm boligen
Velkommen til Østbakken 6 - dette er en enebolig av god størrelse som ligger i et attraktivt område. Boligen fremstår som velholdt og har blitt oppgradert de siste årene med blant annet nyere kjøkken i begge etasjer, nyere bad, overflater i begge etasjer mm.
Boligen har fine uteområder både i form av store flater med gressplen og flere solrike plattinger. Det er i tillegg en koselig vinterhage som er innglasset.
Eiendommen ligger på Rostadneset, mellom Rolvsøy og E6. Her bor man midt mellom begge byene og et er attraktivt område med tanke på den korte avstanden til E6 for de som er avhengig av pendlerveien. Det er et rolig og koselig område med nærhet til flere fasiliteter som blant annet skole, turmuligheter, fotballbane mm.
Velkommen på visning. Husk påmelding!
Boligen har fine uteområder både i form av store flater med gressplen og flere solrike plattinger. Det er i tillegg en koselig vinterhage som er innglasset.
Eiendommen ligger på Rostadneset, mellom Rolvsøy og E6. Her bor man midt mellom begge byene og et er attraktivt område med tanke på den korte avstanden til E6 for de som er avhengig av pendlerveien. Det er et rolig og koselig område med nærhet til flere fasiliteter som blant annet skole, turmuligheter, fotballbane mm.
Velkommen på visning. Husk påmelding!
NB: Knappen for å vise hele beskrivelsen har kun en visuell effekt.
NB: Knappen for å vise hele beskrivelsen har kun en visuell effekt.
Salgsoppgaven beskriver vesentlig og lovpålagt informasjon om eiendommen
Se komplett salgsoppgaveNyttige lenker
Nærområdet
EiendomsMegler 1 Fredrikstad
Annonseinformasjon
| FINN-kode | 426110118 |
|---|---|
| Sist endret | 14. feb. 2026 12:42 |
| Referanse | 5340250183 |
Annonsene kan være mangelfulle i forhold til lovpålagt opplysningsplikt. Før bindende avtale inngås oppfordres interessenter til å innhente komplett informasjon fra meglerforetaket, selger eller utleier.















































