Bildegalleri

Velkommen til Furubakken 7 B! Et lys og trivelig rekkehus over to etasjer. Fotograf: Espen Edin.
Borgen
Lyst og fint rekkehus over to plan med carport til to biler, sportsbod og balkong - meget barnevennlig beliggenhet!
Prisantydning4 190 000 kr
Nøkkelinfo
- Boligtype
- Rekkehus
- Eieform
- Eier (Selveier)
- Soverom
- 3
- Internt bruksareal
- 90 m² (BRA-i)
- Bruksareal
- 95 m²
- Eksternt bruksareal
- 5 m² (BRA-e)
- Balkong/Terrasse
- 5 m² (TBA)
- Byggeår
- 2024
- Energimerking
- B - Oransje
- Rom
- 4
- Tomteareal
- 1 913 m² (eiet)
Fasiliteter
Balkong/Terrasse
Barnevennlig
Bredbåndstilknytning
Garasje/P-plass
Kjæledyr tillatt
Kabel-TV
Offentlig vann/kloakk
Peis/Ildsted
Rolig
Utsikt
Turterreng
Lademulighet
Balansert ventilasjon
Om boligen
Velkommen til Furubakken 7 B!
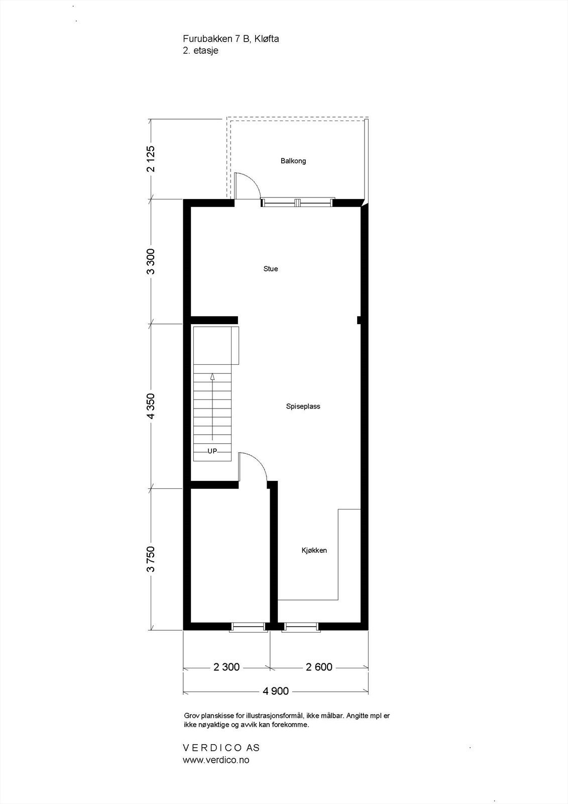
En fin rekkehusbolig over to plan. Boligen inneholder entre med flislagt gulv, gang, bod, lys og hyggelig stue med vedovn, fint kjøkken med god skap- og benkeplass, tre gode soverom, flislagt bad med gulvvarme og innvendig bod/teknisk rom. Det er utgang fra stuen til balkong på ca 5 kvm.
Det medfølger carport under bygget, med plass til to biler i lengden, samt bod med reoler i bakkant.
Boligen ligger på det nyere boligfeltet Borgen Vest. Herfra er det gangavstand til marka, skole, idrettsanlegg og flere barnehager. Det er ca 6 km til Kløfta der det blant annet er kjøpesenter, dagligvarebutikker og togstasjon, og ca 8 km til Jessheim hvor du har de fleste øvrige servicetilbud, samt ungdomsskole og videregående skole. Meget barnevennlig og kort vei til E6.
En fin rekkehusbolig over to plan. Boligen inneholder entre med flislagt gulv, gang, bod, lys og hyggelig stue med vedovn, fint kjøkken med god skap- og benkeplass, tre gode soverom, flislagt bad med gulvvarme og innvendig bod/teknisk rom. Det er utgang fra stuen til balkong på ca 5 kvm.
Det medfølger carport under bygget, med plass til to biler i lengden, samt bod med reoler i bakkant.
Boligen ligger på det nyere boligfeltet Borgen Vest. Herfra er det gangavstand til marka, skole, idrettsanlegg og flere barnehager. Det er ca 6 km til Kløfta der det blant annet er kjøpesenter, dagligvarebutikker og togstasjon, og ca 8 km til Jessheim hvor du har de fleste øvrige servicetilbud, samt ungdomsskole og videregående skole. Meget barnevennlig og kort vei til E6.
NB: Knappen for å vise hele beskrivelsen har kun en visuell effekt.
NB: Knappen for å vise hele beskrivelsen har kun en visuell effekt.
Salgsoppgaven beskriver vesentlig og lovpålagt informasjon om eiendommen
Se komplett salgsoppgaveNærområdet
Aktiv Jessheim
Annonseinformasjon
| FINN-kode | 426074616 |
|---|---|
| Sist endret | 20. jan. 2026 12:11 |
| Referanse | 1208250169 |
Annonsene kan være mangelfulle i forhold til lovpålagt opplysningsplikt. Før bindende avtale inngås oppfordres interessenter til å innhente komplett informasjon fra meglerforetaket, selger eller utleier.


































