Bildegalleri

Velkommen til Smedstadtoppen 3 og Klavavegen 4!
Nyoppført og innflyttingsklar enebolig fra 2025. 3 soverom. Dobbelgaraje. Kort vei til barnehage, skole og bymarka.
Prisantydning5 040 000 kr
Nøkkelinfo
- Boligtype
- Enebolig
- Eieform
- Eier (Selveier)
- Soverom
- 3
- Internt bruksareal
- 130 m² (BRA-i)
- Bruksareal
- 166 m²
- Eksternt bruksareal
- 36 m² (BRA-e)
- Balkong/Terrasse
- 4 m² (TBA)
- Etasje
- 1
- Byggeår
- 2025
- Rom
- 4
- Tomt
- Eiet
Fasiliteter
Barnevennlig
Garasje/P-plass
Hage
Offentlig vann/kloakk
Rolig
Sentralt
Turterreng
Balansert ventilasjon
Visning
torsdag, 08. januar
16:30 – 17:30
Ved annonsert visning er det viktig at du melder deg på visningen ved å bruke visningspåmeldingsknappen eller kontakter megler. Annonserte visninger hvor det ikke er noen påmeldte innen kl. 16.00 dagen før visningsdagen vil ikke bli avholdt.
For visninger utover dette, ta direkte kontakt med megler.
VisningspåmeldingOm boligen
Velkommen til Smedstadtoppen 3 og Klavavegen 4!
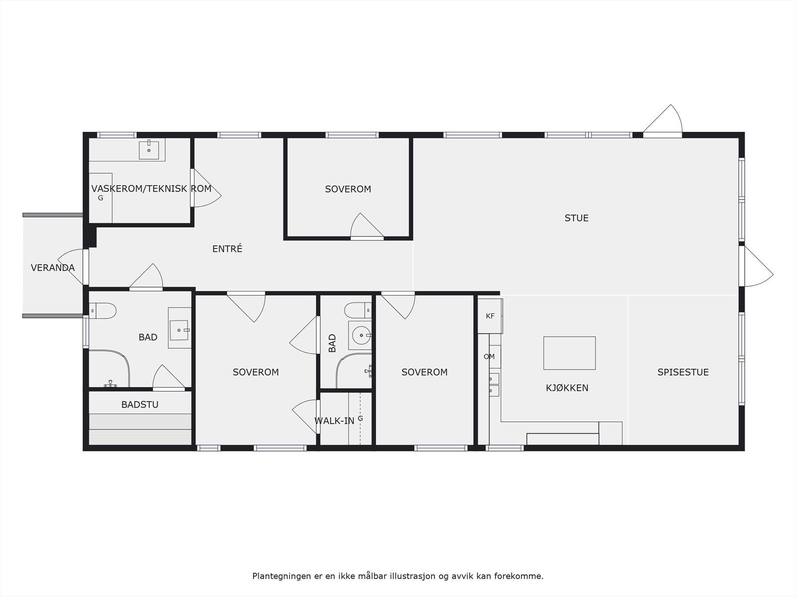
Splitter ny moderne og innflyttingsklar enebolig fra 2025. Boligen har en god og effektiv planløsning med alt på en flate. Adkomst via overbygget inngangsparti med platting, til en romslig gang med god plass til garderobe. Lys og åpen stue/kjøkken løsning med utgang til solrik hage. Integrerte hvitevarer på kjøkkenet. 3 store og fine soverom, hvorav et har adkomst til bad og walk-in. Lekkert hovedbad med badstue. Separat vaskerom Oppvarming med vannbåren varme via radiatorer. Dobbelgarasje på 36 kvm.
Boligen ligger i et nyetablert boligområde på Ydalir, med det meste av det du trenger i hverdagen i kort radius fra hjemmet ditt. Meget barnevennlig med kort vei til skole og barnehage.
Energikarakter A - mulighet for Grønt Boliglån!
Splitter ny moderne og innflyttingsklar enebolig fra 2025. Boligen har en god og effektiv planløsning med alt på en flate. Adkomst via overbygget inngangsparti med platting, til en romslig gang med god plass til garderobe. Lys og åpen stue/kjøkken løsning med utgang til solrik hage. Integrerte hvitevarer på kjøkkenet. 3 store og fine soverom, hvorav et har adkomst til bad og walk-in. Lekkert hovedbad med badstue. Separat vaskerom Oppvarming med vannbåren varme via radiatorer. Dobbelgarasje på 36 kvm.
Boligen ligger i et nyetablert boligområde på Ydalir, med det meste av det du trenger i hverdagen i kort radius fra hjemmet ditt. Meget barnevennlig med kort vei til skole og barnehage.
Energikarakter A - mulighet for Grønt Boliglån!
NB: Knappen for å vise hele beskrivelsen har kun en visuell effekt.
NB: Knappen for å vise hele beskrivelsen har kun en visuell effekt.
Salgsoppgaven beskriver vesentlig og lovpålagt informasjon om eiendommen
Se komplett salgsoppgaveNærområdet
Aktiv Innlandet
Annonseinformasjon
| FINN-kode | 426061445 |
|---|---|
| Sist endret | 19. des. 2025 08:15 |
| Referanse | 1211250262 |
Annonsene kan være mangelfulle i forhold til lovpålagt opplysningsplikt. Før bindende avtale inngås oppfordres interessenter til å innhente komplett informasjon fra meglerforetaket, selger eller utleier.



























