Bildegalleri

EiendomsMegler 1 v/Marius Aune Olsen har gleden av å ønske velkommen til Huldervegen 127!
SÆRDELES FLOTT REKKEHUS FRA 2012 PÅ 136M²| Familievennlig beliggenhet | solrike uteområder| Nydelig utsikt | Parkering
Nøkkelinfo
- Boligtype
- Rekkehus
- Eieform
- Eier (Selveier)
- Soverom
- 4
- Internt bruksareal
- 136 m² (BRA-i)
- Bruksareal
- 141 m²
- Eksternt bruksareal
- 5 m² (BRA-e)
- Balkong/Terrasse
- 49 m² (TBA)
- Etasje
- 3
- Byggeår
- 2012
- Energimerking
- B - Mørkegrønn
- Rom
- 6
- Tomt
- Eiet
Fasiliteter
Om boligen
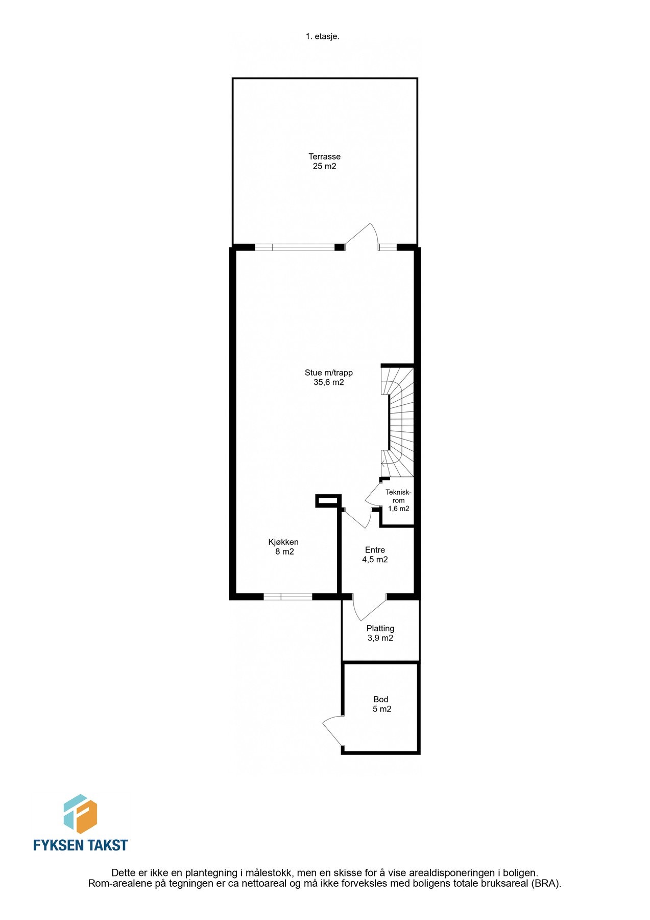
Boligen er på hele 136m² BRA-i og holder en gjennomgående god, moderne standard. Her får du en gjennomtenkt planløsning med funksjonelle løsninger og kvaliteter som to bad, fire soverom, to stuer samt flere solrike uteområder med fantastiske sol- og utsiktsforhold. Boligen må sies å ha en av de bedre beliggenhetene i feltet med skjermet toppetasje, ingen biltrafikk og nærhet til parkering.
Her bor du i et område med kort vei til skole, barnehager, idrettsanlegg og badeplasser, samtidig som området byr på gode kollektivforbindelser og nærhet til det meste du trenger i hverdagen.
Av mange kvaliteter kan man spesielt nevne:
- Nydelig rekkehus over 3 etasjer med gjennomtenkt planløsning
- Åpen stue/kjøkken- løsning på hele 43,6m² med gode møbleringsmuligheter
- Lyst og stilrent kjøkken med integrerte hvitevarer fra Miele
- Balansert ventilasjon, vannbåren varme og lave strømkostnader sommer som vinter.
- 4 gode soverom, 2 stuer og 2 bad
- Nydelige uteområder fordelt på alle etasjene som gjør det mulig å flytte seg etter solen.
- Parkering i parkeringskjeller.
Velkommen til en hyggelig visning!
Salgsoppgaven beskriver vesentlig og lovpålagt informasjon om eiendommen
Se komplett salgsoppgaveNyttige lenker
Nærområdet
EiendomsMegler 1 Grilstadporten
Prisstatistikk
Huldervegen 127
på annonsen
prisantydning per kvadratmeter
Prisfordeling
Pris per m² ligger 9 808 kr over snittet for rekkehus i Trondheim Øst.
Grafen viser antall rekkehus solgt i Trondheim Øst siste året fordelt på pris per m² - totalt 192 rekkehus
Antall boliger
Kvadratmeterpris tilsvarer prisantydning pluss fellesgjeld per kvadratmeter (p-rom eller BRA-i). Prisene i grafen er avrundet til nærmeste 1000 kr.
Annonseinformasjon
| FINN-kode | 425763794 |
|---|---|
| Sist endret | 09. okt. 2025 04:04 |
| Referanse | 33250264 |
Annonsene kan være mangelfulle i forhold til lovpålagt opplysningsplikt. Før bindende avtale inngås oppfordres interessenter til å innhente komplett informasjon fra meglerforetaket, selger eller utleier.
























































