Bildegalleri

Nåkkves vei 3 presenteres av EIE Eiendomsmegling ved Synne Eide Lunde.
Solgt
Tveita
Lys og pen 2-roms med balkong. Arealeffektiv planløsning. Fyring og varmtvann inkl. 2 min til buss/t-bane. Parkering*
Prisantydning3 500 000 kr
Nøkkelinfo
- Boligtype
- Leilighet
- Eieform
- Andel
- Soverom
- 1
- Internt bruksareal
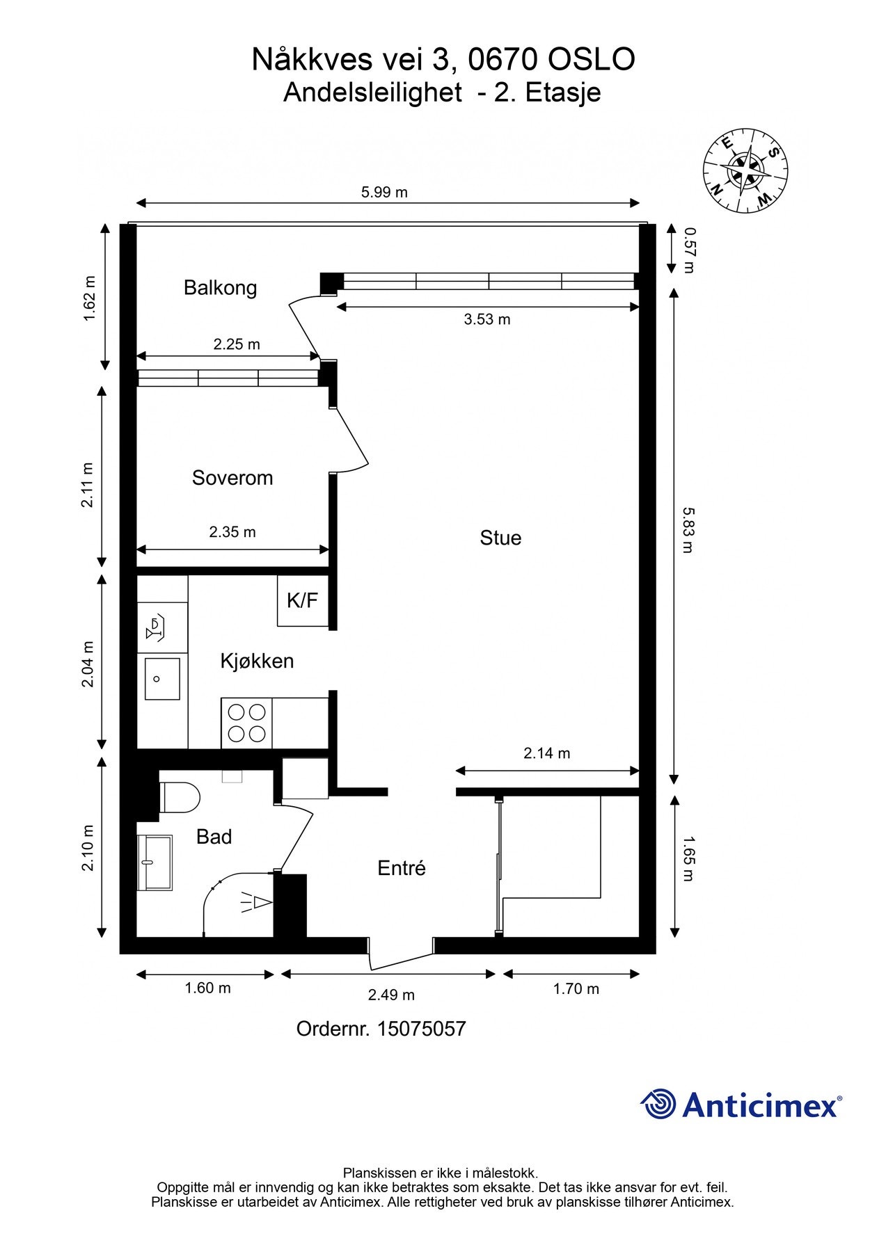
- 43 m² (BRA-i)
- Bruksareal
- 46 m²
- Eksternt bruksareal
- 3 m² (BRA-e)
- Balkong/Terrasse
- 6 m² (TBA)
- Etasje
- 2
- Byggeår
- 1969
- Energimerking
- F - Mørkegrønn
- Rom
- 2
- Tomteareal
- 34 929 m² (eiet)
Fasiliteter
Balkong/Terrasse
Garasje/P-plass
Kabel-TV
Heis
Offentlig vann/kloakk
Ingen gjenboere
Turterreng
Utsikt
Vaktmester-/vektertjeneste
Fellesvaskeri
Sentralt
Bredbåndstilknytning
Moderne
Rolig
Om boligen
Velkommen til Nåkkves vei 3 - En lys og pen 2-roms andelsleilighet med flott utsikt, uten innsyn. Leiligheten har en godt utnyttet og arealeffektiv planløsning, samt store vindusflater som slipper inn rikelig med naturlig lys. På den koselige balkongen kan man innrede med ønsket utemøblement, og den vil fungere som en forlengelse av stuen.
- 2. etasje med heis
- Arealeffektiv og godt utnyttet planløsning
- Koselig balkong på 6 kvm
- Flott utsikt og uten innsyn
- Rikelig med naturlig lysinnslipp fra store vindusflater
- Romslig stue med flere innredningsmuligheter
- Separat kjøkken med innredning fra 2022
- Helfliset bad med gulvvarme
- Fyring og varmtvann inkludert
- Disponibel bod i underetasje
- Bod i kjølerom i hver etasje
- Fellesvaskeri i hver etasje
- Felles takterrasse med flott utsikt og utmerkede solforhold
- Ved registrering hos driftskontoret kan beboer benytte biloppstillingsplass utenfor gratis
- Nærhet til servicetilbud
- 2 minutter til buss/t-bane
- 14 min til Oslo s
- 2. etasje med heis
- Arealeffektiv og godt utnyttet planløsning
- Koselig balkong på 6 kvm
- Flott utsikt og uten innsyn
- Rikelig med naturlig lysinnslipp fra store vindusflater
- Romslig stue med flere innredningsmuligheter
- Separat kjøkken med innredning fra 2022
- Helfliset bad med gulvvarme
- Fyring og varmtvann inkludert
- Disponibel bod i underetasje
- Bod i kjølerom i hver etasje
- Fellesvaskeri i hver etasje
- Felles takterrasse med flott utsikt og utmerkede solforhold
- Ved registrering hos driftskontoret kan beboer benytte biloppstillingsplass utenfor gratis
- Nærhet til servicetilbud
- 2 minutter til buss/t-bane
- 14 min til Oslo s
NB: Knappen for å vise hele beskrivelsen har kun en visuell effekt.
NB: Knappen for å vise hele beskrivelsen har kun en visuell effekt.
Salgsoppgaven beskriver vesentlig og lovpålagt informasjon om eiendommen
Se komplett salgsoppgaveNyttige lenker
Nærområdet
Mekleriet Oslo
Annonseinformasjon
| FINN-kode | 425761744 |
|---|---|
| Sist endret | 18. sep. 2025 10:44 |
| Referanse | 99251292 |
Annonsene kan være mangelfulle i forhold til lovpålagt opplysningsplikt. Før bindende avtale inngås oppfordres interessenter til å innhente komplett informasjon fra meglerforetaket, selger eller utleier.


























