Bildegalleri

Området
Nøtterøy/Skallestad
Innbydende og praktisk leilighet på bakkeplan med en flott uteplass. Parkering ved inngangsdør. Nærhet til skole, m.m
Prisantydning2 550 000 kr
Nøkkelinfo
- Boligtype
- Leilighet
- Eieform
- Andel
- Soverom
- 2
- Internt bruksareal
- 86 m² (BRA-i)
- Bruksareal
- 90 m²
- Eksternt bruksareal
- 4 m² (BRA-e)
- Balkong/Terrasse
- 20 m² (TBA)
- Etasje
- 1
- Byggeår
- 1992
- Energimerking
- E - Gul
- Rom
- 3
- Tomteareal
- 6 164 m² (eiet)
Fasiliteter
Balkong/Terrasse
Barnevennlig
Garasje/P-plass
Hage
Offentlig vann/kloakk
Peis/Ildsted
Rolig
Visning
onsdag, 11. mars
17:30 – 18:15
For å delta på visning, ber vi om at du melder deg på. Da sikrer vi at du får nødvendig informasjon og at det er satt av tilstrekkelig med tid. Kontakt megler dersom annet tidspunkt ønskes. Husk å lese salgsoppgaven før visningen, så du stiller forberedt. NB. Visning utgår dersom det ikke er noen påmeldte innen 2 timer før oppsatt visning.
Ønsker du kun å bli holdt orientert, kan du fra eiendommens hjemmeside få varsel om solgtpris, eller kontakte megler.
VisningspåmeldingOm boligen
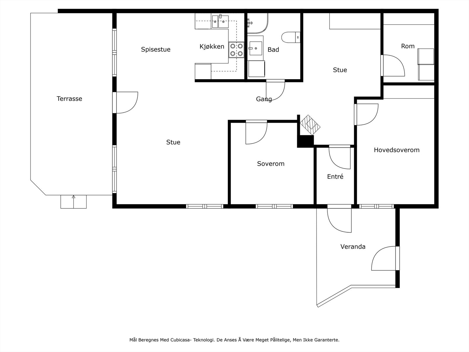
En hyggelig leilighet beliggende i 1. etasje med egen inngang og parkeringsmuligheter ved døren. Leiligheten har en fin planløsning og inneholder gang, to soverom, bad med opplegg for vaskemaskin, bod, stue og kjøkken med spiseplass. Fra stue/kjøkken del er det adkomst til en egen uteplass og hage. Pusset opp med b.la nyere gulv, flislagt vindfang, impregnert terrasse, varmepumpe, malt opp flatene, servantskap, speil og dusjarmatur, m.m
Velholdt borettslag hvor de senere år har byttet b.la takstein, beslag, inngangsdør, vasket og malt boligene og montert nytt ventilasjonsaggregat.
Beliggende i meget stille og rolige omgivelser med kort vei til skole, barnehager, MENY Skallestad, busstopp, sjø, båthavn samt flotte turområder både langs kysten og i skogen.
Velkommen til visning!
Velholdt borettslag hvor de senere år har byttet b.la takstein, beslag, inngangsdør, vasket og malt boligene og montert nytt ventilasjonsaggregat.
Beliggende i meget stille og rolige omgivelser med kort vei til skole, barnehager, MENY Skallestad, busstopp, sjø, båthavn samt flotte turområder både langs kysten og i skogen.
Velkommen til visning!
NB: Knappen for å vise hele beskrivelsen har kun en visuell effekt.
NB: Knappen for å vise hele beskrivelsen har kun en visuell effekt.
Salgsoppgaven beskriver vesentlig og lovpålagt informasjon om eiendommen
Se komplett salgsoppgaveNyttige lenker
Nærområdet
Krogsveen Tønsberg
Verdien av en god megler.
Annonseinformasjon
| FINN-kode | 425674398 |
|---|---|
| Sist endret | 02. mars 2026 13:12 |
| Referanse | KR21.25133 |
Annonsene kan være mangelfulle i forhold til lovpålagt opplysningsplikt. Før bindende avtale inngås oppfordres interessenter til å innhente komplett informasjon fra meglerforetaket, selger eller utleier.











































