Bildegalleri

Nordvik Tønsberg v/Jørgen Nyhus har gleden av å ønske velkommen til Thueveien 1A! Foto: Fotograf Magik.
Sentralt på øvre Teie!
Moderne og innholdsrik enebolig fra 2019 m/6 soverom, 2 stuer, 2 bad, garasje og drivhus | Solrikt og sentralt
Prisantydning9 990 000 kr
Nøkkelinfo
- Boligtype
- Enebolig
- Eieform
- Eier (Selveier)
- Soverom
- 6
- Internt bruksareal
- 222 m² (BRA-i)
- Bruksareal
- 268 m²
- Eksternt bruksareal
- 46 m² (BRA-e)
- Balkong/Terrasse
- 51 m² (TBA)
- Byggeår
- 2019
- Energimerking
- B - Oransje
- Rom
- 8
- Tomteareal
- 715 m² (eiet)
Fasiliteter
Takterrasse
Balkong/Terrasse
Barnevennlig
Garasje/P-plass
Hage
Kjæledyr tillatt
Ingen gjenboere
Offentlig vann/kloakk
Parkett
Peis/Ildsted
Rolig
Sentralt
Turterreng
Lademulighet
Balansert ventilasjon
Visning
søndag, 18. januar
13:30 – 14:15
Alle våre visninger har påmelding. På denne måten sikrer vi at megler har god oversikt og tid til å imøtekomme alle interessenter. Meld deg på visning ved å trykke på lenken visningspåmelding.
VisningspåmeldingOm boligen
Velkommen til Thueveien 1A en moderne og romslig enebolig fra 2019, perfekt beliggende midt på Teie. Her bor du i et rolig og etablert nabolag med kort gangavstand til Teie Torv med butikker, kafeer og servicetilbud, samtidig som sjø, strand og flotte turområder ligger like i nærheten.
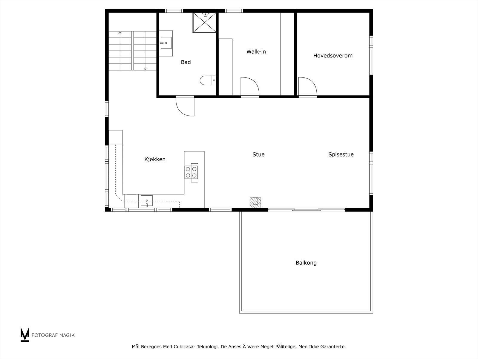
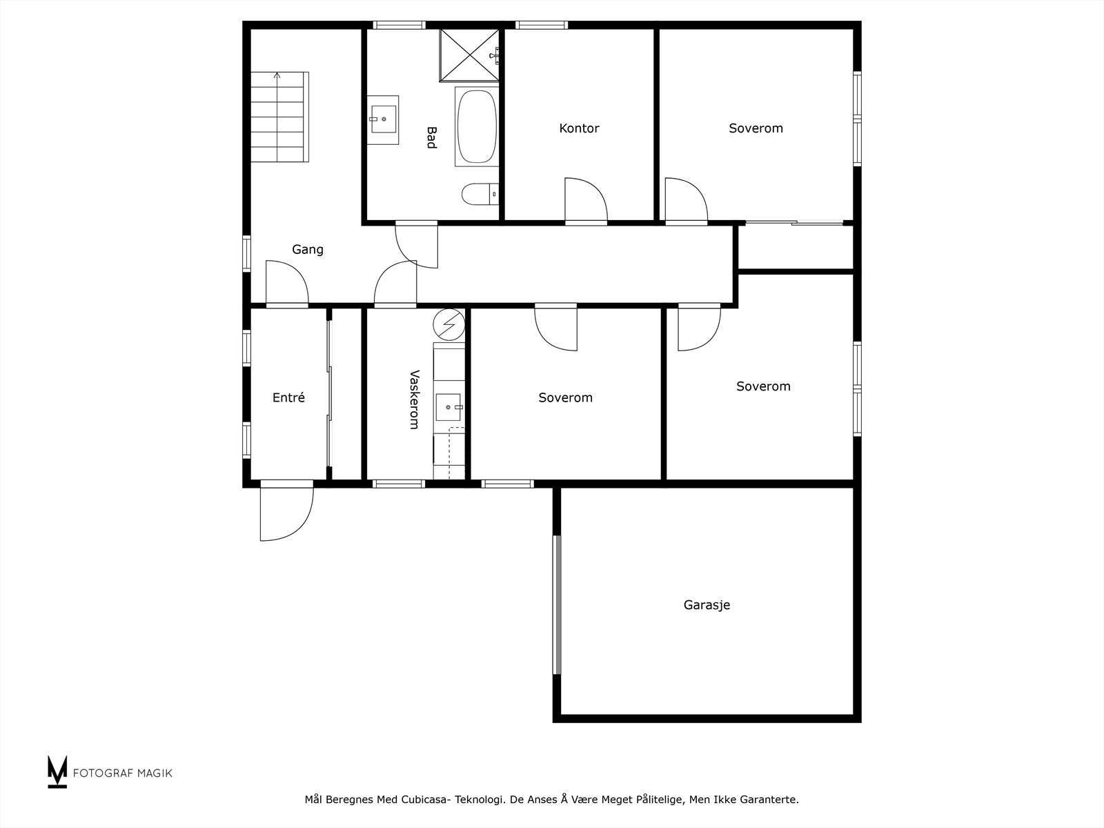
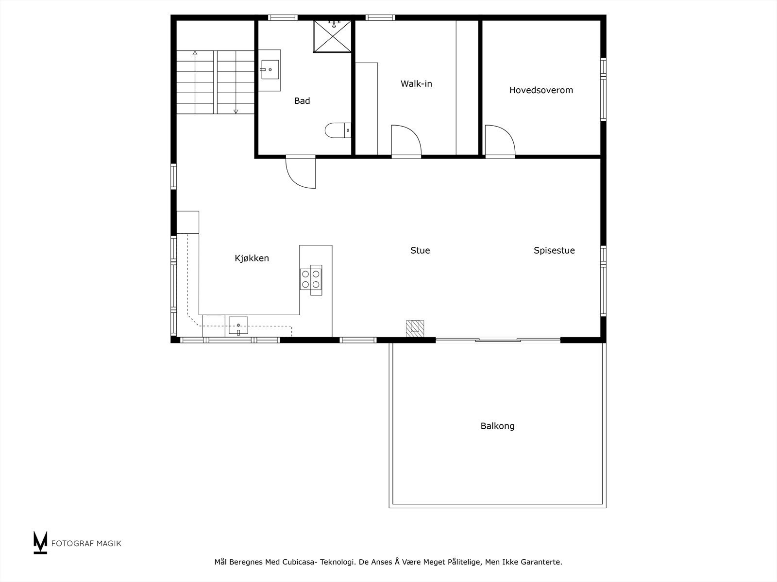
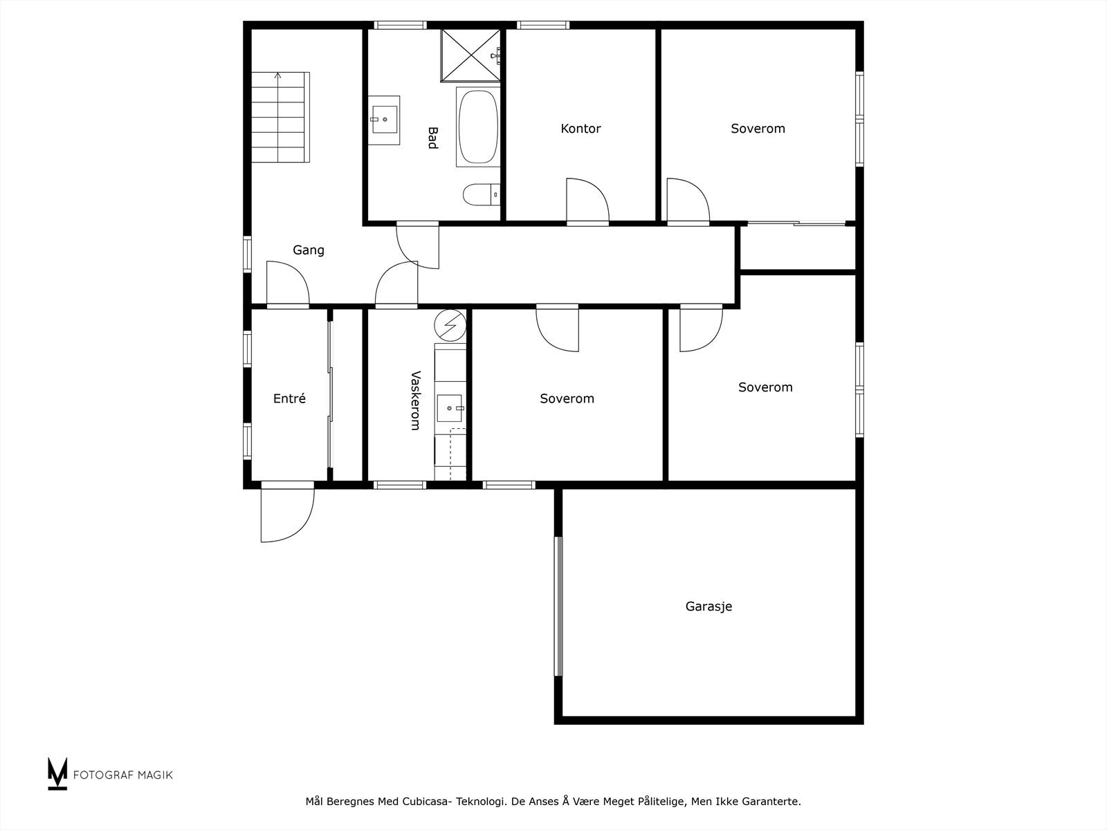
Boligen byr på hele seks soverom, to stilrene baderom og flere innbydende oppholdsrom inkludert en lys stue med peisovn, moderne kjøkken i åpen løsning, stor loftsstue og både takterrasse og balkong for lune utestunder. Planløsningen er gjennomtenkt med gode soner for både familieliv og privatliv, og gir fleksibilitet til en hver livssituasjon.
Dette er et hjem som kombinerer komfort, plass og beliggenhet et perfekt valg for den som ønsker det beste av både byliv, natur og sjø i hverdagen.
Boligen byr på hele seks soverom, to stilrene baderom og flere innbydende oppholdsrom inkludert en lys stue med peisovn, moderne kjøkken i åpen løsning, stor loftsstue og både takterrasse og balkong for lune utestunder. Planløsningen er gjennomtenkt med gode soner for både familieliv og privatliv, og gir fleksibilitet til en hver livssituasjon.
Dette er et hjem som kombinerer komfort, plass og beliggenhet et perfekt valg for den som ønsker det beste av både byliv, natur og sjø i hverdagen.
NB: Knappen for å vise hele beskrivelsen har kun en visuell effekt.
NB: Knappen for å vise hele beskrivelsen har kun en visuell effekt.
Salgsoppgaven beskriver vesentlig og lovpålagt informasjon om eiendommen
Se komplett salgsoppgaveNyttige lenker
Nærområdet
Nordvik Tønsberg
Annonseinformasjon
| FINN-kode | 425628140 |
|---|---|
| Sist endret | 05. jan. 2026 08:59 |
| Referanse | 25-0167/25 |
Annonsene kan være mangelfulle i forhold til lovpålagt opplysningsplikt. Før bindende avtale inngås oppfordres interessenter til å innhente komplett informasjon fra meglerforetaket, selger eller utleier.

































































