Bildegalleri

EiendomsMegler 1 ved Sigbjørn Shaswar-Vestå har stor glede av å kunne presentere Harevegen 11!
Havstein/Byåsen
Unik enebolig med spektakulær utsikt. Golfbane like ved. Høy takhøyde, standard og vannbåren varme. Gode leieinntekter.
Prisantydning21 000 000 kr
Nøkkelinfo
- Boligtype
- Enebolig
- Eieform
- Eier (Selveier)
- Soverom
- 8
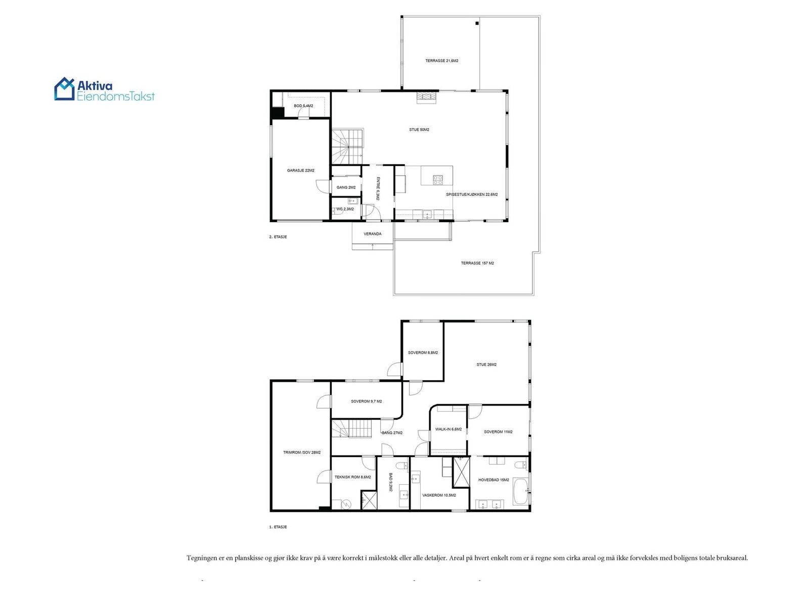
- Internt bruksareal
- 354 m² (BRA-i)
- Bruksareal
- 362 m²
- Eksternt bruksareal
- 8 m² (BRA-e)
- Balkong/Terrasse
- 87 m² (TBA)
- Byggeår
- 2012
- Energimerking
- B - Lysegrønn
- Tomteareal
- 722 m² (eiet)
Fasiliteter
Barnevennlig
Balkong/Terrasse
Garasje/P-plass
Offentlig vann/kloakk
Parkett
Peis/Ildsted
Turterreng
Utsikt
Sentralt
Moderne
Rolig
Lademulighet
Balansert ventilasjon
Visning
tirsdag, 13. januar
17:30 – 18:20
Våre visninger har påmelding. Dette gjør vi for å kunne yte bedre service for våre kunder. Verdifullt for boligkjøper og for oss. Vi anbefaler at salgsoppgaven lastes ned digitalt før visning, og ring oss gjerne på forhånd for spørsmål om boligen. Passer ikke angitt tidspunkt, ta kontakt så finner vi en løsning. Skulle det mot formodning ikke være påmeldte til angitt visningstidspunkt vil ikke visning bli gjennomført.
Om boligen
Velkommen til Harevegen 11, presentert av EiendomsMegler 1 ved Sigbjørn Shaswar-Vestå!
En eksklusiv enebolig med spektakulær utsikt mot byen - og golfbane rett ved!
På attraktive Havstein ligger denne moderne eneboligen med ekstra takhøyde (2,7 m), vannbåren gulvvarme i alle rom og bergvarme for energieffektiv oppvarming. Boligen har høy teknisk standard, stilrent design og en stor terrasse med glassrekkverk og sol fra morgen til kveld. Med egen utleiedel og dokumenterte leieinntekter på over 23.000 kr/mnd, får du både komfort og økonomisk trygghet.
Fra boligen er det ca. 3,4 km til sentrum, 2 km til St. Olavs og 3 km til NTNU Gløshaugen. Maks. 15 minutter på sykkel.
Området er rolig og familievennlig, med nærhet til skole, butikk, kollektivtransport og Bymarka - og golfbanen ligger rett utenfor hagegjerdet. Dette er en sjelden mulighet!
Velkommen til en hyggelig visning!
En eksklusiv enebolig med spektakulær utsikt mot byen - og golfbane rett ved!
På attraktive Havstein ligger denne moderne eneboligen med ekstra takhøyde (2,7 m), vannbåren gulvvarme i alle rom og bergvarme for energieffektiv oppvarming. Boligen har høy teknisk standard, stilrent design og en stor terrasse med glassrekkverk og sol fra morgen til kveld. Med egen utleiedel og dokumenterte leieinntekter på over 23.000 kr/mnd, får du både komfort og økonomisk trygghet.
Fra boligen er det ca. 3,4 km til sentrum, 2 km til St. Olavs og 3 km til NTNU Gløshaugen. Maks. 15 minutter på sykkel.
Området er rolig og familievennlig, med nærhet til skole, butikk, kollektivtransport og Bymarka - og golfbanen ligger rett utenfor hagegjerdet. Dette er en sjelden mulighet!
Velkommen til en hyggelig visning!
NB: Knappen for å vise hele beskrivelsen har kun en visuell effekt.
NB: Knappen for å vise hele beskrivelsen har kun en visuell effekt.
Salgsoppgaven beskriver vesentlig og lovpålagt informasjon om eiendommen
Se komplett salgsoppgaveNyttige lenker
Nærområdet
EiendomsMegler 1 Byåsen
Vi loser deg trygt gjennom hele boligsalget
Annonseinformasjon
| FINN-kode | 425454875 |
|---|---|
| Sist endret | 24. des. 2025 08:08 |
| Referanse | 35250219 |
Annonsene kan være mangelfulle i forhold til lovpålagt opplysningsplikt. Før bindende avtale inngås oppfordres interessenter til å innhente komplett informasjon fra meglerforetaket, selger eller utleier.



























































































