Bildegalleri

Nordvik avd. Frogner har gleden av å presentere Maridalsveien 17!
Solgt
Vulkan
Svært attraktiv 3-r selveier med flott beliggenhet! Solrik, vestvendt takparsell på 38m². Balkong. Heis. Garasjeplass*
Prisantydning9 450 000 kr
Nøkkelinfo
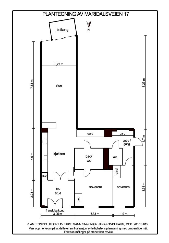
- Boligtype
- Leilighet
- Eieform
- Selveier
- Soverom
- 2
- Internt bruksareal
- 87 m² (BRA-i)
- Bruksareal
- 93 m²
- Eksternt bruksareal
- 6 m² (BRA-e)
- Balkong/Terrasse
- 42 m² (TBA)
- Etasje
- 4
- Byggeår
- 2012
- Energimerking
- Rom
- 4
- Tomteareal
- 4 132 m² (eiet)
Fasiliteter
Takterrasse
Balkong/Terrasse
Barnevennlig
Bredbåndstilknytning
Garasje/P-plass
Heis
Kjæledyr tillatt
Offentlig vann/kloakk
Parkett
Rolig
Sentralt
Utsikt
Vaktmester-/vektertjeneste
Turterreng
Balansert ventilasjon
Om boligen
Nordvik avd. Frogner har gleden å presentere Maridalsveien 17 - En svært attraktiv og gjennomgående 3-roms selveier med populær beliggenhet på Vulkan. Solrik, privat hageparsell på hele 38 kvm med fantastisk utsikt. I tillegg har man balkong med utgang fra leilighetens stue. Moderne bygg fra 2012 med heis, vannbåren varme og balansert ventilasjon
- Heis
- *Mulighet for kjøp av garasjeplass i underetasje
- Privat, vestvendt takterrasse på 38 m² med heisadkomst, kveldssol og rikelig plass til både loungesett og grill
- Balkong med utgang fra stue
- 2 soverom med mulighet for 3 soverom
- Velutstyrt HTH-kjøkken
- Pent, flislagt bad og separat toalettrom
- a-konto varmtvann og oppvarming inkl. i felleskostnader
- Bod i kjeller på ca. 6 kvm
NB: Knappen for å vise hele beskrivelsen har kun en visuell effekt.
NB: Knappen for å vise hele beskrivelsen har kun en visuell effekt.
Salgsoppgaven beskriver vesentlig og lovpålagt informasjon om eiendommen
Se komplett salgsoppgaveNyttige lenker
Nærområdet
Nordvik Frogner
Annonseinformasjon
| FINN-kode | 425452586 |
|---|---|
| Sist endret | 11. mai 2026 11:45 |
| Referanse | 14-0554/25 |
Annonsene kan være mangelfulle i forhold til lovpålagt opplysningsplikt. Før bindende avtale inngås oppfordres interessenter til å innhente komplett informasjon fra meglerforetaket, selger eller utleier.








































