Bildegalleri

Velkommen til Gustav Vigelands vei 48, en usjenert 5-roms toppleilighet over 2 plan i populære Casinetto borettslag på Skøyen.
Solgt
SKØYEN/CASINETTO
Usjenert og romslig 5-roms toppleil. m/balkong, utsikt og garasje. Barnevennlig, rolig, rett v/Frognerparken. Oppussing
Prisantydning11 000 000 kr
Nøkkelinfo
- Boligtype
- Leilighet
- Eieform
- Andel
- Soverom
- 4
- Internt bruksareal
- 112 m² (BRA-i)
- Bruksareal
- 118 m²
- Eksternt bruksareal
- 6 m² (BRA-e)
- Balkong/Terrasse
- 9 m² (TBA)
- Etasje
- 4
- Byggeår
- 1983
- Energimerking
- D - Lysegrønn
- Rom
- 5
- Tomteareal
- 9 479 m² (eiet)
Fasiliteter
Barnevennlig
Balkong/Terrasse
Garasje/P-plass
Offentlig vann/kloakk
Parkett
Turterreng
Utsikt
Vaktmester-/vektertjeneste
Fellesvaskeri
Sentralt
Bredbåndstilknytning
Rolig
Om boligen
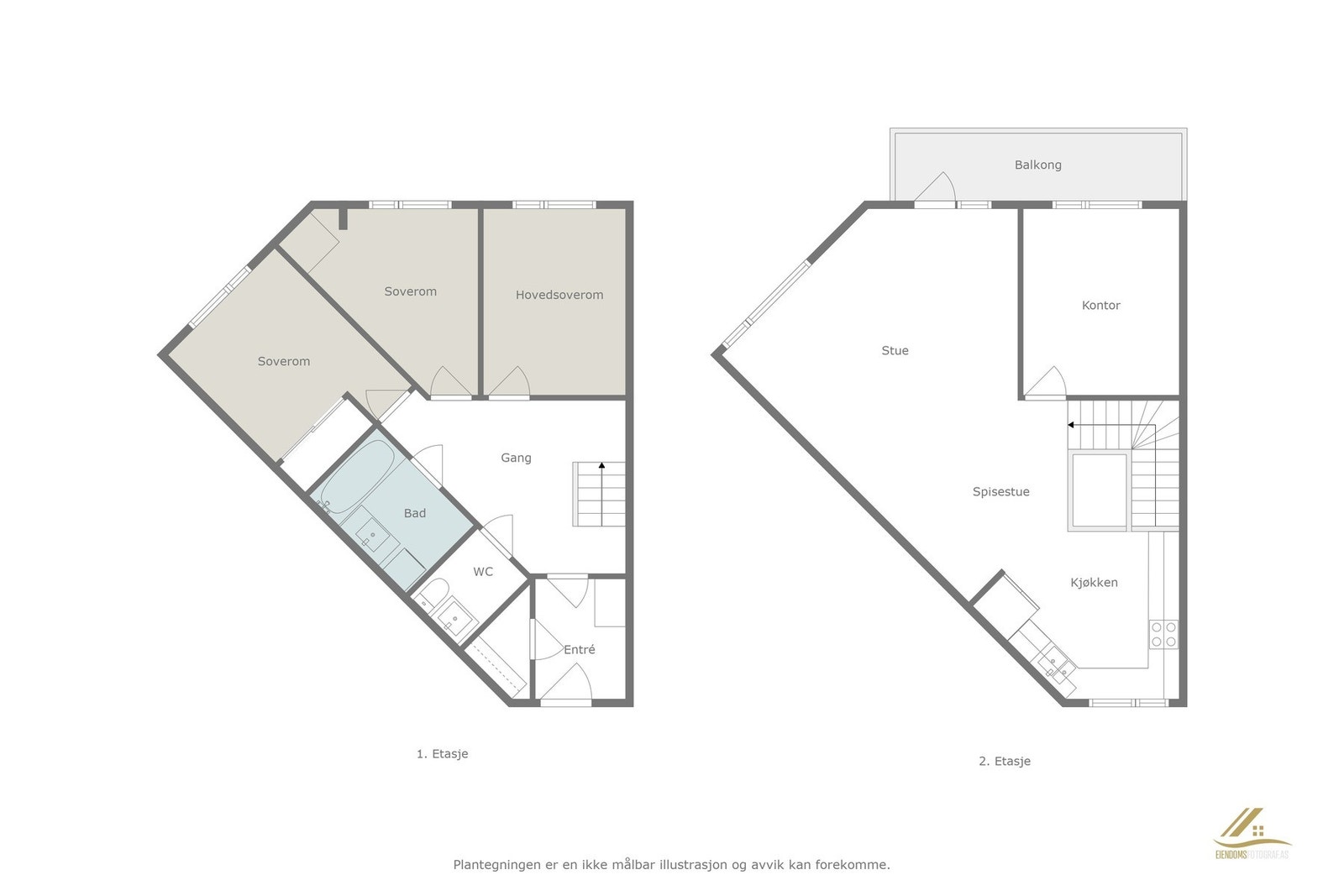
Attraktiv og sjelden 5-roms toppleilighet over 2 plan i populære Casinetto borettslag på Skøyen.
Leiligheten har en fin og usjenert beliggenhet i byggets 4. og 5. etasje og inneholder blant annet 4 soverom, romslig gang, bad, separat toalett, kjøkken, stor spisestue og stue. Fra stuen er det utgang til balkong med hyggelig utsikt til grøntområder.
Bad og kjøkken er av eldre standard, så oppussing/modernisering bør påregnes. Nyere gulv i stuen.
Leiligheten har en god intern beliggenhet på øvre tun med lekeplass, epletrær, morelltrær og grøntområder rett utenfor. Dette er et svært rolig og barnevennlig område, med kort og bilfri vei til Skøyen skole og flere barnehager. Flotte turmuligheter i umiddelbar nærhet i Den Engelske Park, samt kun en kort gåtur til idylliske Frognerparken.
Godt med bodplass og garasje medfølger.
Leiligheten har en fin og usjenert beliggenhet i byggets 4. og 5. etasje og inneholder blant annet 4 soverom, romslig gang, bad, separat toalett, kjøkken, stor spisestue og stue. Fra stuen er det utgang til balkong med hyggelig utsikt til grøntområder.
Bad og kjøkken er av eldre standard, så oppussing/modernisering bør påregnes. Nyere gulv i stuen.
Leiligheten har en god intern beliggenhet på øvre tun med lekeplass, epletrær, morelltrær og grøntområder rett utenfor. Dette er et svært rolig og barnevennlig område, med kort og bilfri vei til Skøyen skole og flere barnehager. Flotte turmuligheter i umiddelbar nærhet i Den Engelske Park, samt kun en kort gåtur til idylliske Frognerparken.
Godt med bodplass og garasje medfølger.
NB: Knappen for å vise hele beskrivelsen har kun en visuell effekt.
NB: Knappen for å vise hele beskrivelsen har kun en visuell effekt.
Salgsoppgaven beskriver vesentlig og lovpålagt informasjon om eiendommen
Se komplett salgsoppgaveNyttige lenker
Nærområdet
EIE eiendomsmegling Vinderen
Annonseinformasjon
| FINN-kode | 425385733 |
|---|---|
| Sist endret | 20. sep. 2025 12:14 |
| Referanse | 31250135 |
Annonsene kan være mangelfulle i forhold til lovpålagt opplysningsplikt. Før bindende avtale inngås oppfordres interessenter til å innhente komplett informasjon fra meglerforetaket, selger eller utleier.









































