Bildegalleri

EiendomsMegler 1 ved Markus Tangvik har gleden av å presentere en stilsikker 2-roms leilighet i Innherredsveien 22.
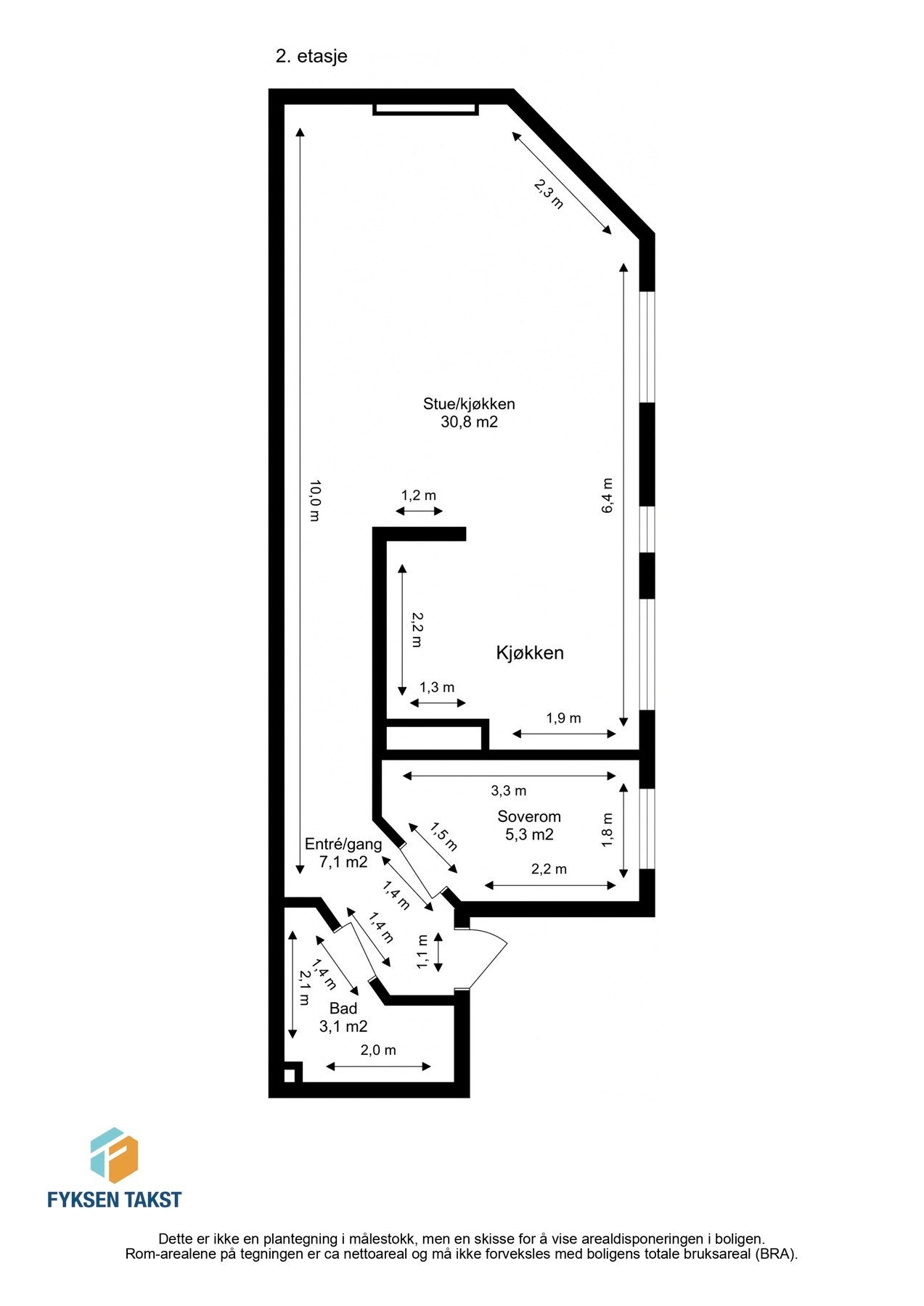
LEKKER 2-ROMS LEILIGHET I 2.ETG I ÆRVERDIG BYGÅRD. God takhøyde. Oppgradert i 2021. Lave felleskost. Nært NTNU.
Nøkkelinfo
- Boligtype
- Leilighet
- Eieform
- Eier (Selveier)
- Soverom
- 1
- Internt bruksareal
- 49 m² (BRA-i)
- Bruksareal
- 54 m²
- Eksternt bruksareal
- 5 m² (BRA-e)
- Etasje
- 2
- Byggeår
- 1905
- Energimerking
- G - Oransje
- Rom
- 2
- Tomteareal
- 405 m² (eiet)
Fasiliteter
Om boligen
Visningstidspunkt må avtales direkte med megler.
Kvaliteter:
- Oppgradert 2-roms leilighet i 2.etg i tidsriktige og fine materialvalg.
- Delikat stue med god takhøyde og store vindusflater.
- Stilrent kjøkken med god skap- og benkeplass.
- Lekkert baderom som ble oppusset i 2021.
- Lave felleskostnader pr. mnd.
- Vedfyring.
- Bod i kjeller og på loft.
- Nærhet til NTNU.
Velkommen på visning!
Salgsoppgaven beskriver vesentlig og lovpålagt informasjon om eiendommen
Se komplett salgsoppgaveNærområdet
EiendomsMegler 1 Trondheim sentrum, Kongens gate
Prisstatistikk
Innherredsveien 22 A
på annonsen
prisantydning per kvadratmeter
Prisfordeling
Pris per m² ligger 1 980 kr under snittet for leiligheter i Trondheim Øst.
Grafen viser antall leiligheter solgt i Trondheim Øst siste året fordelt på pris per m² - totalt 2 541 leiligheter
Antall boliger
Kvadratmeterpris tilsvarer prisantydning pluss fellesgjeld per kvadratmeter (p-rom eller BRA-i). Prisene i grafen er avrundet til nærmeste 1000 kr.
Annonseinformasjon
| FINN-kode | 425376423 |
|---|---|
| Sist endret | 14. nov. 2025 20:14 |
| Referanse | 32250305 |
Annonsene kan være mangelfulle i forhold til lovpålagt opplysningsplikt. Før bindende avtale inngås oppfordres interessenter til å innhente komplett informasjon fra meglerforetaket, selger eller utleier.

























