Bildegalleri

Velkommen til Hvetestien 22!
Solgt
Kurland
Familievennlig enderekkehus | Stilrent kjøkken fra 2024 | Barnevennlig ved marka | Terrasse og hage
Prisantydning5 690 000 kr
Nøkkelinfo
- Boligtype
- Rekkehus
- Eieform
- Andel
- Soverom
- 4
- Internt bruksareal
- 151 m² (BRA-i)
- Bruksareal
- 156 m²
- Eksternt bruksareal
- 5 m² (BRA-e)
- Balkong/Terrasse
- 33 m² (TBA)
- Etasje
- 3
- Byggeår
- 1976
- Energimerking
- E - Oransje
- Rom
- 4
- Tomteareal
- 25 351 m² (eiet)
Fasiliteter
Balkong/Terrasse
Barnevennlig
Garasje/P-plass
Hage
Kjæledyr tillatt
Kabel-TV
Peis/Ildsted
Rolig
Sentralt
Turterreng
Om boligen
Velkommen til Hvetestien 22!
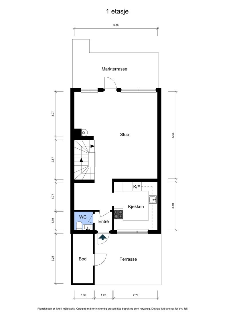
Innbydende enderekkehus over tre plan på populære Kurland. Boligen byr på fire soverom samlet i andre etasje, en romslig stue med peis og et moderne kjøkken fra 2024 med utgang til stor markterrasse og hage. Ved inngangspartiet finner du en hyggelig terrasse og en praktisk utvendig bod. Underetasjen rommer et stilig kinorom, vaskerom og ekstra lagringsplass. Her bor du barnevennlig og sentralt, med kort vei til skole, barnehage, dagligvare og Østmarka. Parkering i egen garasjeplass i felles rekke.
Kort fortalt:
- Enderekkehus over tre plan
- Kjøkken fra 2024
- Stue med peis
- Fire soverom i 2. etasje
- Kinorom i underetasjen
- Stor terrasse og hage
- Utvendig bod + ekstra lagring
- Garasjeplass i felles rekke
- Barnevennlig beliggenhet
Velkommen til visning!
Innbydende enderekkehus over tre plan på populære Kurland. Boligen byr på fire soverom samlet i andre etasje, en romslig stue med peis og et moderne kjøkken fra 2024 med utgang til stor markterrasse og hage. Ved inngangspartiet finner du en hyggelig terrasse og en praktisk utvendig bod. Underetasjen rommer et stilig kinorom, vaskerom og ekstra lagringsplass. Her bor du barnevennlig og sentralt, med kort vei til skole, barnehage, dagligvare og Østmarka. Parkering i egen garasjeplass i felles rekke.
Kort fortalt:
- Enderekkehus over tre plan
- Kjøkken fra 2024
- Stue med peis
- Fire soverom i 2. etasje
- Kinorom i underetasjen
- Stor terrasse og hage
- Utvendig bod + ekstra lagring
- Garasjeplass i felles rekke
- Barnevennlig beliggenhet
Velkommen til visning!
NB: Knappen for å vise hele beskrivelsen har kun en visuell effekt.
NB: Knappen for å vise hele beskrivelsen har kun en visuell effekt.
Salgsoppgaven beskriver vesentlig og lovpålagt informasjon om eiendommen
Se komplett salgsoppgaveNyttige lenker
Nærområdet
EiendomsMegler 1 Lørenskog
Vi loser deg trygt gjennom hele boligsalget
Prisstatistikk
Hvetestien 22
3 218 klikk
på annonsen
41 804 kr
prisantydning per kvadratmeter
Prisfordeling
Pris per m² ligger 11 196 kr under snittet for rekkehus i Lørenskog.
Grafen viser antall rekkehus solgt i Lørenskog siste året fordelt på pris per m² - totalt 105 rekkehus
Antall boliger
Kvadratmeterpris tilsvarer prisantydning pluss fellesgjeld per kvadratmeter (p-rom eller BRA-i). Prisene i grafen er avrundet til nærmeste 1000 kr.
Annonseinformasjon
| FINN-kode | 425317061 |
|---|---|
| Sist endret | 15. sep. 2025 11:59 |
| Referanse | 3373250165 |
Annonsene kan være mangelfulle i forhold til lovpålagt opplysningsplikt. Før bindende avtale inngås oppfordres interessenter til å innhente komplett informasjon fra meglerforetaket, selger eller utleier.

















































