Bildegalleri

Langgårdslia 9 presenteres av Atle Horvei i Krogsveen.
Langgårdslia/Slevik
Lekker enebolig med fantastisk utsikt til landskapet og vakre solnedganger. Utpreget barne- og familievennlig nærmiljø.
Prisantydning8 490 000 kr
Nøkkelinfo
- Boligtype
- Enebolig
- Eieform
- Eier (Selveier)
- Soverom
- 3
- Internt bruksareal
- 147 m² (BRA-i)
- Bruksareal
- 154 m²
- Eksternt bruksareal
- 7 m² (BRA-e)
- Byggeår
- 2022
- Energimerking
- B - Oransje
- Rom
- 5
- Tomteareal
- 774 m² (eiet)
Fasiliteter
Balkong/Terrasse
Barnevennlig
Bredbåndstilknytning
Garasje/P-plass
Hage
Ingen gjenboere
Peis/Ildsted
Rolig
Utsikt
Turterreng
Lademulighet
Balansert ventilasjon
Om boligen
Moderne og lekker enebolig fra 2022 i høyden på Langgårdslia, Slevik
- Fortsatt omfattet av nybygg-garanti på opprinnelig 5 år fra ferdigstillelse
- Fantastisk utsikt og vakre solnedganger det er lett å forelske seg i - sommer som vinter
- Omfangsrike utearealer med gode solforhold dagen gjennom
- Oppført med moderne standard, i tråd med siste byggtekniske forskrift
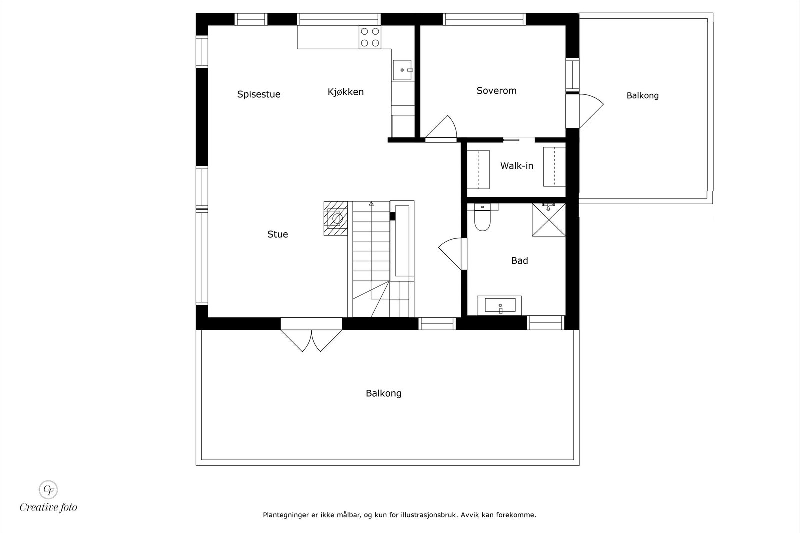
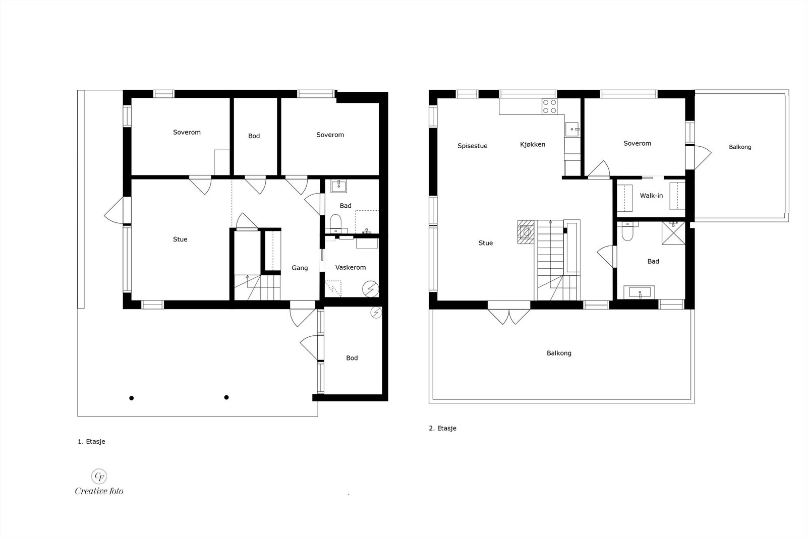
- Familieorientert romløsning med tre store soverom og stue i begge etasjer
- Stilfullt og bruksvennlig kjøkken med alle hvitevarer integrert
- To delikate bad + praktisk vaskerom i sokkeletasje
- Stor gårdsplass med flere oppstillingsmuligheter og lader til EL-bil
- Umiddelbar tilgang til skog og mark med mange turmuligheter
- Gangavstand til sjøen, barnehage og skole
NB: Knappen for å vise hele beskrivelsen har kun en visuell effekt.
NB: Knappen for å vise hele beskrivelsen har kun en visuell effekt.
Salgsoppgaven beskriver vesentlig og lovpålagt informasjon om eiendommen
Se komplett salgsoppgaveNyttige lenker
Nærområdet
Krogsveen Fredrikstad og Sarpsborg
Velkommen til en enklere boligreise.
Annonseinformasjon
| FINN-kode | 425308186 |
|---|---|
| Sist endret | 08. okt. 2025 07:12 |
| Referanse | KR67.24238 |
Annonsene kan være mangelfulle i forhold til lovpålagt opplysningsplikt. Før bindende avtale inngås oppfordres interessenter til å innhente komplett informasjon fra meglerforetaket, selger eller utleier.













































