Bildegalleri

Stor takterrasse med mye sol og flott utsyn samt fjordgløtt.
Nordstrand
Stor, nyoppført familiebolig (202 kvm. BRA) - Høyt, fritt og solrikt- Kjeller m/egen inngang - Garasjeplass
Prisantydning14 950 000 kr
Nøkkelinfo
- Boligtype
- Tomannsbolig
- Eieform
- Eier (Selveier)
- Soverom
- 4
- Internt bruksareal
- 202 m² (BRA-i)
- Bruksareal
- 202 m²
- Balkong/Terrasse
- 33 m² (TBA)
- Byggeår
- 2025
- Energimerking
- B - Rød
- Rom
- 6
- Tomteareal
- 1 395 m² (eiet)
Fasiliteter
Takterrasse
Balkong/Terrasse
Barnevennlig
Garasje/P-plass
Hage
Kjæledyr tillatt
Offentlig vann/kloakk
Parkett
Peis/Ildsted
Rolig
Sentralt
Lademulighet
Balansert ventilasjon
Visning
For å delta på visning, ber vi om at du melder deg på. Da sikrer vi at du får nødvendig informasjon og at det er satt av tilstrekkelig med tid. Kontakt megler dersom annet tidspunkt ønskes. Husk å lese salgsoppgaven før visningen, så du stiller forberedt.
Ønsker du kun å bli holdt orientert, kan du fra eiendommens hjemmeside få varsel om solgtpris, eller kontakte megler.
VisningspåmeldingOm boligen
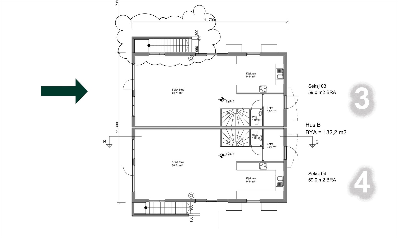
Ny familiebolig (BRA 202) med et moderne arkitektonisk utrykk. Boligen fremstår som påkostet og lekker, med flotte farge- og materialvalg. Lyst og lekkert allrom (kjøkken/stue/spisestue) i boligens 1. etasje med direkte utgang til solrik markterrasse og hage. I boligens 2. etasje finnes det fire svært gode soverom samt lekkert baderom.
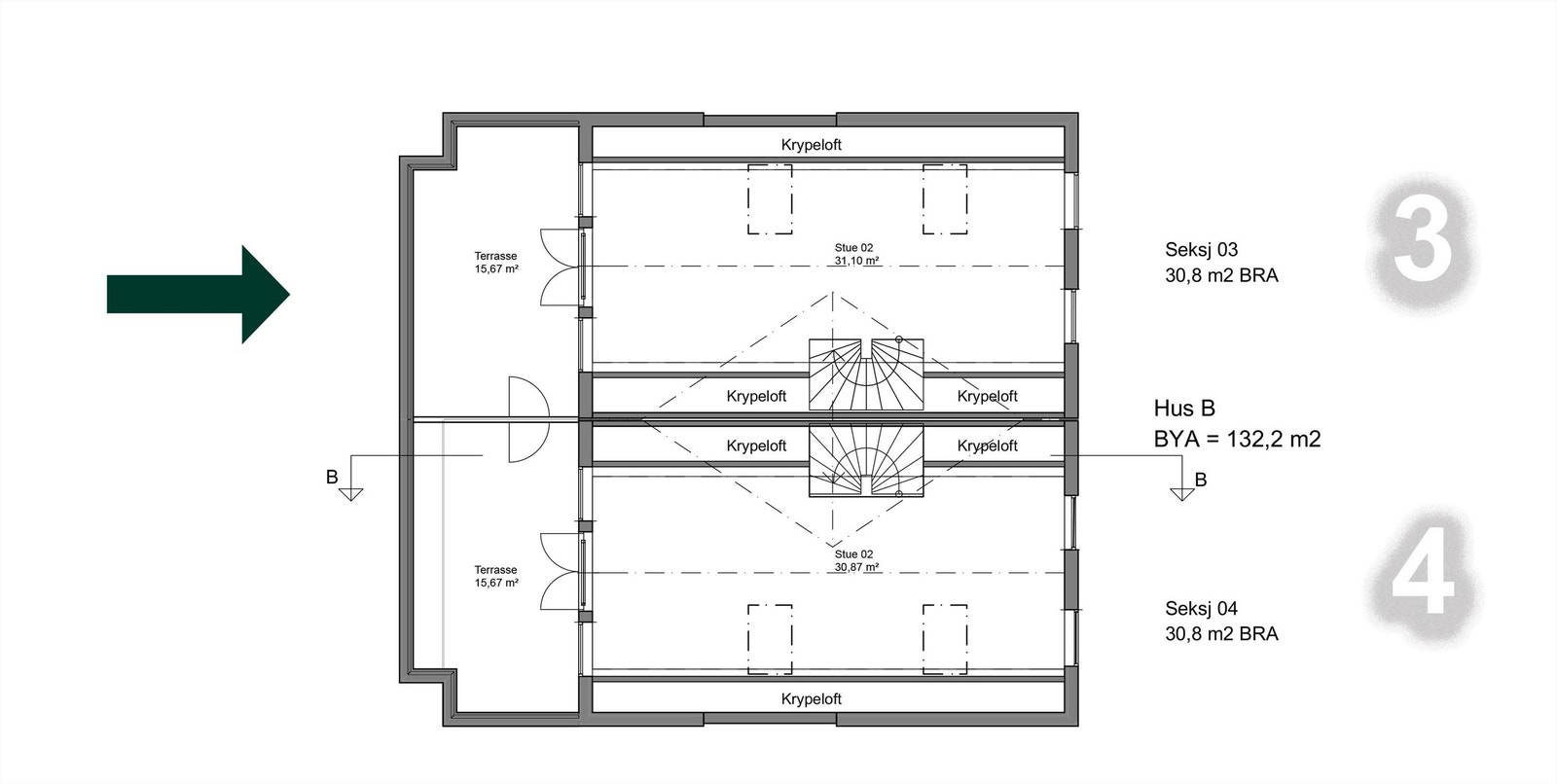
Stor loftstue med utgang til terrasse med mye sol og fjordgløtt. Kjelleretasje med egen inngang bestående av stor kjellerstue, baderom, vaskerom og bod. Garasje med el-bil lader.
100 meter til Nordstrand barne- og ungdomsskole, samt få minutters gange til offentlig kommunikasjon. Barnevennlig plassering godt tilbaketrukket fra veien. Velkommen!
Stor loftstue med utgang til terrasse med mye sol og fjordgløtt. Kjelleretasje med egen inngang bestående av stor kjellerstue, baderom, vaskerom og bod. Garasje med el-bil lader.
100 meter til Nordstrand barne- og ungdomsskole, samt få minutters gange til offentlig kommunikasjon. Barnevennlig plassering godt tilbaketrukket fra veien. Velkommen!
NB: Knappen for å vise hele beskrivelsen har kun en visuell effekt.
NB: Knappen for å vise hele beskrivelsen har kun en visuell effekt.
Salgsoppgaven beskriver vesentlig og lovpålagt informasjon om eiendommen
Se komplett salgsoppgaveNyttige lenker
Nærområdet
Krogsveen Nordstrand
Velkommen til en enklere boligreise.
Annonseinformasjon
| FINN-kode | 425292535 |
|---|---|
| Sist endret | 01. des. 2025 21:29 |
| Referanse | KR44.25209 |
Annonsene kan være mangelfulle i forhold til lovpålagt opplysningsplikt. Før bindende avtale inngås oppfordres interessenter til å innhente komplett informasjon fra meglerforetaket, selger eller utleier.








































































