


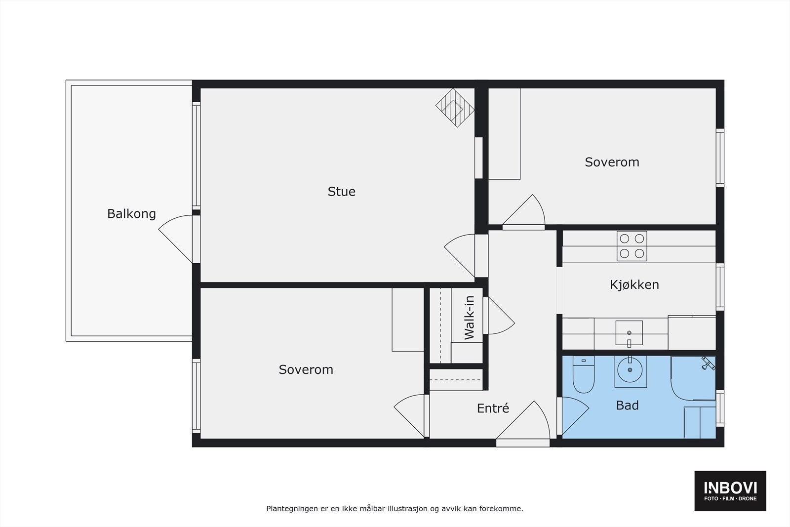
Fra stuen er det utgang til romslig balkong med god plass til utemøblement.
Salgsoppgaven beskriver vesentlig og lovpålagt informasjon om eiendommen
Se komplett salgsoppgaveOlea Crøgers veg 5A
på annonsen
prisantydning per kvadratmeter
Pris per m² ligger 4 738 kr under snittet for leiligheter i Skien.
Grafen viser antall leiligheter solgt i Skien siste året fordelt på pris per m² - totalt 550 leiligheter
Antall boliger
Kvadratmeterpris tilsvarer prisantydning pluss fellesgjeld per kvadratmeter (p-rom eller BRA-i). Prisene i grafen er avrundet til nærmeste 1000 kr.












| FINN-kode | 425140482 |
|---|---|
| Sist endret | 23. jan. 2026 12:24 |
| Referanse | 1410250353 |
Annonsene kan være mangelfulle i forhold til lovpålagt opplysningsplikt. Før bindende avtale inngås oppfordres interessenter til å innhente komplett informasjon fra meglerforetaket, selger eller utleier.