Bildegalleri

Velkommen til Sørbråtveien 74, idyll i Maridalen!
Solgt
Idyll i Maridalen
Svært attraktiv, solrik og innholdsrik enebolig i naturskjønne omgivelser i Nordmarka. Få minutters gange til off. komm
Prisantydning17 000 000 kr
Nøkkelinfo
- Boligtype
- Enebolig
- Eieform
- Eier (Selveier)
- Soverom
- 4
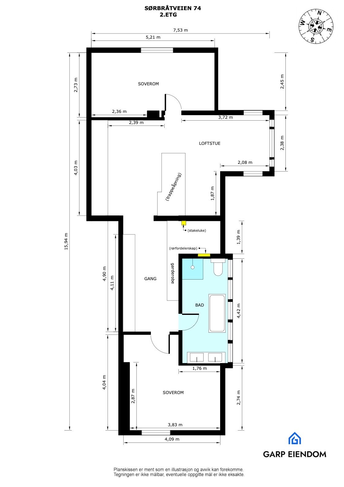
- Internt bruksareal
- 235 m² (BRA-i)
- Bruksareal
- 314 m²
- Eksternt bruksareal
- 79 m² (BRA-e)
- Balkong/Terrasse
- 76 m² (TBA)
- Etasje
- 3
- Byggeår
- 1920
- Rom
- 9
- Tomteareal
- 4 171 m² (eiet)
Fasiliteter
Balkong/Terrasse
Barnevennlig
Bredbåndstilknytning
Garasje/P-plass
Hage
Kjæledyr tillatt
Ingen gjenboere
Kabel-TV
Offentlig vann/kloakk
Parkett
Peis/Ildsted
Rolig
Bademulighet
Fiskemulighet
Turterreng
Lademulighet
Balansert ventilasjon
Om boligen
Flott eiendom med stor og innholdsrik familiebolig, totalt BRA på 314 kvm, med 9 rom, bla. 4 soverom, 2 bad og sep. toalett. Solrikt beliggende, fritt og usjenert med meget gode solforhold i hjertet av Maridalen, med opparbeidet tomt på hele 4175 kvm.
- Innholdsrik og flott bolig, oppgradert i senere år
- Bad fra 2017 og 2020
- 2 vedovner
- Sol på tomten fra den står opp, til den går ned
- Anneks med treningsrom og badstue
- Dobbel garasje m/elbil lader
- Diverse boder
- Fantastisk tomt med bla stor terrasse med overbygg, drivhus, hønsehus og grønnsakshage
- Veldig hyggelig bo- og nærmiljø
- 10 minutters gange til badeplass ved Movatn og skiløyper
- 700 meter til Movatn stasjon, Gjøvikbanen, 22 minutters tur til Oslo S
- 15 minutt kjøring til Ring 3
- Skolebuss til Maridalen
- Innholdsrik og flott bolig, oppgradert i senere år
- Bad fra 2017 og 2020
- 2 vedovner
- Sol på tomten fra den står opp, til den går ned
- Anneks med treningsrom og badstue
- Dobbel garasje m/elbil lader
- Diverse boder
- Fantastisk tomt med bla stor terrasse med overbygg, drivhus, hønsehus og grønnsakshage
- Veldig hyggelig bo- og nærmiljø
- 10 minutters gange til badeplass ved Movatn og skiløyper
- 700 meter til Movatn stasjon, Gjøvikbanen, 22 minutters tur til Oslo S
- 15 minutt kjøring til Ring 3
- Skolebuss til Maridalen
NB: Knappen for å vise hele beskrivelsen har kun en visuell effekt.
NB: Knappen for å vise hele beskrivelsen har kun en visuell effekt.
Salgsoppgaven beskriver vesentlig og lovpålagt informasjon om eiendommen
Se komplett salgsoppgaveNyttige lenker
Nærområdet
Nordvik Majorstuen
Annonseinformasjon
| FINN-kode | 425095322 |
|---|---|
| Sist endret | 04. okt. 2025 14:49 |
| Referanse | 8-0427/25 |
Annonsene kan være mangelfulle i forhold til lovpålagt opplysningsplikt. Før bindende avtale inngås oppfordres interessenter til å innhente komplett informasjon fra meglerforetaket, selger eller utleier.








































































