Bildegalleri

Gjennomgående høy bygningsmessig kvalitet med parkemessige utenomhusområder med bl. natursteinsmurer
Inaktiv
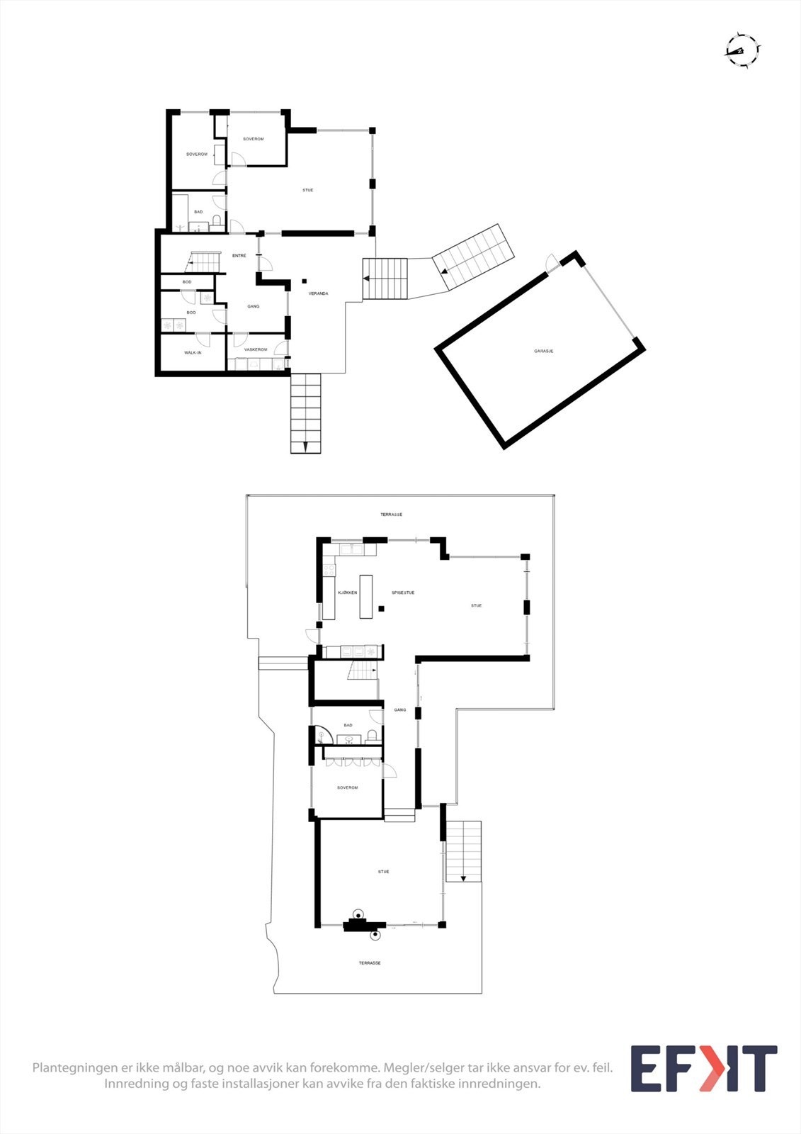
Langenes/Vogsneset - Velholdt, vedlikeholdsvennlig enebolig med storslått havutsikt og fantastisk tomt
Prisantydning9 750 000 kr
Nøkkelinfo
- Boligtype
- Enebolig
- Eieform
- Eier (Selveier)
- Soverom
- 3
- Internt bruksareal
- 205 m² (BRA-i)
- Bruksareal
- 248 m²
- Eksternt bruksareal
- 43 m² (BRA-e)
- Balkong/Terrasse
- 84 m² (TBA)
- Etasje
- 2
- Byggeår
- 2012
- Energimerking
- B - Gul
- Rom
- 5
- Tomteareal
- 1 297 m² (eiet)
Fasiliteter
Aircondition
Balkong/Terrasse
Barnevennlig
Garasje/P-plass
Hage
Kjæledyr tillatt
Parkett
Peis/Ildsted
Rolig
Utsikt
Bademulighet
Fiskemulighet
Turterreng
Balansert ventilasjon
Visning
Ut over annonserte visninger tilbys visning etter kundens ønske. Det er fullt mulig med visning på dagtid hvor det er godt dagslys, eller i forbindelse med en helg. Ta kontrat med Flakk på 415 10 212 for avtale.
VisningspåmeldingOm boligen
Velkommen til en sjelden flott eiendom på Langenes/Vogsneset. Eneboligen ligger høyt og fritt i landlige og rolige omgivelser, samtidig som du har kun ca. 15 minutters kjøring til byen. Eiendommen byr på en imponerende havutsikt mot hovedleia mellom Kristiansand og Mandal og horisonten videre sørover et levende skue av hav, himmel og årstidenes skiftninger.
Boligen er optimalt plassert i terrenget, solrik og luftig, med flere uteplasser som er godt skjermet for vind og innsyn. Tomten er pent og parkmessig opparbeidet med natursteinsmurer, plen, frukttrær og variert beplantning.
Stuen har store skyvedører som åpner mot uteplassene og gir en fin sammenheng mellom inne- og uterom. Gjennomgående god standard med vannbåren varme og vedlikeholdsvennlige materialebruk
Boligen er optimalt plassert i terrenget, solrik og luftig, med flere uteplasser som er godt skjermet for vind og innsyn. Tomten er pent og parkmessig opparbeidet med natursteinsmurer, plen, frukttrær og variert beplantning.
Stuen har store skyvedører som åpner mot uteplassene og gir en fin sammenheng mellom inne- og uterom. Gjennomgående god standard med vannbåren varme og vedlikeholdsvennlige materialebruk
NB: Knappen for å vise hele beskrivelsen har kun en visuell effekt.
NB: Knappen for å vise hele beskrivelsen har kun en visuell effekt.
Salgsoppgaven beskriver vesentlig og lovpålagt informasjon om eiendommen
Se komplett salgsoppgaveNærområdet
SPARESKILLINGSMEGLEREN AS
Vi selger ikke boliger, vi selger hjem.
Annonseinformasjon
| FINN-kode | 425069173 |
|---|---|
| Sist endret | 20. feb. 2026 08:44 |
| Referanse | SM1.25139 |
Annonsene kan være mangelfulle i forhold til lovpålagt opplysningsplikt. Før bindende avtale inngås oppfordres interessenter til å innhente komplett informasjon fra meglerforetaket, selger eller utleier.











































