Bildegalleri

Eiendomsmegler Stein Nordberg presenterer nyere flott funkisbolig på Stoa 18. Her har du hus og hytte i ett. Dronefoto fra vest, med båthavna, Langesundsfjorden, Langøya og hovedgården i bakgrunnen.

Langesund

'Ny', innholdsrik og stilfull funkisbolig med utleiedel og garasje, Stoa - Langesund.

Prisantydning7 900 000 kr
Totalpris
8 098 850 kr
Omkostninger
198 850 kr
Kommunale avg.
29 227 kr per år
Formuesverdi
1 875 702 kr

Nøkkelinfo

Boligtype
Enebolig
Eieform
Eier (Selveier)
Soverom
3
Internt bruksareal
222 m² (BRA-i)
Bruksareal
244 m²
Eksternt bruksareal
22 m² (BRA-e)
Byggeår
2020
Energimerking
C - Mørkegrønn
Tomteareal
555 m² (eiet)

Les mer om bruksareal her

Fasiliteter

Takterrasse
Aircondition
Alarm
Balkong/Terrasse
Barnevennlig
Bredbåndstilknytning
Garasje/P-plass
Hage
Kjæledyr tillatt
Ingen gjenboere
Kabel-TV
Offentlig vann/kloakk
Parkett
Peis/Ildsted
Rolig
Sentralt
Utsikt
Bademulighet
Fiskemulighet
Turterreng
Lademulighet
Balansert ventilasjon

Visning

Ta kontakt for å avtale visning.Visningspåmelding

Om boligen

Lekker og romslig funkisbolig fra 2020 med fantastisk takterrasse, garasje og godkjent hybel, evnt. perfekt som generasjonsbolig. Eiendommen ligger på Stoa, med flott utsikt mot Langesundsfjorden og den vakre skjærgården!

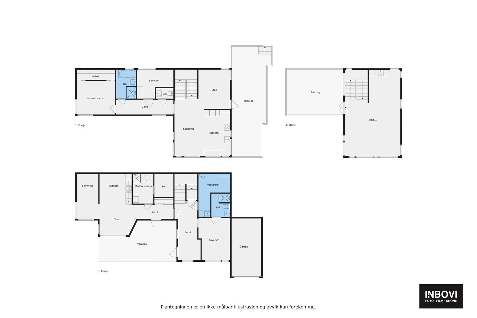
Denne moderne boligen kombinerer moderne utførelse og praktiske løsninger, med gjennomgående bruk av vannbåren varme i alle etasjer. Boligen over 3 plan inneholder blant annet:
1. etg. med hall, soverom, bad, vaskerom og bod. Hybel har egen inngang, og inneholder stue m/sovealkove, kjøkken og bad.
2. etg. med stort kjøkken, stue, toalettrom, bad, 2 soverom og walk-in. Utgang til koselig terrasse.
3. etg. med loftstue og praktisk kjøkkenkrok samt utgang til stor takterrasse med fantastisk utsikt.

Ventilasjon m/varmegjenvinning | lader til el-bil | utvendige screens

Salgsoppgaven beskriver vesentlig og lovpålagt informasjon om eiendommen

Se komplett salgsoppgave

Nærområdet

Annonseinformasjon

FINN-kode424929976
Sist endret10. des. 2025 12:17
Referanse1410250357

Rapporter annonse

Annonsene kan være mangelfulle i forhold til lovpålagt opplysningsplikt. Før bindende avtale inngås oppfordres interessenter til å innhente komplett informasjon fra meglerforetaket, selger eller utleier.