Bildegalleri

Foto: Bjørnar Fjeldberg
Moderne livsstil ved Mjøsa - romslig 3-roms med parkering
Nøkkelinfo
- Boligtype
- Leilighet
- Eieform
- Andel
- Soverom
- 2
- Internt bruksareal
- 70 m² (BRA-i)
- Bruksareal
- 75 m²
- Eksternt bruksareal
- 5 m² (BRA-e)
- Balkong/Terrasse
- 21 m² (TBA)
- Etasje
- 1
- Byggeår
- 2024
- Energimerking
- A - Mørkegrønn
- Rom
- 3
- Tomteareal
- 18 244 m² (eiet)
Fasiliteter
Visning
Om boligen
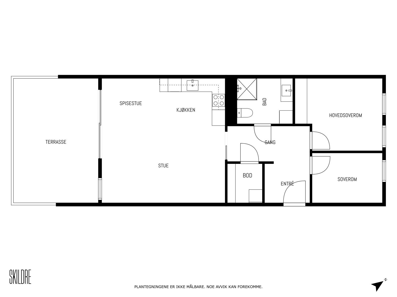
Moderne 3-roms i Kvitbekkgata 60, 1. etasje. Leiligheten har glatte veggflater, 1-stavs parkett og flislagt bad. Åpen stue/kjøkkenløsning med HTH-innredning og integrerte hvitevarer. To soverom, garderobe med nisje, praktisk bod og stor terrasse på 21 kvm. Parkeringsplass og sportsbod i kjeller medfølger. Beliggende på Martodden med flotte turområder langs Mjøsa, gode sykkelstier, dagligvare i nærheten og kort vei til Hamar sentrum. Et rolig og attraktivt område for deg som ønsker en lettstelt bolig med naturen rett utenfor.
Nøkkelinformasjon:
- Ny 2024, moderne standard
- 21 kvm markterrasse
- HTH-kjøkken med integrerte hvitevarer
- To soverom og innvendig bod
- Parkering og sportsbod i kjeller
- Ca. 4 km til Hamar sentrum
Salgsoppgaven beskriver vesentlig og lovpålagt informasjon om eiendommen
Se komplett salgsoppgaveNyttige lenker
Nærområdet
OBOS eiendomsmeglere - Hamar
Annonseinformasjon
| FINN-kode | 424929882 |
|---|---|
| Sist endret | 11. feb. 2026 03:17 |
| Referanse | 715250108 |
Annonsene kan være mangelfulle i forhold til lovpålagt opplysningsplikt. Før bindende avtale inngås oppfordres interessenter til å innhente komplett informasjon fra meglerforetaket, selger eller utleier.

































