Bildegalleri

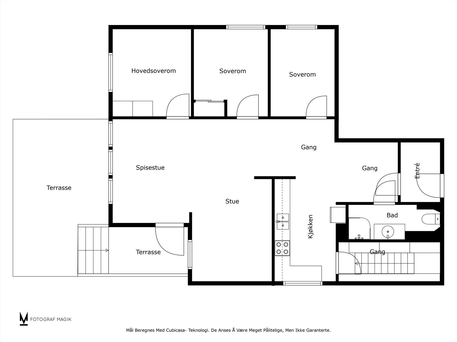
Nordvik har gleden av å presentere Kolbergveien 4a og denne romslige eierleiligheten, innredet m/bl.a. 3 soverom, stor stue, kjøkken og bad/wc/vaskerom. Foto: Fotograf Magik.
Sentralt på øvre Teie!
Romslig eierleilighet m/bl.a. 3 soverom, stor stue og terrasse på 27 kvm | sentral, rolig og barnevennlig beliggenhet
Prisantydning3 550 000 kr
Nøkkelinfo
- Boligtype
- Leilighet
- Eieform
- Eier (Selveier)
- Soverom
- 3
- Internt bruksareal
- 91 m² (BRA-i)
- Bruksareal
- 98 m²
- Eksternt bruksareal
- 7 m² (BRA-e)
- Balkong/Terrasse
- 27 m² (TBA)
- Etasje
- 1
- Byggeår
- 1938
- Energimerking
- F - Oransje
- Rom
- 4
- Tomteareal
- 1 137 m² (eiet)
Fasiliteter
Balkong/Terrasse
Barnevennlig
Bredbåndstilknytning
Garasje/P-plass
Golfbane
Hage
Offentlig vann/kloakk
Rolig
Sentralt
Bademulighet
Fiskemulighet
Turterreng
Visning
søndag, 15. februar
13:30 – 14:15
Alle våre visninger har påmelding. På denne måten sikrer vi at megler har god oversikt og tid til å imøtekomme alle interessenter. Meld deg på visning ved å trykke på lenken visningspåmelding.
VisningspåmeldingOm boligen
Nordvik har gleden av å presentere Kolbergveien 4a og denne romslige eierleiligheten, innredet m/bl.a. 3 soverom, stor stue, kjøkken og bad/wc/vaskerom.
Boligen ligger attraktivt til i et barnevennlig og rolig område, på en flott tomt m/særdeles gunstig beliggenhet nær skole, idrettsanlegg, skog og Teie Torg.
Selve leiligheten ligger i 1. etasje av flermannsbolig m/egen inngang og er innredet m/bl.a. stue m/plass til spisebord, 3 soverom, kjøkken, samt fliselagt bad/wc/vaskerom. Lagringsbod på 7 kvm. i kjeller. Utenfor stuen er det anlagt en romslig terrasse på 27 kvm. m/tilgang til felleshage (denne seksjonen disponerer deler av hagen, men det foreligger ingenting skriftlighet). Boligen ble innvendig oppusset 2018 og gir et lyst og godt inntrykk.
Parkering på egen parkeringsplass.
Boligen ligger attraktivt til i et barnevennlig og rolig område, på en flott tomt m/særdeles gunstig beliggenhet nær skole, idrettsanlegg, skog og Teie Torg.
Selve leiligheten ligger i 1. etasje av flermannsbolig m/egen inngang og er innredet m/bl.a. stue m/plass til spisebord, 3 soverom, kjøkken, samt fliselagt bad/wc/vaskerom. Lagringsbod på 7 kvm. i kjeller. Utenfor stuen er det anlagt en romslig terrasse på 27 kvm. m/tilgang til felleshage (denne seksjonen disponerer deler av hagen, men det foreligger ingenting skriftlighet). Boligen ble innvendig oppusset 2018 og gir et lyst og godt inntrykk.
Parkering på egen parkeringsplass.
NB: Knappen for å vise hele beskrivelsen har kun en visuell effekt.
NB: Knappen for å vise hele beskrivelsen har kun en visuell effekt.
Salgsoppgaven beskriver vesentlig og lovpålagt informasjon om eiendommen
Se komplett salgsoppgaveNyttige lenker
Nærområdet
Nordvik Tønsberg
Annonseinformasjon
| FINN-kode | 424785297 |
|---|---|
| Sist endret | 09. feb. 2026 19:19 |
| Referanse | 25-0163/25 |
Annonsene kan være mangelfulle i forhold til lovpålagt opplysningsplikt. Før bindende avtale inngås oppfordres interessenter til å innhente komplett informasjon fra meglerforetaket, selger eller utleier.













































