Bildegalleri

Åse Malene Holm Løvli v/Privatmegleren Hønefoss har gleden av å presentere Tangenveien 1!
Lys og velholdt 3-roms leilighet med terrasse og hage | Sentral beliggenhet med kort gangavstand til butikk
Prisantydning1 890 000 kr
Nøkkelinfo
- Boligtype
- Leilighet
- Eieform
- Eier (Selveier)
- Soverom
- 2
- Internt bruksareal
- 78 m² (BRA-i)
- Bruksareal
- 86 m²
- Eksternt bruksareal
- 8 m² (BRA-e)
- Balkong/Terrasse
- 18 m² (TBA)
- Byggeår
- 1992
- Energimerking
- E - Rød
- Rom
- 3
- Tomteareal
- 562 m² (eiet)
Fasiliteter
Barnevennlig
Balkong/Terrasse
Kabel-TV
Offentlig vann/kloakk
Peis/Ildsted
Turterreng
Sentralt
Visning
tirsdag, 06. januar
17:00 – 17:30
Velkommen til visning!
Alle våre visninger har påmelding. På denne måten sikrer vi at megler har god oversikt og tid til å imøtekomme alle interessenter på beste måte. Dette er veldig verdifullt for boligkjøpere og for oss. Det er enkelt å melde seg på, og du kan like enkelt melde deg av. Kontakt også gjerne megler i forkant av visning dersom du har spørsmål.
Om boligen
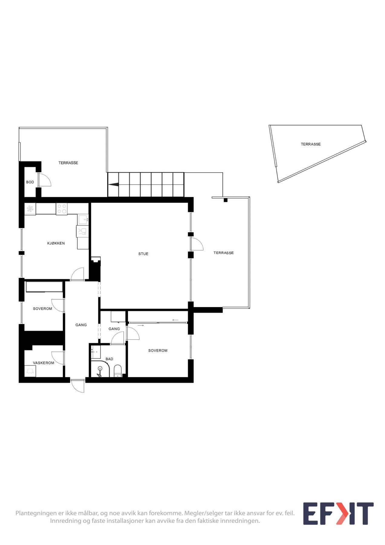
Velkommen til Tangenveien 1 - en lys og innbydende 3-roms som er godt vedlikeholdt og lett å like.
Planløsningen er gjennomtenkt med en romslig stue hvor store vindusflater slipper inn godt med naturlig lys, og med direkte utgang til terrasse, ekstra platting og liten hage som forlenger oppholdsrommene utendørs. Kjøkkenet har en lys og klassisk innredning med rikelig skap- og benkeplass, samt plass til spisebord. Videre finner du to soverom i ulike størrelser som gir fleksible bruksområder - hovedsoverom, barnerom, kontor eller gjesterom. Badet holder en fin standard, og leiligheten har også eget vaskerom/teknisk rom. Oppgraderte overflater fra 2023 gir et moderne preg og gjør boligen innflyttingsklar.
Eiendommen ligger sentralt til på Rolighetsmoen - et populært og veletablert boligområde kjent for sitt gode bomiljø og trygge omgivelser. Her bor du landlig, men samtidig svært sentralt med gangavstand til dagligvarebutikk, busstopp, barnehager og skoler.
Planløsningen er gjennomtenkt med en romslig stue hvor store vindusflater slipper inn godt med naturlig lys, og med direkte utgang til terrasse, ekstra platting og liten hage som forlenger oppholdsrommene utendørs. Kjøkkenet har en lys og klassisk innredning med rikelig skap- og benkeplass, samt plass til spisebord. Videre finner du to soverom i ulike størrelser som gir fleksible bruksområder - hovedsoverom, barnerom, kontor eller gjesterom. Badet holder en fin standard, og leiligheten har også eget vaskerom/teknisk rom. Oppgraderte overflater fra 2023 gir et moderne preg og gjør boligen innflyttingsklar.
Eiendommen ligger sentralt til på Rolighetsmoen - et populært og veletablert boligområde kjent for sitt gode bomiljø og trygge omgivelser. Her bor du landlig, men samtidig svært sentralt med gangavstand til dagligvarebutikk, busstopp, barnehager og skoler.
NB: Knappen for å vise hele beskrivelsen har kun en visuell effekt.
NB: Knappen for å vise hele beskrivelsen har kun en visuell effekt.
Salgsoppgaven beskriver vesentlig og lovpålagt informasjon om eiendommen
Se komplett salgsoppgaveNyttige lenker
Nærområdet
Privatmegleren Hønefoss
Kun det beste på dine vegne
Annonseinformasjon
| FINN-kode | 424377601 |
|---|---|
| Sist endret | 28. des. 2025 08:53 |
| Referanse | 14250138 |
Annonsene kan være mangelfulle i forhold til lovpålagt opplysningsplikt. Før bindende avtale inngås oppfordres interessenter til å innhente komplett informasjon fra meglerforetaket, selger eller utleier.
























