Bildegalleri

Velkommen til "Hednetoppen" - Herumveien 12
Ås
Sjelden eiendom med stort potensiale, nær NMBU og Ås sentrum. Enebolig med tilhørende leilighet. Oppussingsbehov.
Prisantydning14 900 000 kr
Nøkkelinfo
- Boligtype
- Enebolig
- Eieform
- Eier (Selveier)
- Soverom
- 6
- Internt bruksareal
- 464 m² (BRA-i)
- Bruksareal
- 493 m²
- Eksternt bruksareal
- 29 m² (BRA-e)
- Balkong/Terrasse
- 41 m² (TBA)
- Byggeår
- 1939
- Energimerking
- D - Lysegrønn
- Tomteareal
- 3 785 m² (eiet)
Fasiliteter
Balkong/Terrasse
Barnevennlig
Bredbåndstilknytning
Garasje/P-plass
Hage
Kjæledyr tillatt
Ingen gjenboere
Offentlig vann/kloakk
Parkett
Peis/Ildsted
Rolig
Sentralt
Utsikt
Utvidelsesmuligheter
Turterreng
Visning
Ta kontakt med megler for avtale om privatvisning.
Ønsker du kun å bli holdt orientert, kan du fra eiendommens hjemmeside få varsel om solgtpris, eller kontakte megler.
VisningspåmeldingOm boligen
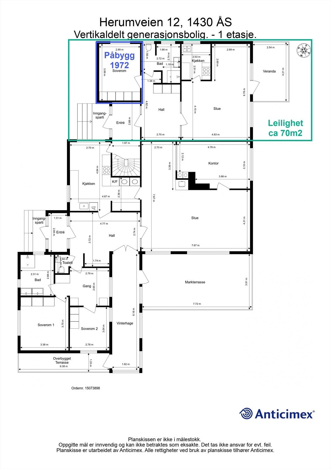
- Stor og ærverdig eiendom med 464 m2 internt bruksareal.
- Boligen ble ombygd og godkjent som generasjonsbolig i 1972, og egner seg til kollektive boformer. Leiligheten har vært utleid siden 1975.
- Eiendommen er skjermet og ligger sentralt til. 5 min å gå til NMBU, 15 min til Ås sentrum. Kort vei til barnehager, skoler for alle trinn, offentlig transport og turområder.
- Tomten er beregnet av kommunen til ca. 3785 m2. Den har en stor og flott hage, med mange epletrær og gode muligheter for dyrking av bær og grønnsaker. Mulighet for fradeling av tomter. Minste tomtestørrelse for enebolig/enebolig med sekundærleilighet er 700 m2, for tomannsbolig 1100 m2.
- Eiendommen har sjel, mye historikk og stort potensiale. Det er etterslep på vedlikehold, og oppussing må påregnes.
- Boligen ble ombygd og godkjent som generasjonsbolig i 1972, og egner seg til kollektive boformer. Leiligheten har vært utleid siden 1975.
- Eiendommen er skjermet og ligger sentralt til. 5 min å gå til NMBU, 15 min til Ås sentrum. Kort vei til barnehager, skoler for alle trinn, offentlig transport og turområder.
- Tomten er beregnet av kommunen til ca. 3785 m2. Den har en stor og flott hage, med mange epletrær og gode muligheter for dyrking av bær og grønnsaker. Mulighet for fradeling av tomter. Minste tomtestørrelse for enebolig/enebolig med sekundærleilighet er 700 m2, for tomannsbolig 1100 m2.
- Eiendommen har sjel, mye historikk og stort potensiale. Det er etterslep på vedlikehold, og oppussing må påregnes.
NB: Knappen for å vise hele beskrivelsen har kun en visuell effekt.
NB: Knappen for å vise hele beskrivelsen har kun en visuell effekt.
Salgsoppgaven beskriver vesentlig og lovpålagt informasjon om eiendommen
Se komplett salgsoppgaveNyttige lenker
Nærområdet
Krogsveen Ski
Verdien av en god megler.
Annonseinformasjon
| FINN-kode | 424295017 |
|---|---|
| Sist endret | 16. jan. 2026 17:39 |
| Referanse | KR46.25143 |
Annonsene kan være mangelfulle i forhold til lovpålagt opplysningsplikt. Før bindende avtale inngås oppfordres interessenter til å innhente komplett informasjon fra meglerforetaket, selger eller utleier.






























































