Bildegalleri

Her kan vi ønske velkommen til meget pent og oppgradert rekkehus i Prinsens gate 15.
Innbydende selveier enderekkehus! Sentrumnært med gangavstand til det meste * Gode solforhold * Garasje
Prisantydning2 850 000 kr
Nøkkelinfo
- Boligtype
- Rekkehus
- Eieform
- Eier (Selveier)
- Soverom
- 3
- Internt bruksareal
- 96 m² (BRA-i)
- Bruksareal
- 102 m²
- Eksternt bruksareal
- 6 m² (BRA-e)
- Balkong/Terrasse
- 45 m² (TBA)
- Etasje
- 2
- Byggeår
- 1960
- Energimerking
- F - Oransje
- Rom
- 4
- Tomteareal
- 998 m² (eiet)
Fasiliteter
Balkong/Terrasse
Barnevennlig
Bredbåndstilknytning
Garasje/P-plass
Kjæledyr tillatt
Offentlig vann/kloakk
Peis/Ildsted
Rolig
Sentralt
Turterreng
Om boligen
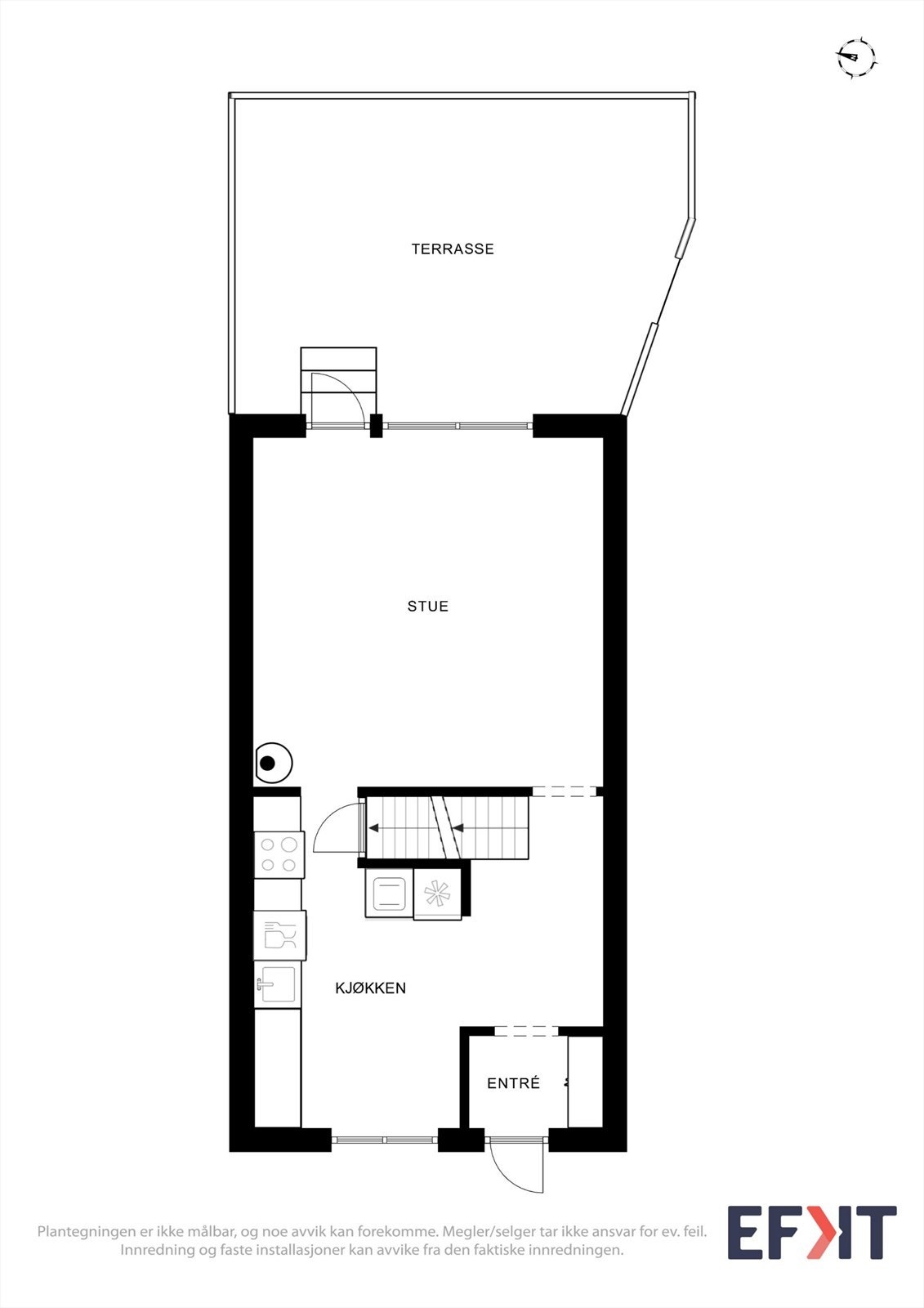
Her kan vi ønske velkommen til pent enderekkehus i Prinsens gate 15 med sentral beliggenhet på Kongsvinger.
Boligen fremstår som godt vedlikeholdt og er en del oppusset i senere tid, hvor entréen er totaloppusset, det er ny ytterdør, nye gulv i hele 1. etasje, totaloppusset soverom, nytt vindu på soverom, ytterveggen har ny kledning og ny isolasjon, ny pipebeslag og ny pipehatt, m.m. Boligen har en moderne og gjennomgående standard. Hyggelig terrasse ved inngangsparti. Egen garasje med el-port og el-bil lader. Oppvarming med vedfyring og varmepumpe. Det er innlagt fiber.
Boligen inneholder entré, stue, kjøkken og utgang til hyggelig terrasse, tre gode soverom og pent flislagt bad med gulvvarme. Kjeller med trapperom, vaskerom og innvendig bod.
Velkommen til visning!
Boligen fremstår som godt vedlikeholdt og er en del oppusset i senere tid, hvor entréen er totaloppusset, det er ny ytterdør, nye gulv i hele 1. etasje, totaloppusset soverom, nytt vindu på soverom, ytterveggen har ny kledning og ny isolasjon, ny pipebeslag og ny pipehatt, m.m. Boligen har en moderne og gjennomgående standard. Hyggelig terrasse ved inngangsparti. Egen garasje med el-port og el-bil lader. Oppvarming med vedfyring og varmepumpe. Det er innlagt fiber.
Boligen inneholder entré, stue, kjøkken og utgang til hyggelig terrasse, tre gode soverom og pent flislagt bad med gulvvarme. Kjeller med trapperom, vaskerom og innvendig bod.
Velkommen til visning!
NB: Knappen for å vise hele beskrivelsen har kun en visuell effekt.
NB: Knappen for å vise hele beskrivelsen har kun en visuell effekt.
Salgsoppgaven beskriver vesentlig og lovpålagt informasjon om eiendommen
Se komplett salgsoppgaveNærområdet
Aktiv Kongsvinger
Annonseinformasjon
| FINN-kode | 424262964 |
|---|---|
| Sist endret | 10. des. 2025 13:49 |
| Referanse | 1202250135 |
Annonsene kan være mangelfulle i forhold til lovpålagt opplysningsplikt. Før bindende avtale inngås oppfordres interessenter til å innhente komplett informasjon fra meglerforetaket, selger eller utleier.



























