Bildegalleri

Fasade. Foto v/ Haukdal, Interiørfoto
Å/Meldal
Eiendom med usjenert beliggenhet i Resfaret. Pent opparbeidet eiertomt. Romslig uthus/garasje og stabbur.
Prisantydning950 000 kr
Nøkkelinfo
- Boligtype
- Enebolig
- Eieform
- Eier (Selveier)
- Soverom
- 3
- Internt bruksareal
- 125 m² (BRA-i)
- Bruksareal
- 175 m²
- Eksternt bruksareal
- 50 m² (BRA-e)
- Etasje
- 3
- Byggeår
- 1925
- Energimerking
- G - Oransje
- Tomteareal
- 800 m² (eiet)
Visning
Ved annonsert visning er det viktig at du melder deg på visningen ved å bruke visningspåmeldingsknappen eller kontakter megler. Annonserte visninger hvor det ikke er noen påmeldte innen kl. 15.00 dagen før visningsdagen vil ikke bli avholdt.
For visninger utover dette, ta direkte kontakt med megler.
VisningspåmeldingOm boligen
Eldre enebolig, som trolig ble flyttet til eiendommen på 1920-tallet. Er ivaretatt gjennom årene, med bl.a. skiftet vinduer i 1. etg. på 2000-tallet og vinduer i 2. etg. i hovedsak ca. 1990. Selger opplyser at det ble etablert ny septiktank, trolig tidlig 2000-tallet. Det er montert rør i pipe og ny takstige i senere tid. Kortvegg mot nord ble skiftet på 90-tallet.
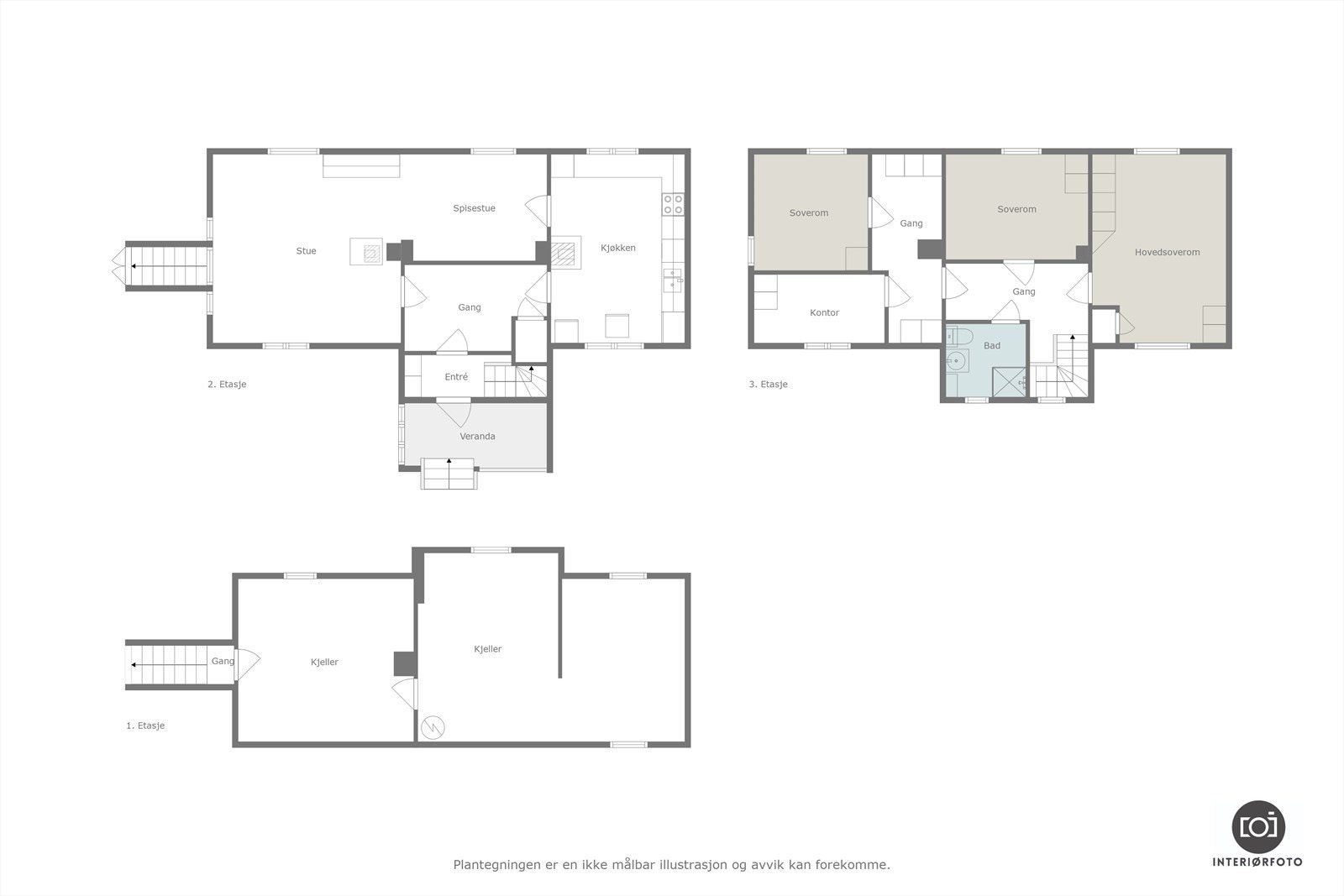
Kjeller: Uinnredet. Utvendig trapp.
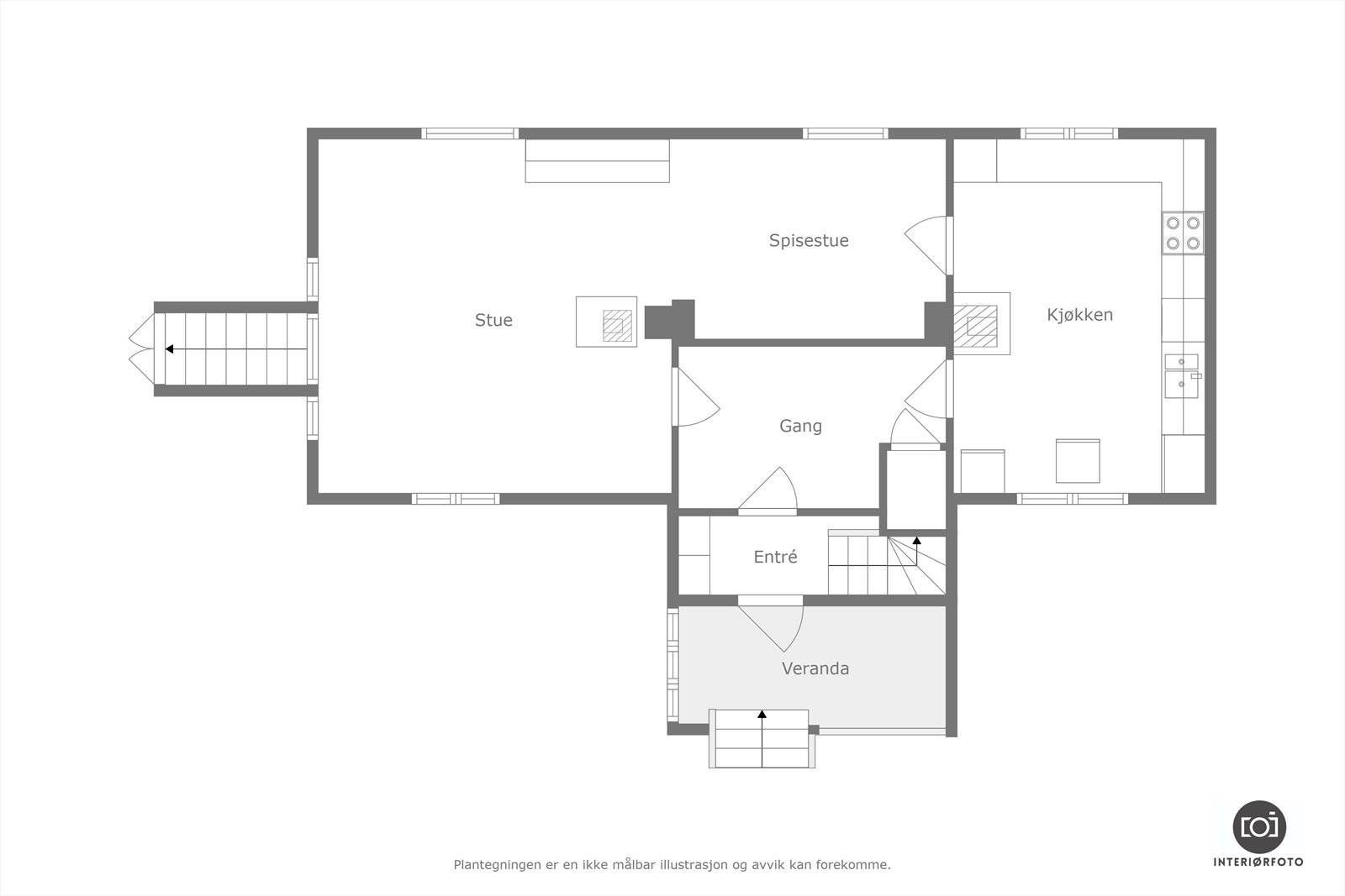
1. etg: Vindfang, gang, stue, kjøkken, spisestue og kott. Både vedovn og varmpumpe.
2. etg: Gang, 3 soverom, kontor og bad.
Mørkloft: Stige fra gang 2. etg. Her er det god lagerplass.
I tillegg er det uthus med vedskjul og garasjerom til to biler, frittstående redskapsbod og stabbur.
Fin beliggenhet i et lite boligfelt, med gangavstand til butikken, buss og barnehage.
Ca. 7 km til Meldal.
Kjeller: Uinnredet. Utvendig trapp.
1. etg: Vindfang, gang, stue, kjøkken, spisestue og kott. Både vedovn og varmpumpe.
2. etg: Gang, 3 soverom, kontor og bad.
Mørkloft: Stige fra gang 2. etg. Her er det god lagerplass.
I tillegg er det uthus med vedskjul og garasjerom til to biler, frittstående redskapsbod og stabbur.
Fin beliggenhet i et lite boligfelt, med gangavstand til butikken, buss og barnehage.
Ca. 7 km til Meldal.
NB: Knappen for å vise hele beskrivelsen har kun en visuell effekt.
NB: Knappen for å vise hele beskrivelsen har kun en visuell effekt.
Salgsoppgaven beskriver vesentlig og lovpålagt informasjon om eiendommen
Se komplett salgsoppgaveNærområdet
Aktiv Orkla
Annonseinformasjon
| FINN-kode | 424258909 |
|---|---|
| Sist endret | 11. feb. 2026 14:00 |
| Referanse | 1702250192 |
Annonsene kan være mangelfulle i forhold til lovpålagt opplysningsplikt. Før bindende avtale inngås oppfordres interessenter til å innhente komplett informasjon fra meglerforetaket, selger eller utleier.






































