Bildegalleri

Landlig idyllisk med stor tomt. Merking av tomt er et illustrasjonsbilde og viser ikke eksakte grenser.
Svarstad - Stor solrik eiendom på ca. 38 dekar i landlige omgivelser med enebolig og eldre uthus/garasje.
Prisantydning2 950 000 kr
Nøkkelinfo
- Boligtype
- Enebolig
- Eieform
- Eier (Selveier)
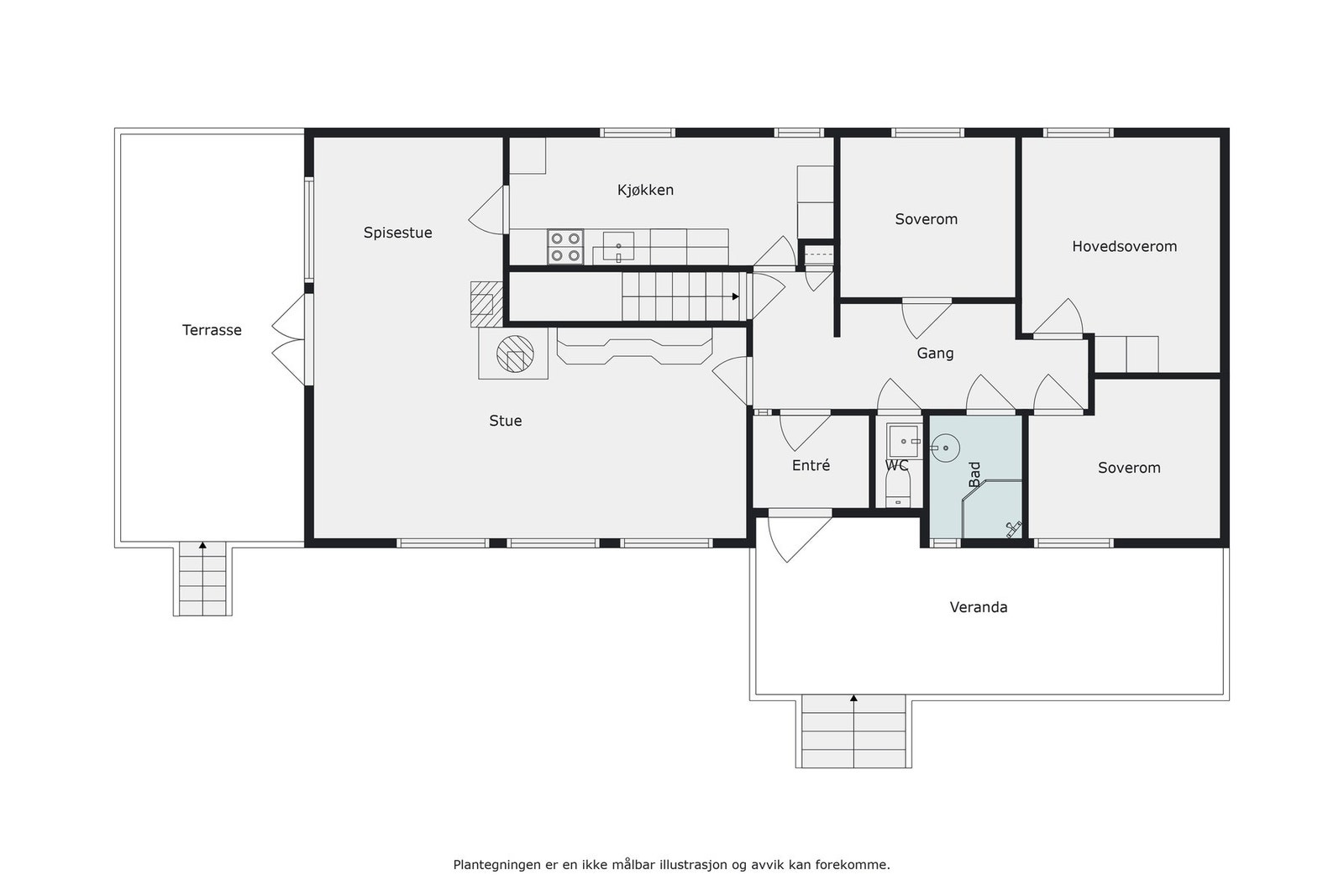
- Soverom
- 3
- Internt bruksareal
- 192 m² (BRA-i)
- Bruksareal
- 192 m²
- Balkong/Terrasse
- 39 m² (TBA)
- Byggeår
- 1974
- Energimerking
- G - Oransje
- Tomteareal
- 38 199 m² (eiet)
Om boligen
Koselig eiendom med småbruksfølelse midt i naturen bestående av en enebolig over et plan pluss full kjeller med mange muligheter. Sidebygning med garasje og god lagringsplass. Dette er eiendommen for deg som liker friluftsliv, boltreplass og skjermet og solrik beliggenhet - her har du alt i ett. Eiendommen er på ca. 38 dekar med litt jord og skog, mens området rundt hovedhuset er opparbeidet med gruset gårdsplass og plen.
I tillegg er det verdt å nevne at det kun er 5 minutter med bil til Svarstad, hvor man kan handle dagligvarer og levere barn i barnehagen eller på skolen. Busstopp med skolebuss like ved eiendommen.
Både Skien, Sandefjord, Tønsberg, Larvik, Kongsberg, Drammen og Torp lufthavn ligger i underkant av en time fra Svarstad. Det tar ca. 1 time og 15 min til Oslo.
I tillegg er det verdt å nevne at det kun er 5 minutter med bil til Svarstad, hvor man kan handle dagligvarer og levere barn i barnehagen eller på skolen. Busstopp med skolebuss like ved eiendommen.
Både Skien, Sandefjord, Tønsberg, Larvik, Kongsberg, Drammen og Torp lufthavn ligger i underkant av en time fra Svarstad. Det tar ca. 1 time og 15 min til Oslo.
NB: Knappen for å vise hele beskrivelsen har kun en visuell effekt.
NB: Knappen for å vise hele beskrivelsen har kun en visuell effekt.
Salgsoppgaven beskriver vesentlig og lovpålagt informasjon om eiendommen
Se komplett salgsoppgaveNyttige lenker
Nærområdet

PrivatMegleren Larvik
Kun det beste på dine vegne
Annonseinformasjon
| FINN-kode | 424228179 |
|---|---|
| Sist endret | 14. nov. 2025 10:31 |
| Referanse | 52250072 |
Annonsene kan være mangelfulle i forhold til lovpålagt opplysningsplikt. Før bindende avtale inngås oppfordres interessenter til å innhente komplett informasjon fra meglerforetaket, selger eller utleier.






























