Bildegalleri

Velkommen til Sporveisgata 8A, en gjennomgående treroms leilighet i 5. etasje med to balkonger.
Bislett / Majorstuen
Stor gjennomgående 3-roms leilighet, med to innglassede balkonger, i 5.etasje med heis!
Prisantydning7 200 000 kr
Nøkkelinfo
- Boligtype
- Leilighet
- Eieform
- Andel
- Soverom
- 2
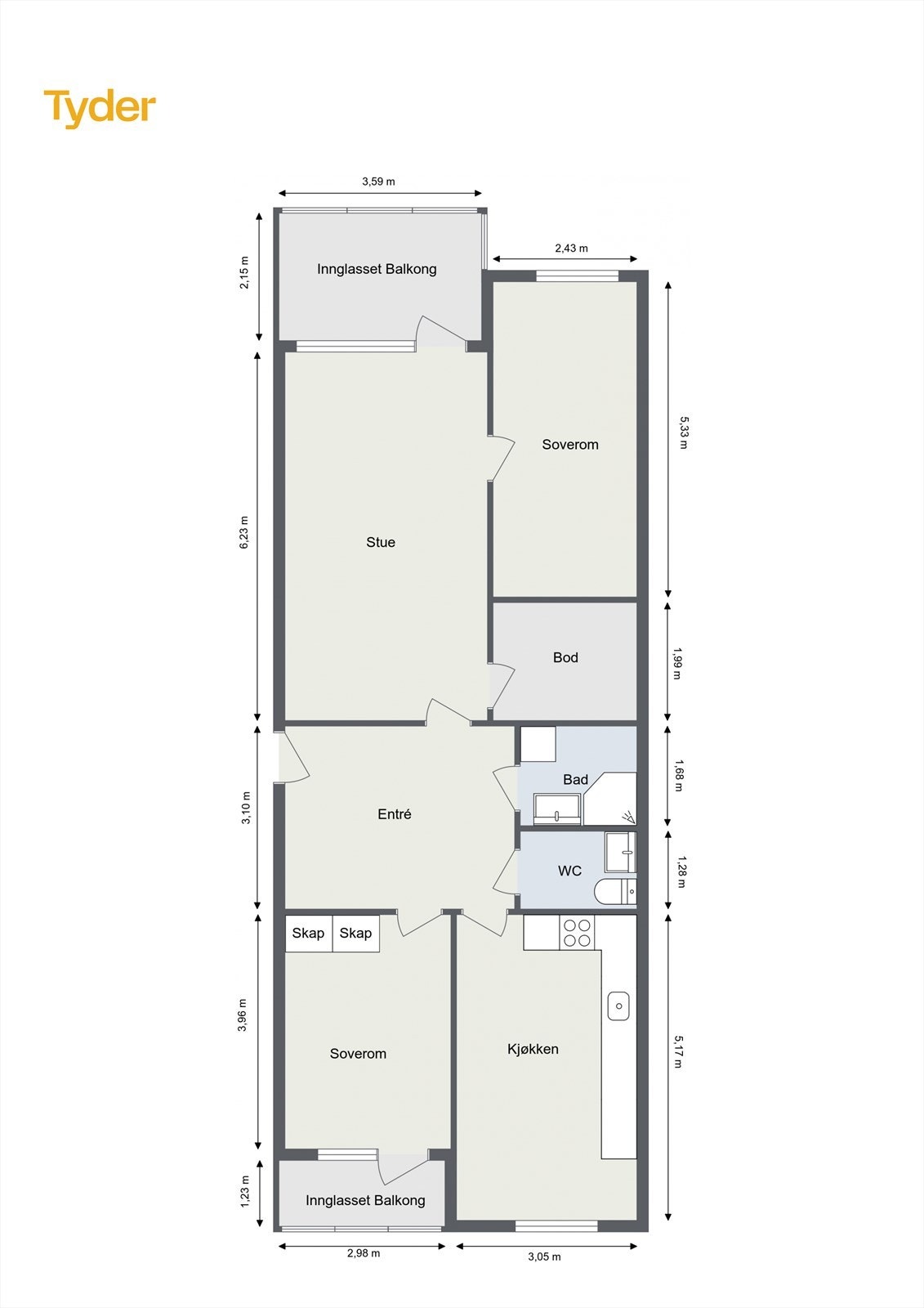
- Internt bruksareal
- 89 m² (BRA-i)
- Bruksareal
- 101 m²
- Eksternt bruksareal
- 1 m² (BRA-e)
- Innglasset balkong
- 11 m² (BRA-b)
- Etasje
- 5
- Byggeår
- 1972
- Energimerking
- F - Rød
- Rom
- 3
- Tomteareal
- 2 941 m² (eiet)
Fasiliteter
Balkong/Terrasse
Barnevennlig
Bredbåndstilknytning
Fellesvaskeri
Heis
Kjæledyr tillatt
Kabel-TV
Offentlig vann/kloakk
Parkett
Rolig
Sentralt
Utsikt
Vaktmester-/vektertjeneste
Om boligen
Velkommen til Sporveisgata 8A!
En lys og romslig 3-roms leilighet i 5. etasje med heisadkomst beliggende i et attraktivt område midt mellom Bislett og Majorstuen. Leiligheten har en god planløsning og store vindusflater som slipper inn mye naturlig lys. Leiligheten by på en lys stue med utgang til innglasset balkong på 7,5 m², stilrent separat kjøkken, flislagt bad, separat toalettrom, to gode soverom hvorav det ene har utgang til innglasset balkong på 3,5 m² og en praktisk innebod. Det er kort vei til butikker, offentlig kommunikasjon og alt av servicetilbud.
Kort fortalt:
- 5.etg med heis
- Gjennomgående planløsning
- Mulighet for flere soverom
- Noe moderniseringsbehov
- To innglassede balkonger
- IN-ordning
Klausulert for blinde og svaksynte, kan selges på det åpne marked etter 6 mnd.
En lys og romslig 3-roms leilighet i 5. etasje med heisadkomst beliggende i et attraktivt område midt mellom Bislett og Majorstuen. Leiligheten har en god planløsning og store vindusflater som slipper inn mye naturlig lys. Leiligheten by på en lys stue med utgang til innglasset balkong på 7,5 m², stilrent separat kjøkken, flislagt bad, separat toalettrom, to gode soverom hvorav det ene har utgang til innglasset balkong på 3,5 m² og en praktisk innebod. Det er kort vei til butikker, offentlig kommunikasjon og alt av servicetilbud.
Kort fortalt:
- 5.etg med heis
- Gjennomgående planløsning
- Mulighet for flere soverom
- Noe moderniseringsbehov
- To innglassede balkonger
- IN-ordning
Klausulert for blinde og svaksynte, kan selges på det åpne marked etter 6 mnd.
NB: Knappen for å vise hele beskrivelsen har kun en visuell effekt.
NB: Knappen for å vise hele beskrivelsen har kun en visuell effekt.
Salgsoppgaven beskriver vesentlig og lovpålagt informasjon om eiendommen
Se komplett salgsoppgaveNyttige lenker
Nærområdet
EiendomsMegler 1 Majorstuen
Vi loser deg trygt gjennom hele boligsalget
Annonseinformasjon
| FINN-kode | 424105876 |
|---|---|
| Sist endret | 09. feb. 2026 10:53 |
| Referanse | 6030260045 |
Annonsene kan være mangelfulle i forhold til lovpålagt opplysningsplikt. Før bindende avtale inngås oppfordres interessenter til å innhente komplett informasjon fra meglerforetaket, selger eller utleier.



































