Bildegalleri

Isak Juel Fagermoen v/PrivatMegleren har gleden av å presentere Lyngveien 12B!
Solgt
Kaja / Ås
Romslig 3-roms sentralt på Kaja | Peis, nyere kjøkken & stor balkong | Nær sentrum, tog & NMBU | 3 boder | Parkering
Prisantydning3 990 000 kr
Nøkkelinfo
- Boligtype
- Leilighet
- Eieform
- Andel
- Soverom
- 2
- Internt bruksareal
- 66 m² (BRA-i)
- Bruksareal
- 75 m²
- Eksternt bruksareal
- 9 m² (BRA-e)
- Balkong/Terrasse
- 14 m² (TBA)
- Etasje
- 1
- Byggeår
- 1963
- Energimerking
- F - Oransje
- Rom
- 3
- Tomteareal
- 6 145 m² (eiet)
Fasiliteter
Barnevennlig
Balkong/Terrasse
Garasje/P-plass
Kabel-TV
Peis/Ildsted
Turterreng
Fellesvaskeri
Sentralt
Bredbåndstilknytning
Moderne
Rolig
Om boligen
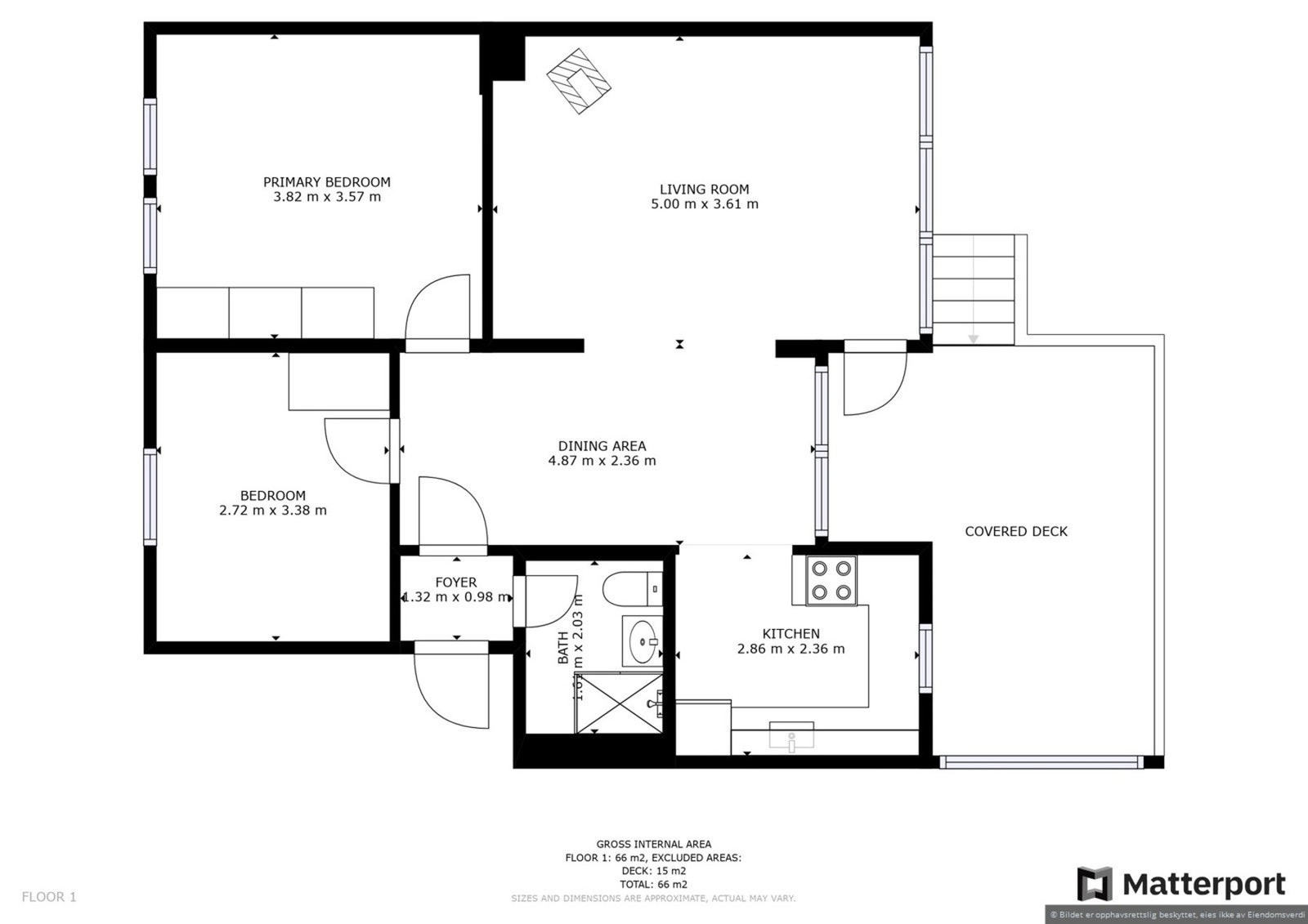
Velkommen til Lyngveien 12B - en gjennomgående og romslig 3-roms selveierleilighet i et populært og etablert borettslag i Ås. Leiligheten ligger i 1. etasje med skjermet uteplass og gode solforhold. Her bor du tilbaketrukket og stille, men samtidig med kort gangavstand til både togstasjon, butikker, skoler og Universitetet i Ås.
Planløsningen er effektiv og god, innvendig er det blant annet nytt kjøkken fra 2021 og koselig vedfyring i stuen. Leiligheten har i tillegg hele tre boder i kjeller, og en stor overbygget balkong med utgang til felles hage med gressplen.
- Gjennomgående 3-roms leilighet
- Nyere kjøkken (2021)
- Stor overbygget balkong på 14 kvm
- 3 boder
- Gangavstand til tog, butikker og NMBU
- Rolig og tilbaketrukket beliggenhet rett ved marka
- Borettslag med lav fellesgjeld
Planløsningen er effektiv og god, innvendig er det blant annet nytt kjøkken fra 2021 og koselig vedfyring i stuen. Leiligheten har i tillegg hele tre boder i kjeller, og en stor overbygget balkong med utgang til felles hage med gressplen.
- Gjennomgående 3-roms leilighet
- Nyere kjøkken (2021)
- Stor overbygget balkong på 14 kvm
- 3 boder
- Gangavstand til tog, butikker og NMBU
- Rolig og tilbaketrukket beliggenhet rett ved marka
- Borettslag med lav fellesgjeld
NB: Knappen for å vise hele beskrivelsen har kun en visuell effekt.
NB: Knappen for å vise hele beskrivelsen har kun en visuell effekt.
Salgsoppgaven beskriver vesentlig og lovpålagt informasjon om eiendommen
Se komplett salgsoppgaveNyttige lenker
Nærområdet
PrivatMegleren Ski & Ås
Kun det beste på dine vegne
Annonseinformasjon
| FINN-kode | 423972767 |
|---|---|
| Sist endret | 07. sep. 2025 10:34 |
| Referanse | 309251021 |
Annonsene kan være mangelfulle i forhold til lovpålagt opplysningsplikt. Før bindende avtale inngås oppfordres interessenter til å innhente komplett informasjon fra meglerforetaket, selger eller utleier.





















