


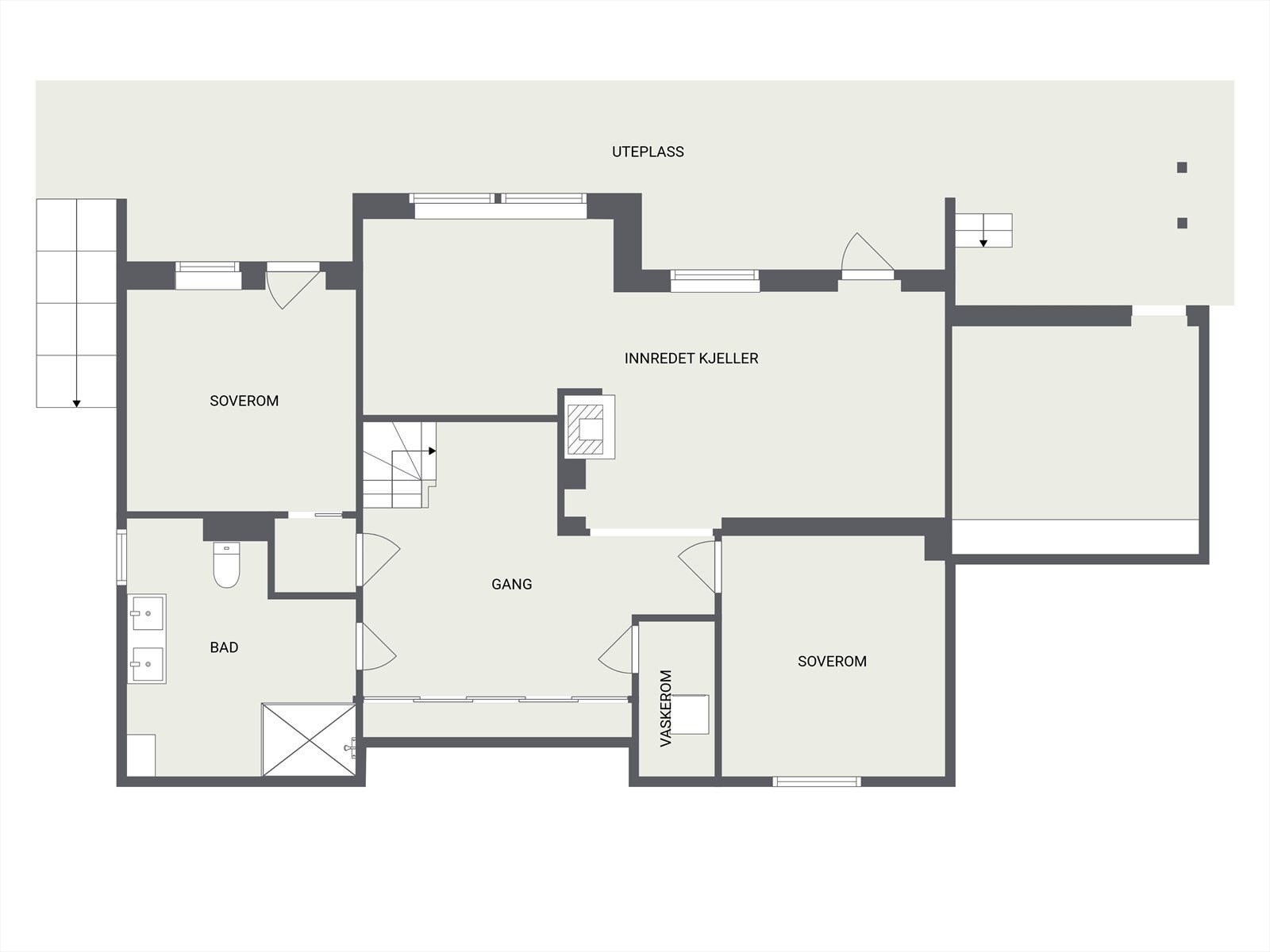
Velkommen til Marihøneveien 24!
Salgsoppgaven beskriver vesentlig og lovpålagt informasjon om eiendommen
Se komplett salgsoppgaveMarihøneveien 24
på annonsen
prisantydning per kvadratmeter
Pris per m² ligger 8 717 kr under snittet for eneboliger i Tønsberg.
Grafen viser antall eneboliger solgt i Tønsberg siste året fordelt på pris per m² - totalt 444 eneboliger
Antall boliger
Kvadratmeterpris tilsvarer prisantydning pluss fellesgjeld per kvadratmeter (p-rom eller BRA-i). Prisene i grafen er avrundet til nærmeste 1000 kr.












| FINN-kode | 423910644 |
|---|---|
| Sist endret | 17. apr. 2026 12:59 |
| Referanse | 2871250069 |
Annonsene kan være mangelfulle i forhold til lovpålagt opplysningsplikt. Før bindende avtale inngås oppfordres interessenter til å innhente komplett informasjon fra meglerforetaket, selger eller utleier.