Bildegalleri

DSCF0423
Meget kjekk og lettstelt leilighet med sentral beliggenhet | 2 soverom | Parkering i lukket garasjeanlegg | Heis
Nøkkelinfo
- Boligtype
- Leilighet
- Eieform
- Eier (Selveier)
- Soverom
- 2
- Internt bruksareal
- 67 m² (BRA-i)
- Bruksareal
- 73 m²
- Eksternt bruksareal
- 6 m² (BRA-e)
- Balkong/Terrasse
- 15 m² (TBA)
- Etasje
- 3
- Byggeår
- 2007
- Energimerking
- D - Rød
- Rom
- 3
- Tomteareal
- 4 717 m² (eiet)
Om boligen
I Seljehagen bor du sentralt med kort avstand til de fleste fasiliteter og de mange arbeidsplasser på Forus. Boligblokken ligger fint tilbaketrukket i pene og grønne omgivelser. Flere lekeplasser og kort vei til skoler, barnehager, helsesenter, idrettsanlegg m.m. Servicetilbud og mange arbeidsplasser ligger som nærmeste naboer. Meget gode bussforbindelser til Stavanger og Sandnes.
Vi har fått for salg en lys og innbydende leilighet med gjennomgående god standard. Leiligheten fremstår som godt vedlikeholdt og kan flyttes rett inn i. Leiligheten har en åpen og fin planløsning, med gode lysforhold.
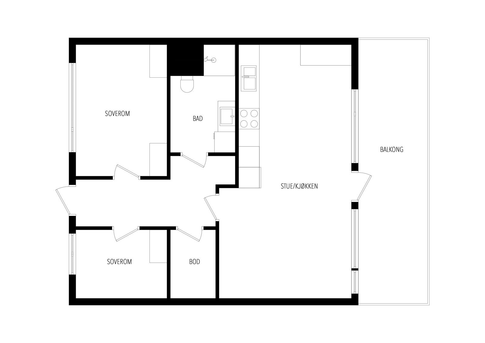
3. etg.: Entré/gang, stue/kjøkken, to soverom, bad/vaskerom og bod.
I tillegg har man en bod i kjeller + fast biloppstillingsplass i lukket anlegg.
Salgsoppgaven beskriver vesentlig og lovpålagt informasjon om eiendommen
Se komplett salgsoppgaveNyttige lenker
Nærområdet
Proaktiv Eiendomsmegling Stavanger
Annonseinformasjon
| FINN-kode | 423783159 |
|---|---|
| Sist endret | 05. sep. 2025 10:14 |
| Referanse | 54250111 |
Annonsene kan være mangelfulle i forhold til lovpålagt opplysningsplikt. Før bindende avtale inngås oppfordres interessenter til å innhente komplett informasjon fra meglerforetaket, selger eller utleier.



































