Bildegalleri

Lokalmegler Awet Tella v/ EiendomsMegler 1 har gleden av å presentere Ragnhild Schibbyes vei 58.
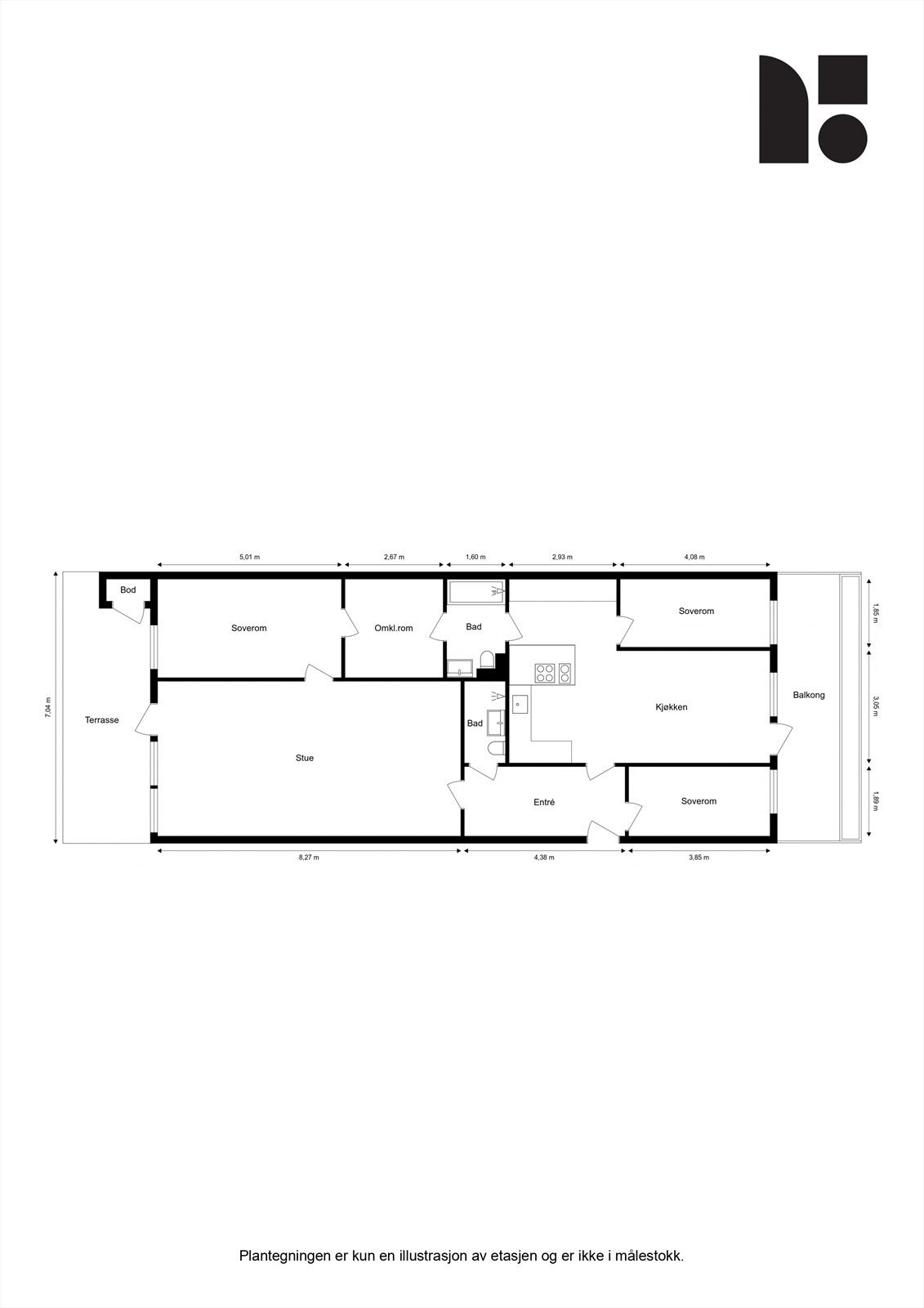
Innholdsrik & tiltalende 4-roms | Trappefri adkomst | 2 herlige uteplasser | 2 Bad fra 2018 | Garasjeplass |Barnevennlig
Nøkkelinfo
- Boligtype
- Leilighet
- Eieform
- Andel
- Soverom
- 3
- Internt bruksareal
- 118 m² (BRA-i)
- Bruksareal
- 122 m²
- Eksternt bruksareal
- 4 m² (BRA-e)
- Balkong/Terrasse
- 23 m² (TBA)
- Etasje
- 1
- Byggeår
- 1978
- Energimerking
- F - Rød
- Rom
- 4
- Tomteareal
- 3 039 m² (eiet)
Fasiliteter
Om boligen
Høydepunkter:
- 4-roms andelsleilighet
- Trappefri adkomst
- Innholdsrik og familievennlig
- Markterrasse 12 m² + balkong 11 m²
- Lys og trivelig stue
- Bad fra 2018
- Eget stort kjøkkenrom
- Tre gode soverom og to bad
- En innvendig og eksterne boder
- Medfølgende garasjeplass
- Sentralt og tilgjengelig
- 2 min gange til Vestlig T-bane
Salgsoppgaven beskriver vesentlig og lovpålagt informasjon om eiendommen
Se komplett salgsoppgaveNyttige lenker
Nærområdet
EiendomsMegler 1 Stovner
Prisstatistikk
Ragnhild Schibbyes vei 58
på annonsen
prisantydning per kvadratmeter
Prisfordeling
Pris per m² ligger 17 857 kr under snittet for leiligheter i Stovner.
Grafen viser antall leiligheter solgt i Stovner siste året fordelt på pris per m² - totalt 370 leiligheter
Antall boliger
Kvadratmeterpris tilsvarer prisantydning pluss fellesgjeld per kvadratmeter (p-rom eller BRA-i). Prisene i grafen er avrundet til nærmeste 1000 kr.
Annonseinformasjon
| FINN-kode | 423747622 |
|---|---|
| Sist endret | 21. nov. 2025 07:20 |
| Referanse | 3286250393 |
Annonsene kan være mangelfulle i forhold til lovpålagt opplysningsplikt. Før bindende avtale inngås oppfordres interessenter til å innhente komplett informasjon fra meglerforetaket, selger eller utleier.














































