Bildegalleri

Velkommen til Sætraveien 8!
Sørumsand
Sjarmerende enebolig over tre plan med idyllisk beliggenhet og fantastiske uteplasser - Kledning og terrasse fra 2024!
Prisantydning4 490 000 kr
Nøkkelinfo
- Boligtype
- Enebolig
- Eieform
- Eier (Selveier)
- Soverom
- 3
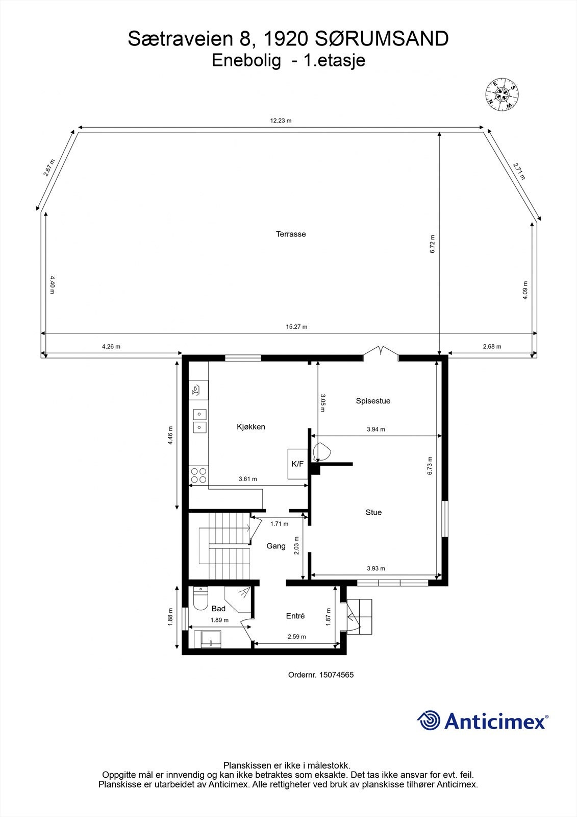
- Internt bruksareal
- 147 m² (BRA-i)
- Bruksareal
- 184 m²
- Eksternt bruksareal
- 37 m² (BRA-e)
- Balkong/Terrasse
- 100 m² (TBA)
- Etasje
- 3
- Byggeår
- 1947
- Energimerking
- G - Oransje
- Rom
- 4
- Tomteareal
- 1 302 m² (eiet)
Fasiliteter
Balkong/Terrasse
Barnevennlig
Garasje/P-plass
Hage
Kjæledyr tillatt
Kabel-TV
Peis/Ildsted
Rolig
Turterreng
Lademulighet
Om boligen
Velkommen til Sætraveien 8, en sjarmerende enebolig over to plan med idyllisk, landlig beliggenhet, kun fire minutter fra Sørumsand sentrum. Huset har de siste årene fått flere betydelige oppgraderinger, blant annet etterisolering, ny kledning, nyere vinduer, peisovn og varmepumpe. I tillegg kan du glede deg over en stor, ny terrasse og steinlagt gårdsplass. Eiendommen byr ellers på gode sol- og utsiktsforhold, samt umiddelbar nærhet til flotte tur- og rekreasjonsområder. I Sørumsand sentrum finner du alt du trenger i hverdagen fra dagligvarebutikker og restauranter til treningssentre og idrettsanlegg. Flere høydepunkter:
- Garasje og elbillader
- Stor, inngjerdet hage
- Vindfang pusset opp i 2025
- Kjeller med god lagringsplass
- Kun 100 meter til bussholdeplass
Velkommen til visning
- Garasje og elbillader
- Stor, inngjerdet hage
- Vindfang pusset opp i 2025
- Kjeller med god lagringsplass
- Kun 100 meter til bussholdeplass
Velkommen til visning
NB: Knappen for å vise hele beskrivelsen har kun en visuell effekt.
NB: Knappen for å vise hele beskrivelsen har kun en visuell effekt.
Salgsoppgaven beskriver vesentlig og lovpålagt informasjon om eiendommen
Se komplett salgsoppgaveNyttige lenker
Nærområdet
Krogsveen Lillestrøm
Velkommen til en enklere boligreise.
Annonseinformasjon
| FINN-kode | 423342267 |
|---|---|
| Sist endret | 01. jan. 2026 20:59 |
| Referanse | KR60.25258 |
Annonsene kan være mangelfulle i forhold til lovpålagt opplysningsplikt. Før bindende avtale inngås oppfordres interessenter til å innhente komplett informasjon fra meglerforetaket, selger eller utleier.










































