Bildegalleri

Velkommen til en sjelden mulighet i Lillestrøm! Lys og lekker 3(4)roms toppleilighet med to private takterrasser, lite innsyn og fantastisk utsikt så langt øyet kan se.
Meierikvartalet - Lillestrøm
Unik 3(4)roms toppleilighet m spektakulær utsikt! 2 private takterrasser på totalt 56kvm. Solrik perle i Meierikvartalet
Prisantydning9 990 000 kr
Nøkkelinfo
- Boligtype
- Leilighet
- Eieform
- Eier (Selveier)
- Soverom
- 2
- Internt bruksareal
- 94 m² (BRA-i)
- Bruksareal
- 110 m²
- Eksternt bruksareal
- 16 m² (BRA-e)
- Balkong/Terrasse
- 56 m² (TBA)
- Etasje
- 12
- Byggeår
- 2023
- Energimerking
- C - Mørkegrønn
- Tomteareal
- 1 212 m²
Fasiliteter
Balkong/Terrasse
Parkett
Heis
Barnevennlig
Moderne
Sentralt
Garasje/P-plass
Offentlig vann/kloakk
Solavskjerming
Utsikt
Vaktmester-/vektertjeneste
Takterrasse
Visning
søndag, 11. januar
13:00 – 14:00
Alle våre visninger har påmelding. På denne måten sikrer vi at megler har god oversikt og tid til å imøtekomme alle interessenter på beste måte. Dette er veldig verdifullt for boligkjøpere og for oss. Det er enkelt å melde seg på, og du kan like enkelt melde deg av.
Kontakt også gjerne megler i forkant av visning dersom du har spørsmål.
VisningspåmeldingOm boligen
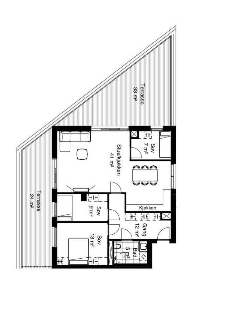
En sjelden mulighet! Lys og lekker 3(4)roms toppleilighet med to private takterrasser, lite innsyn og fantastisk utsikt så langt øyet kan se. Her bor du sentralt i Lillestrøm med kort vei til både byliv, togstasjon og grønne rekreasjonsområder.
- Nybygg garanti (ca 2,5 år)
- Kjøp av p-plass mulig
- Åpen stue/kjøkkenløsning
- HTH-kjøkken med integrerte hvitevarer
- Vinskap integrert i kjøkkenøy
- En-stavs eikeparkett
- Store vinduer fra gulv til tak
- To takterrasser på ca. 32 og 24 m2
- Delikat bad med lysegrå fliser og gulvvarme
- To gode soverom, mulighet for å etablere et tredje
- Stor kjellerbod på 16m2
- Stor entré med god plass til skap
- Felles takhage med lekeplass og sitteplasser
- 2 "hotellrom" og 2 selskapslokaler til leie
- Bygulv med dagligvarer og restauranter
Sikre deg drømmen på toppen av byen - før det er for sent!
NB: Knappen for å vise hele beskrivelsen har kun en visuell effekt.
NB: Knappen for å vise hele beskrivelsen har kun en visuell effekt.
Salgsoppgaven beskriver vesentlig og lovpålagt informasjon om eiendommen
Se komplett salgsoppgaveNyttige lenker
Nærområdet

PrivatMegleren Lillestrøm
Kun det beste på dine vegne
Kristin Pettersen
Annonseinformasjon
| FINN-kode | 423280829 |
|---|---|
| Sist endret | 01. jan. 2026 15:11 |
| Referanse | 24250392 |
Annonsene kan være mangelfulle i forhold til lovpålagt opplysningsplikt. Før bindende avtale inngås oppfordres interessenter til å innhente komplett informasjon fra meglerforetaket, selger eller utleier.








































