Bildegalleri

Velkommen til Ivar Aasens veg 5 A, presentert av EiendomsMegler 1 ved Stian Berg!
Ugla
UNIK ARKITEKTTEGNET ENEBOLIG FRA BYÅSEN TREVARE - Strålende utsiktsbeliggenhet - Umiddelbar nærhet til Bymarka
Prisantydning8 690 000 kr
Nøkkelinfo
- Boligtype
- Enebolig
- Eieform
- Eier (Selveier)
- Soverom
- 3
- Internt bruksareal
- 136 m² (BRA-i)
- Bruksareal
- 166 m²
- Eksternt bruksareal
- 30 m² (BRA-e)
- Balkong/Terrasse
- 66 m² (TBA)
- Byggeår
- 2016
- Energimerking
- C - Rød
- Tomteareal
- 188 m² (eiet)
Fasiliteter
Barnevennlig
Balkong/Terrasse
Garasje/P-plass
Offentlig vann/kloakk
Parkett
Turterreng
Utsikt
Moderne
Rolig
Bademulighet
Visning
onsdag, 25. februar
16:30 – 17:30
Våre visninger har påmelding. Dette gjør vi for å kunne yte bedre service for våre kunder. Verdifullt for boligkjøper og for oss. Vi anbefaler at salgsoppgaven lastes ned digitalt før visning, og ring oss gjerne på forhånd for spørsmål om boligen. Passer ikke angitt tidspunkt, ta kontakt så finner vi en løsning. Skulle det mot formodning ikke være påmeldte til angitt visningstidspunkt vil ikke visning bli gjennomført.
Om boligen
EiendomsMegler1 ved Stian Berg har den glede å presentere en spennende enebolig med meget ettertraktet beliggenhet på Byåsen.
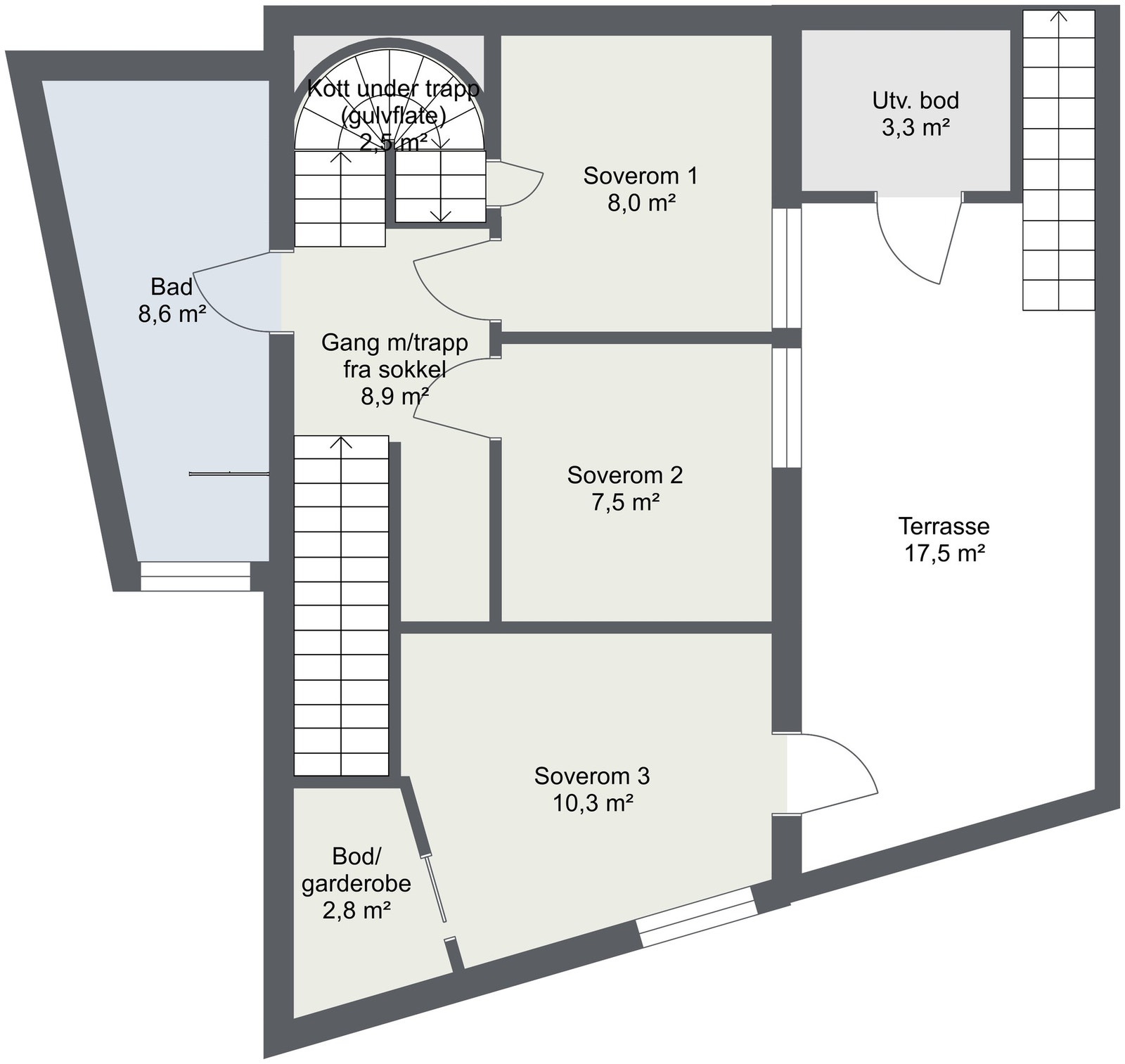
Boligen strekker seg over 166 BRA fordelt over en praktisk planløsning på 4 plan. Huset har en gjennomgående høy standard og inneholder bl.a tre soverom, omkledningsrom, to stuer, kjøkken, to bad og ekstra WC, separat vaskerom, bod, teknisk rom og garasje.
Flere skjermede uteplasser med gode solforhold. Fra kjøkkenet og ute på den østvendte terrassen har man meget flott utsikt.
Beliggenheten er upåklagelig, i et rolig og barnevennlig strøk med det meste i nærheten. Her har man gang- og sykkelavstand til St. Olavs, NTNU Gløshaugen, Trondheim sentrum, Bymarka, golfbane og de fleste andre servicetilbud. Like ved er det også trikkestopp som kan ta deg kjapt ned til sentrum eller opp til Lian.
Velkommen til hyggelig visning!
Boligen strekker seg over 166 BRA fordelt over en praktisk planløsning på 4 plan. Huset har en gjennomgående høy standard og inneholder bl.a tre soverom, omkledningsrom, to stuer, kjøkken, to bad og ekstra WC, separat vaskerom, bod, teknisk rom og garasje.
Flere skjermede uteplasser med gode solforhold. Fra kjøkkenet og ute på den østvendte terrassen har man meget flott utsikt.
Beliggenheten er upåklagelig, i et rolig og barnevennlig strøk med det meste i nærheten. Her har man gang- og sykkelavstand til St. Olavs, NTNU Gløshaugen, Trondheim sentrum, Bymarka, golfbane og de fleste andre servicetilbud. Like ved er det også trikkestopp som kan ta deg kjapt ned til sentrum eller opp til Lian.
Velkommen til hyggelig visning!
NB: Knappen for å vise hele beskrivelsen har kun en visuell effekt.
NB: Knappen for å vise hele beskrivelsen har kun en visuell effekt.
Salgsoppgaven beskriver vesentlig og lovpålagt informasjon om eiendommen
Se komplett salgsoppgaveNyttige lenker
Nærområdet
EiendomsMegler 1 Byåsen
Vi loser deg trygt gjennom hele boligsalget
Annonseinformasjon
| FINN-kode | 423239355 |
|---|---|
| Sist endret | 17. feb. 2026 13:20 |
| Referanse | 35250249 |
Annonsene kan være mangelfulle i forhold til lovpålagt opplysningsplikt. Før bindende avtale inngås oppfordres interessenter til å innhente komplett informasjon fra meglerforetaket, selger eller utleier.
















































