Bildegalleri

Rosshavsgata 32 - presentert av Krogsveen v/Andreas S. Bjønnes
Lunden/ nær sentrum
Innholdsrik og stor enebolig i sentrale omgivelser i blindvei - alt på ett plan - 3 bad og gjestetoalett - garasje
Prisantydning4 490 000 kr
Nøkkelinfo
- Boligtype
- Enebolig
- Eieform
- Eier (Selveier)
- Soverom
- 2
- Internt bruksareal
- 272 m² (BRA-i)
- Bruksareal
- 302 m²
- Eksternt bruksareal
- 30 m² (BRA-e)
- Balkong/Terrasse
- 53 m² (TBA)
- Etasje
- 1
- Byggeår
- 1958
- Energimerking
- F - Oransje
- Tomteareal
- 1 073 m² (festet)
- Festeavgift
- 6 180 kr
Fasiliteter
Alarm
Balkong/Terrasse
Barnevennlig
Garasje/P-plass
Hage
Ingen gjenboere
Kabel-TV
Parkett
Peis/Ildsted
Sentralt
Turterreng
Lademulighet
Visning
Ta kontakt med megler for avtale om privatvisning.
Ønsker du kun å bli holdt orientert, kan du fra eiendommens hjemmeside få varsel om solgtpris, eller kontakte megler.
VisningspåmeldingOm boligen
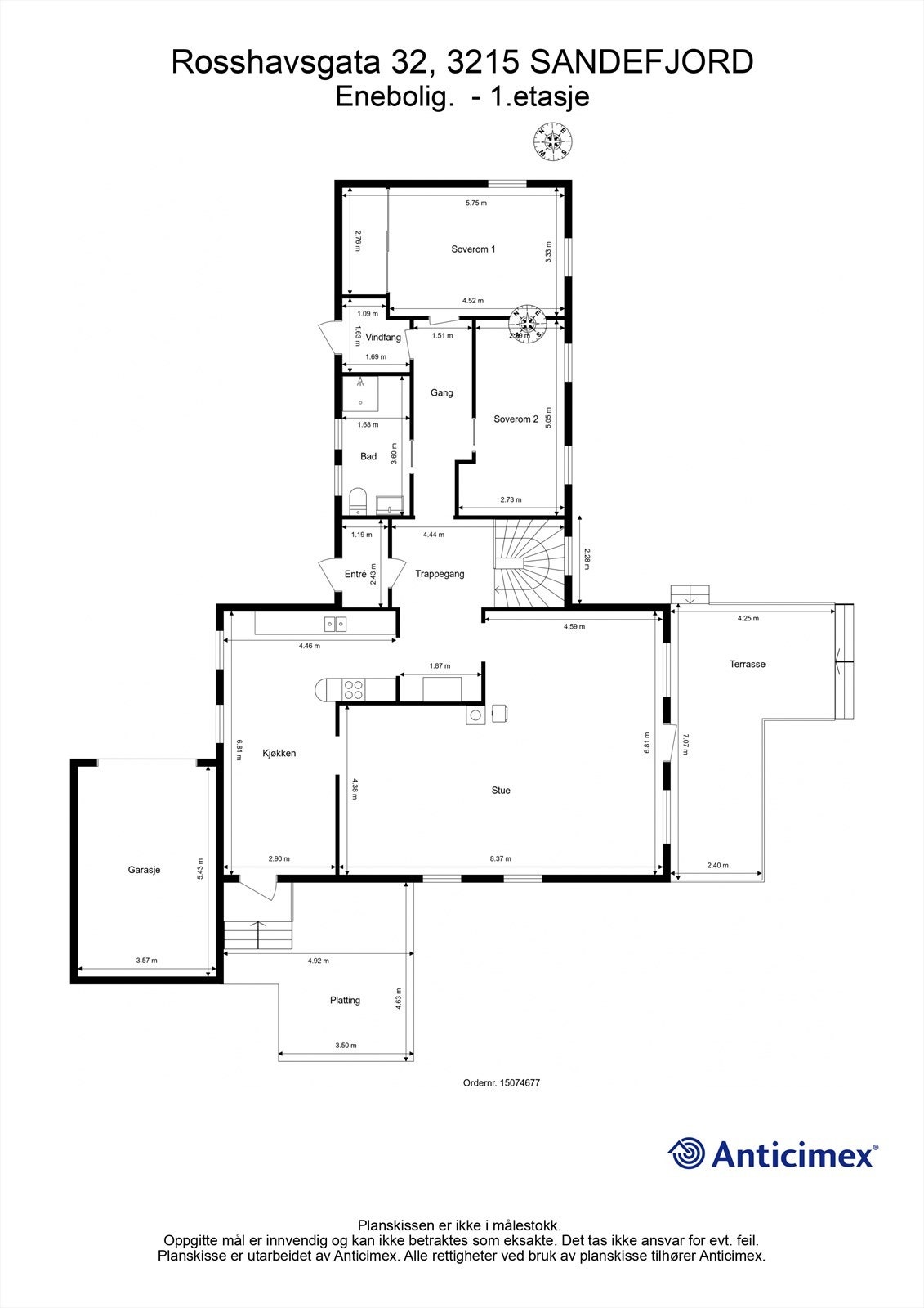
Velkommen til Rosshavsgata 32 - en romslig, praktisk og moderne bolig med en svært sentral beliggenhet. Her bor du i et attraktivt og meget sentralt med gangavstand til sentrum, Indre Havn, butikker, skoler, turområder og kollektivtilbud. Boligen er fordelt på hovedetasje og kjeller, med funksjonell planløsning og perfekt for både familieliv og gjester. Hovedetasjen har lys stue med utgang til solrik terrasse, separat kjøkken med egen uteplass, to soverom og bad. Kjelleren byr på flere bad, vaskerom, gjestetoalett, stor kjellerstue og to rom som benyttes som soverom (stue/soverom er ikke godkjent for varig opphold). Boligen er pent innredet med moderne fargevalg. Tomten er usjenert og ligger fint til i blindvei. Gode parkeringsmuligheter i stor gårdsplass. Garasje med elbillader.
NB: Knappen for å vise hele beskrivelsen har kun en visuell effekt.
NB: Knappen for å vise hele beskrivelsen har kun en visuell effekt.
Salgsoppgaven beskriver vesentlig og lovpålagt informasjon om eiendommen
Se komplett salgsoppgaveNyttige lenker
Nærområdet
Krogsveen Sandefjord
Velkommen til en enklere boligreise.
Annonseinformasjon
| FINN-kode | 423227502 |
|---|---|
| Sist endret | 24. nov. 2025 15:01 |
| Referanse | KR22.25312 |
Annonsene kan være mangelfulle i forhold til lovpålagt opplysningsplikt. Før bindende avtale inngås oppfordres interessenter til å innhente komplett informasjon fra meglerforetaket, selger eller utleier.











































