Bildegalleri

Platous gate 29 formidles av Ansh Chattree ved PrivatMegleren
Solgt
TEATERKVARTALET VED BJØRVIKA
MODERNE & AREALSMART 3-ROMS FRA 2007 | DEILIG BALKONG | 4.ETASJE MED HEIS | VARMTVANN & FYR INKL
Prisantydning5 500 000 kr
Nøkkelinfo
- Boligtype
- Leilighet
- Eieform
- Eier (Selveier)
- Soverom
- 2
- Internt bruksareal
- 53 m² (BRA-i)
- Bruksareal
- 60 m²
- Eksternt bruksareal
- 7 m² (BRA-e)
- Balkong/Terrasse
- 6 m² (TBA)
- Etasje
- 4
- Byggeår
- 2007
- Rom
- 3
- Tomteareal
- 400 m² (eiet)
Fasiliteter
Barnevennlig
Balkong/Terrasse
Kabel-TV
Heis
Offentlig vann/kloakk
Parkett
Turterreng
Vaktmester-/vektertjeneste
Sentralt
Bredbåndstilknytning
Moderne
Rolig
Balansert ventilasjon
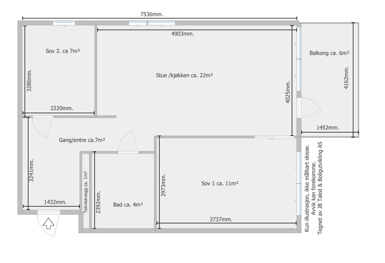
Om boligen
Velkommen til Platous gate 29 - en moderne 3-roms i 4. etasje med heis og balkong mot stille bakgård. Her bor du supersentralt, med Bjørvika, Oslo S, t-bane, buss og trikk minutter unna. Leiligheten har lys stue-/kjøkkenløsning med store vinduer og utgang til solrik balkong på ca. 6 m². To soverom, helfliset bad med gulvvarme og entré med garderobeplass. Veldrevet sameie med lave felleskostnader inkl. fjernvarme. En innflytningsklar leilighet med nymalte flater som gir et friskt inntrykk!
. 3-roms i 4. etasje med heis
. Solrik balkong på ca. 6 m²
. Lys stue-/kjøkkenløsning med store vinduer
. To soverom - fleksibelt bruk
. Helfliset bad med gulvvarme
. Fjernvarme inkl. i felleskostnader
. Veldrevet sameie med lave kostnader
. Kort vei til kollektiv og servicetilbud
. 3-roms i 4. etasje med heis
. Solrik balkong på ca. 6 m²
. Lys stue-/kjøkkenløsning med store vinduer
. To soverom - fleksibelt bruk
. Helfliset bad med gulvvarme
. Fjernvarme inkl. i felleskostnader
. Veldrevet sameie med lave kostnader
. Kort vei til kollektiv og servicetilbud
NB: Knappen for å vise hele beskrivelsen har kun en visuell effekt.
NB: Knappen for å vise hele beskrivelsen har kun en visuell effekt.
Salgsoppgaven beskriver vesentlig og lovpålagt informasjon om eiendommen
Se komplett salgsoppgaveNyttige lenker
Nærområdet
PrivatMegleren Grünerløkka
Kun det beste på dine vegne
Annonseinformasjon
| FINN-kode | 423205748 |
|---|---|
| Sist endret | 05. sep. 2025 11:19 |
| Referanse | 302251028 |
Annonsene kan være mangelfulle i forhold til lovpålagt opplysningsplikt. Før bindende avtale inngås oppfordres interessenter til å innhente komplett informasjon fra meglerforetaket, selger eller utleier.


































