Bildegalleri

Storhaug + Partnere med megler Stian Mathiassen presenterer Sjøstranda 147!
Strøken 2-roms frontleilighet i populært boområde | IN-ordning | Garasjeplass | Sentrumsnær beliggenhet
Nøkkelinfo
- Boligtype
- Leilighet
- Eieform
- Andel
- Soverom
- 1
- Internt bruksareal
- 45 m² (BRA-i)
- Bruksareal
- 50 m²
- Eksternt bruksareal
- 5 m² (BRA-e)
- Etasje
- 4
- Byggeår
- 2007
- Rom
- 2
- Tomteareal
- 1 263 m² (eiet)
Fasiliteter
Om boligen
Storhaug + Partnere med megler Stian Mathiassen presenterer Sjøstranda 147
Her får du en lys og innbydende leilighet med praktisk planløsning og parkering i garasje. Leiligheten ligger fint til i et boligområde på sørøstsiden på Tromsøya. Blokken ligger rett ved havet med nydelig havutsikt, og har kai med fiskemuligheter og frisk sjøluft rett inn vinduet. Her får du gangavstand til dagligvarebutikker, barnehage og skole. Det er hyppige bussavganger til Tromsø sentrum, Jekta Storsenter og UiT/UNN. Dagligvarehandelen kan du ta på Eurospar og Rema 1000 som begge ligger under 5 minutters gange fra boligen.
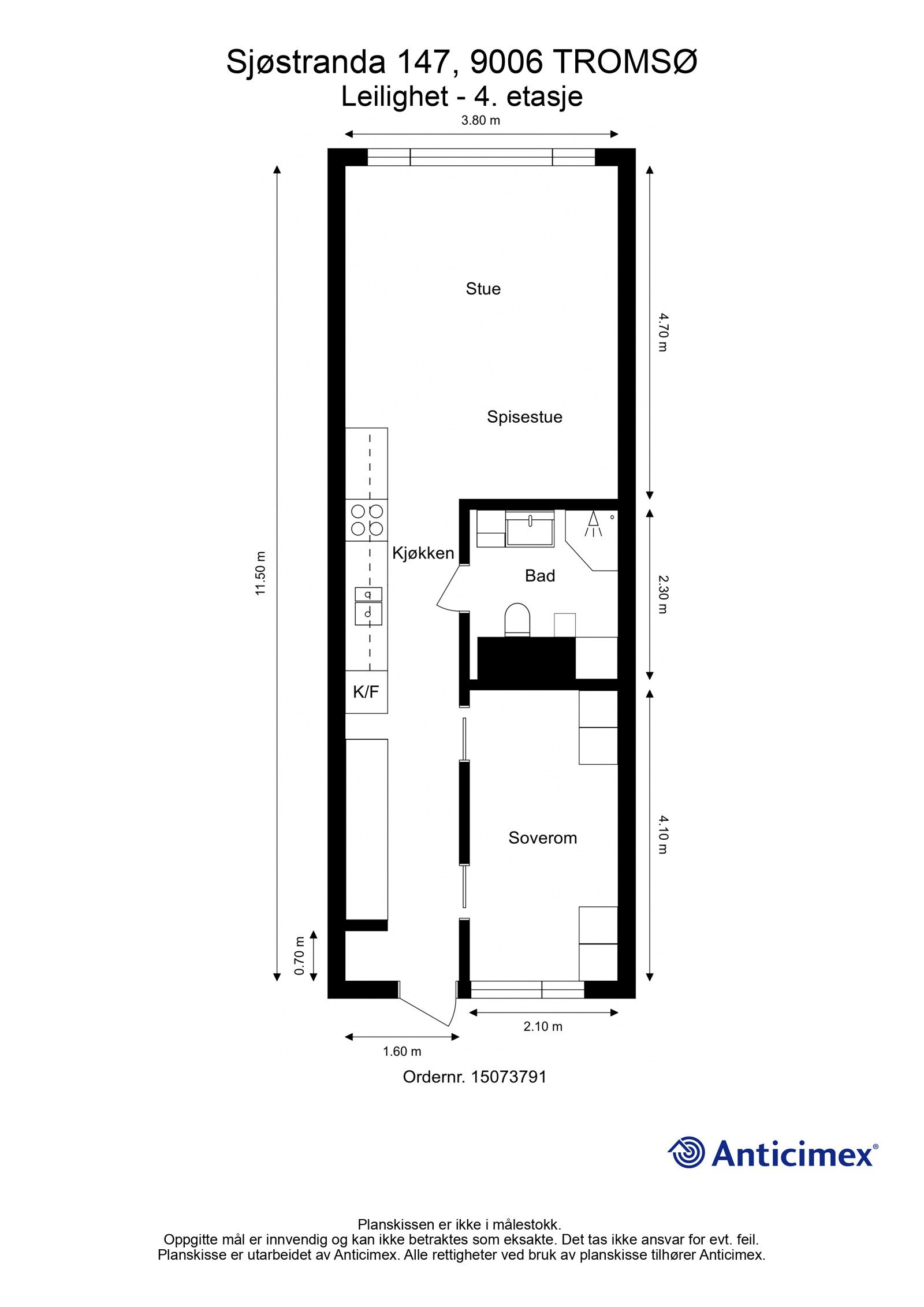
Leiligheten ligger fint til i 4. etasje og byr på følgende planløsning:
Gang, stue/kjøkken, bad/vaskerom soverom. Sportsbod.
Velkommen på visning!
Salgsoppgaven beskriver vesentlig og lovpålagt informasjon om eiendommen
Se komplett salgsoppgaveNærområdet
STORHAUG + PARTNERE AS
Prisstatistikk
Sjøstranda 147
på annonsen
prisantydning per kvadratmeter
Prisfordeling
Pris per m² ligger 8 201 kr over snittet for leiligheter i Tromsøya, Sør.
Grafen viser antall leiligheter solgt i Tromsøya, Sør siste året fordelt på pris per m² - totalt 321 leiligheter
Antall boliger
Kvadratmeterpris tilsvarer prisantydning pluss fellesgjeld per kvadratmeter (p-rom eller BRA-i). Prisene i grafen er avrundet til nærmeste 1000 kr.
Annonsene kan være mangelfulle i forhold til lovpålagt opplysningsplikt. Før bindende avtale inngås oppfordres interessenter til å innhente komplett informasjon fra meglerforetaket, selger eller utleier.





































