Bildegalleri

Velkommen til Hustofta 2 - En spennende og interessant enebolig med utleiedel(Ikke godkjent)

Flekkerøy

Innholdsrik enebolig med nyoppusset u-etg | Ekstra tilleggstomt/​plen og sentral beliggenhet | Usjenert terrasse

Prisantydning4 290 000 kr
Totalpris
4 416 340 kr
Omkostninger
126 340 kr
Kommunale avg.
22 942 kr per år
Formuesverdi
1 112 815 kr

Nøkkelinfo

Boligtype
Enebolig
Eieform
Eier (Selveier)
Soverom
3
Internt bruksareal
200 m² (BRA-i)
Bruksareal
222 m²
Eksternt bruksareal
22 m² (BRA-e)
Balkong/Terrasse
130 m² (TBA)
Etasje
3
Byggeår
1971
Energimerking
F - Oransje
Tomteareal
1 413 m² (eiet)

Les mer om bruksareal her

Fasiliteter

Balkong/Terrasse
Barnevennlig
Garasje/P-plass
Hage
Sentralt

Visning

torsdag, 12. februar
17:45 – 18:30
Velkommen til visning! Husk å melde deg på visningen ved å trykke på knappen visningspåmelding under, eller ta kontakt med megler for å gjøre en avtale. Visninger uten påmeldte blir avlyst.
Visningspåmelding

Om boligen

Nå har vi for salg en romslig enebolig med nyoppusset utleiedel i kjelleren (Utleiedelen er ikke godkjent). Boligen har pent opparbeidet tomt med solrik terrasse, gårdsplass til flere biler og en stor ekstra tomt nede mot veien. Sentral beliggenhet med kort avstand til barnehage, skole, butikk og buss med hyppige avganger.

Verdt å merke seg:
- Ekstra tomt
- Nyoppusset u-etg.
- Drenert
- Nyere kledning på 3 av 4 sider
- Trenger videre oppussing

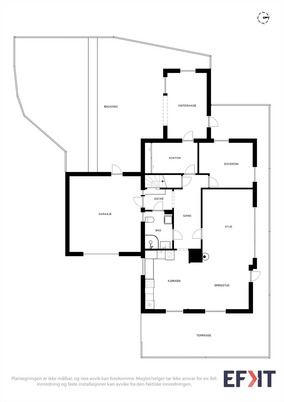
Boligen inneholder:
U-etg: Gang, Vaskerom, Stue og kjøkken, 2 soverom, bad og bod. (U-etg. er ikke godkjent utleiedel) samt bod
1. etg: Hall m/trapp, Gang, Kott, Kontor med utgang til hagestue, Soverom, Bad/vaskerom samt Kjøkken
Loft: stue og 2 soverom(Godkjent som loft og rommene er ikke godkjent til varig opphold)

Velkommen til visning!

Salgsoppgaven beskriver vesentlig og lovpålagt informasjon om eiendommen

Se komplett salgsoppgave

Nærområdet

Annonseinformasjon

FINN-kode422984524
Sist endret03. feb. 2026 12:43
Referanse52250066

Rapporter annonse

Annonsene kan være mangelfulle i forhold til lovpålagt opplysningsplikt. Før bindende avtale inngås oppfordres interessenter til å innhente komplett informasjon fra meglerforetaket, selger eller utleier.